Eladó ház - Bana

KAPCSOLAT
Huszár Éva


+36 30 293

e.huszar@

Az időpont kérés naptár ikonja
IDŐPONTOT KÉREK
A visszahívás kérés telefon ikonja egy azt körbe ölelő nyíllal
VISSZAHÍVÁST KÉREK
Ajánlom egy ismerősömnek ikon
AJÁNLOM EGY ISMERŐSÖMNEK
Facebook megosztás ikon
MEGOSZTÁS

KAPCSOLATFELVÉTEL

Küldés

Az üzenetet sikeresen elküldtük!
Hiba történt!
INGATLAN ADATAI

Ingatlan jellege

családi ház

Belső terület

90 m²

Telek terület

1730 m²

Építési állapot

használt

Építési mód

- nem meghatározott -

Szobák száma

3 szoba

Épület szintje

1.

Ingatlan állapot

kívül: jó
belül: jó

Fűtés

gázkonvektor

Komfort

komfort

Közműállapot

csatorna: bekötve
gáz: bekötve
villany: bekötve
víz: bekötve

Az időpont kérés naptár ikonja
HTML
Az időpont kérés naptár ikonja
PDF
Eladó ház
Belső azonosító:
389808
Ingatlan azonosító:
35360_gimp

Komárom-Esztergom megye, Bana

Irányár

19.5 M Ft
(216.67 E Ft/㎡)

Szobák

3 szoba

Emelet

Terület

90 m²

Telek terület

1730 m²
INGATLAN LEÍRÁSA
Eladó családi ház Banán- csendes falusi környezetben, mégis jó infrastruktúrával.

Ingatlan bemutatása
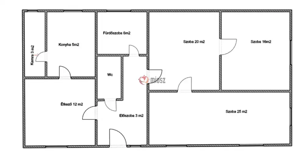
Banán, egy kb 2000 fős kis községben kínálunk eladásra egy 1940-58 körül épült, vegyes falazatú, három szobás családi házat.

Az ingatlan szerkezete masszív, jó felújítási alapot nyújt, miközben megőrzi a régi idők hangulatát.

A három szoba mellett konyha és egyéb mellékhelyiségek állnak rendelkezésre, így család számára is kényelmes elrendezésű lehet.

A fűtésről gázkonvektorok gondoskodnak, de van cserépkályha is, ami hangulatos, alternatív fűtési megoldást jelent téli estéken.

Ez a kétféle fűtés kombináció stabil, rugalmas és költséghatékony lehet.

Az ingatlan négyzetméter ára rendkívül kedvező, különösen, ha figyelembe vesszük a település környékén zajló ipari fejlesztéseket, amelyek tovább növelhetik majd az ingatlan értékét.

Miért éri meg Bana települését választani?

Kedvező elhelyezkedés.

A település jelentősen részesül a közlekedési előnyökből: mindössze kb. 5,5 km-re halad el az M1-es autópálya, így gyors és kényelmes elérhetőség biztosított.

Két jelentősebb város is könnyen megközelíthető: Győr kb. 20 km-re, Komárom kb. 23 km-re van.

Nyugodt, falusi életminőség.

A falusi jelleg megőrzi a nyugalmat, a természetközeli életstílust, miközben nem kell lemondani a modern kényelmekről.

Az utak és közlekedési kapcsolatok jók: az autópálya közeli elérhetősége komoly előnyt jelent ingázás vagy jövőbeni befektetés szempontjából.

Fejlődési potenciál nagy, hiszen az elmúlt pár évben jelentős ipari fejlesztések zajlottak.

Ez a lokáció jó lehetőség befektetőknek, vállalkozóknak, de családoknak is, akik a jövőben nem csak lakhatásra, hanem értéknövekedésre is gondolnak.

A történelmi hangulat, a falusi értékek és a közösségi élet mind hozzájárulnak egy olyan helyhez, ahol nemcsak lakni, de élni is érdemes.

Ez a családi ház Banán nemcsak egy hangulatos, régi stílusú ingatlan, hanem olyan befektetés is lehet, amely a falusi nyugalom és a modern infrastruktúra előnyeit ötvözi.

A kedvező ár, a fűtési rugalmasság, valamint a közeli ipari fejlesztések komoly potenciált jelentenek nem csak jelenlegi lakók, hanem jövőbeni tulajdonosok számára is.

Megtekintés miatt kérem keressen elérhetőségeim valamyelyikén.

INGATLAN ADATAI

Ingatlan jellege
családi ház
Belső terület
90 m²
Telek terület
1730 m²
Építési állapot
használt
Építési mód
- nem meghatározott -
Szobák száma
3 szoba
Épület szintje
1.
Ingatlan állapot
kívül: jó
belül: jó
Fűtés
gázkonvektor
Komfort
komfort
Közműállapot
csatorna: bekötve
gáz: bekötve
villany: bekötve
víz: bekötve
Energetika
TÉRKÉP

Komárom-Esztergom megye, Bana

KAPCSOLAT
Huszár Éva
Huszár Éva


+36 30 293 6514

e.huszar@gdn-ingatlan.hu

KAPCSOLAT
Huszár Éva

+36 30 293

e.huszar@

Az időpont kérés naptár ikonja
IDŐPONTOT KÉREK
A visszahívás kérés telefon ikonja egy azt körbe ölelő nyíllal
VISSZAHÍVÁST KÉREK
Ajánlom egy ismerősömnek ikon
AJÁNLOM EGY ISMERŐSÖMNEK
Facebook megosztás ikon
MEGOSZTÁS

KAPCSOLATFELVÉTEL

Küldés

Az üzenetet sikeresen elküldtük!
Hiba történt!
INGATLAN ADATAI

Ingatlan jellege

családi ház

Belső terület

90 m²

Telek terület

1730 m²

Építési állapot

használt

Építési mód

- nem meghatározott -

Szobák száma

3 szoba

Épület szintje

1.

Ingatlan állapot

kívül: jó
belül: jó

Fűtés

gázkonvektor

Komfort

komfort

Közműállapot

csatorna: bekötve
gáz: bekötve
villany: bekötve
víz: bekötve

Energetika

Az időpont kérés naptár ikonja
HTML
Az időpont kérés naptár ikonja
PDF
Komárom-Esztergom megye - Bana
Komárom-Esztergom megye - Bana
Komárom-Esztergom megye - Bana
Komárom-Esztergom megye - Bana
Komárom-Esztergom megye - Bana
Komárom-Esztergom megye - Bana
Komárom-Esztergom megye - Bana
Komárom-Esztergom megye - Bana
Komárom-Esztergom megye - Bana
Komárom-Esztergom megye - Bana
Komárom-Esztergom megye - Bana
Komárom-Esztergom megye - Bana
Komárom-Esztergom megye - Bana
Komárom-Esztergom megye - Bana
Komárom-Esztergom megye - Bana
Komárom-Esztergom megye - Bana