Eladó ház - Becsehely

CSOK igényelhető
CSOK igényelhető
KAPCSOLAT
Kárpáti Csaba


+36 30 959

info@

Az időpont kérés naptár ikonja
IDŐPONTOT KÉREK
A visszahívás kérés telefon ikonja egy azt körbe ölelő nyíllal
VISSZAHÍVÁST KÉREK
Ajánlom egy ismerősömnek ikon
AJÁNLOM EGY ISMERŐSÖMNEK
Facebook megosztás ikon
MEGOSZTÁS

KAPCSOLATFELVÉTEL

Küldés

Az üzenetet sikeresen elküldtük!
Hiba történt!
INGATLAN ADATAI

Ingatlan jellege

családi ház

Belső terület

91 m²

Telek terület

6097 m²

Tájolás

dél, nyugat

Építési állapot

használt

Építési mód

tégla

Szobák száma

3 szoba

Szobák elhelyezkedése

külön nyílik min. 2 szoba

Épület szintje

1.

Épült

kb. 1970

Ingatlan állapot

kívül: átlagos
belül: átlagos

Ablak szerkezete

hagyományos

Fűtés

gázkazán

Komfort

összkomfort

Közműállapot

csatorna: bekötve
gáz: bekötve
villany: bekötve
víz: bekötve

Energetika

nincs megadva

Az időpont kérés naptár ikonja
HTML
Az időpont kérés naptár ikonja
PDF
Eladó ház
Ingatlan azonosító:
3714_csaszi

Zala megye, Becsehely, Kossuth Lajos utca

Akciós ár

33.5 M Ft
(368.13 E Ft/㎡)

Eredeti irányár

36.5 M Ft

Szobák

3 szoba

Terület

91 m²

Telek terület

6097 m²
INGATLAN LEÍRÁSA
Otthon, ahol nagy tér jut az álmoknak – Becsehelyen!
Becsehely egyik könnyen megközelíthető részén, a főbb közlekedési utak közelében kínálunk egy igazi, gondoskodással fenntartott családi házat. Itt minden adott, hogy kényelmes, nyugodt életet teremtsen új tulajdonosa számára!
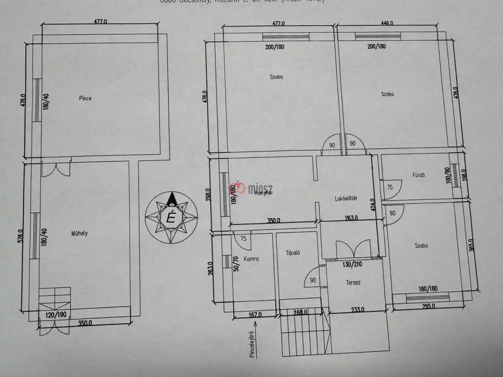
A ház 91 m² lakóterülettel várja az új lakókat – három külön bejáratú szoba, egy barátságos hall, otthonos konyha kamrával, valamint fürdőszoba és WC szolgálja a mindennapi kényelmet. A fűtést cirkó gázkazán radiátoros hőleadókkal biztosítja, a melegvíz ellátásról villanybojler gondoskodik.
A 6097 m²-es, széles telek maga a nyugalom szigete.
• nagyrészt füvesített
• gyümölcsfákkal tarkított
• gondozott, karbantartott
• és a terület egy része bérbeadva hasznosul,
A kertben több melléképület, tároló is helyet kapott, valamint egy 20 m²-es műhely és egy 22 m²-es pince, amelyek a barkácsolás, kertészkedés és a tárolás igazi bázisai.
Főbb paraméterek
• Lakóterület: 91 m²
• Telek: 6097 m² – széles, sokoldalúan hasznosítható
• Helyiségek: 3 külön bejáratú szoba + hall + konyha + kamra + fürdő + WC
• Fűtés: cirkó gáz, radiátoros hőleadás
• Melegvíz: villanybojler
• Fedett, nyitott terasz
Kiegészítő épületek & infrastruktúra
• 20 m²-es műhely – vállalkozásnak, tárolásra, hobbicélra
• 22 m²-es pince – kitűnő raktározásra vagy egyéb funkcióra
• Több melléképület, tároló a telek különböző részein

Telek és környék
• Rendezett, döntően füvesített, több gyümölcsfával
• Határátkelő és autópálya pillanatok alatt elérhető,
• Praktikus, jól megközelíthető elhelyezkedés
• Befektetőknek, vállalkozóknak is ideális adottságok, kiváló logisztikai és vállalkozási környezet
Kinek ajánljuk?
Családoknak, akik tágas kertre és biztos otthonra vágynak
Befektetők, vállalkozók – telek és melléképületek további hasznosítási potenciálja
Gyártói/szolgáltatói tevékenységhez, kisvállalkozáshoz
Ez az otthon többet ad, mint egy ingatlan:
egy új élet nyugalmát és biztonságát!
Amennyiben a vársárláshoz szüksége van hitelre, jogosult a Magyarország Kormánya által nyújtott 3%-os Otthon Start programra, vagy a gyermekvállaláshoz kötött Babaváróra, vissza nem térítendő állami támogatásra Falusi CSOK-ra, vagy a vagy CSOK+ - ra, irodánkban - a CSASZI Ingatlan és Hitelirodában - bank semleges, független hitelszakértő 19 éves szakmai tapasztalattal és kiváló banki kapcsolatokkal díjmentesen segíti a legkedvezőbb pénzügyi konstrukció kiválasztását és a hitelkérelem teljes körű összeállítását. Ügyvédi kapcsolataink révén az adásvételi szerződést is tudjuk rugalmasan szervezni.
Irodánkban mindent egyszerűen és egy helyen intézhet!



INGATLAN ADATAI

Ingatlan jellege
családi ház
Belső terület
91 m²
Telek terület
6097 m²
Tájolás
dél, nyugat
Építési állapot
használt
Építési mód
tégla
Szobák száma
3 szoba
Szobák elhelyezkedése
külön nyílik min. 2 szoba
Épület szintje
1.
Épült
kb. 1970
Ingatlan állapot
kívül: átlagos
belül: átlagos
Ablak szerkezete
hagyományos
Fűtés
gázkazán
Komfort
összkomfort
Közműállapot
csatorna: bekötve
gáz: bekötve
villany: bekötve
víz: bekötve
Energetika
nincs megadva
TÉRKÉP

Zala megye, Becsehely, Kossuth Lajos utca

KAPCSOLAT
Kárpáti Csaba
Kárpáti Csaba


+36 30 959 2254

info@csaszi.com

KAPCSOLAT
Kárpáti Csaba

+36 30 959

info@

Az időpont kérés naptár ikonja
IDŐPONTOT KÉREK
A visszahívás kérés telefon ikonja egy azt körbe ölelő nyíllal
VISSZAHÍVÁST KÉREK
Ajánlom egy ismerősömnek ikon
AJÁNLOM EGY ISMERŐSÖMNEK
Facebook megosztás ikon
MEGOSZTÁS

KAPCSOLATFELVÉTEL

Küldés

Az üzenetet sikeresen elküldtük!
Hiba történt!
INGATLAN ADATAI

Ingatlan jellege

családi ház

Belső terület

91 m²

Telek terület

6097 m²

Tájolás

dél, nyugat

Építési állapot

használt

Építési mód

tégla

Szobák száma

3 szoba

Szobák elhelyezkedése

külön nyílik min. 2 szoba

Épület szintje

1.

Épült

kb. 1970

Ingatlan állapot

kívül: átlagos
belül: átlagos

Ablak szerkezete

hagyományos

Fűtés

gázkazán

Komfort

összkomfort

Közműállapot

csatorna: bekötve
gáz: bekötve
villany: bekötve
víz: bekötve

Energetika

nincs megadva

Az időpont kérés naptár ikonja
HTML
Az időpont kérés naptár ikonja
PDF
Zala megye - Becsehely
Zala megye - Becsehely
Zala megye - Becsehely
Zala megye - Becsehely
Zala megye - Becsehely
Zala megye - Becsehely
Zala megye - Becsehely
Zala megye - Becsehely
Zala megye - Becsehely
Zala megye - Becsehely
Zala megye - Becsehely
Zala megye - Becsehely
Zala megye - Becsehely
Zala megye - Becsehely
Zala megye - Becsehely
Zala megye - Becsehely
Zala megye - Becsehely
Zala megye - Becsehely
Zala megye - Becsehely
Zala megye - Becsehely
Zala megye - Becsehely
Zala megye - Becsehely
Zala megye - Becsehely
Zala megye - Becsehely
Zala megye - Becsehely
Zala megye - Becsehely
Zala megye - Becsehely
Zala megye - Becsehely
Zala megye - Becsehely
Zala megye - Becsehely