KAPCSOLATFELVÉTEL
Ingatlan jellege
családi ház
Belső terület
66 m²
Telek terület
535 m²
Építési állapot
használt
Építési mód
- nem meghatározott -
Szobák száma
3 szoba
Épület szintje
1.
Ingatlan állapot
kívül: jó
belül: jó
Fűtés
cirko
Komfort
összkomfort
Közműállapot
csatorna: bekötve
gáz: bekötve
villany: bekötve
víz: bekötve
Hajdú-Bihar megye, Debrecen, Hatvan utcai kert
Irányár
(831.82 E Ft/㎡)
Szobák
Emelet
Terület
Telek terület
Ára: 54.900.000 Ft
Nézze meg videónkat: https://youtu.be/wHDCLS3G5t4
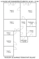
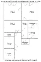
A telek területe: 535 nm.
Az épület bruttó területe: 66 nm+ 24 nm
A családi ház hasznos nettó alapterülete 66 nm, melyben található:
- 3 szoba,
- fürdőszoba,
- konyha,
- folyosó.
Ezen kívül az épülethez építve található még:
- 2 tároló (9,5 nm),
- kazánház (9 nm),
- fedett előtér (5,5 nm).
A kertes ház 1980-ben épült beton alappal és 40cm-es vegyes falazattal. A tetőszerkezete nyeregtető, fa födémmel, zsindellyel fedéssel ellátva. A nyílászárók a bejárati ajtó kivételével (ami újabb műanyag) mindenhol a régi fa nyílászáró. A ház a telek jobb oldalán, utcafronton helyezkedik el.
A ház fűtése gáz cirkóval és vegyes tüzelésű kazánnal van megoldva. A kertes házban villany, víz és csatorna be van kötve. A melegvizet pedig egy gáz bojler szolgáltatja. Minden kazán és bojler használható állapotú.
A kertes ház ára a teljeskörű felújítás miatt alacsonyabb. A telek méretéből adódóan (535 nm), akár 160 nm házzá is bővíthetjük a helyi építési szabályzatnak hála, vagy lebontás után akár szintén ekkora házat építhetünk. Nagy családosoknak és vállalkozóknak is remek lehetőség, akár ikerházra is kiváló lehet a telek.
A Hatvan utcai kert Debrecen egy igen szép, kedvelt és csendes kertvárosi része. Maga az ingatlan egy egyirányú utca szép részén helyezkedik el. A közelben óvodák, iskolák, üzletek, illetve pár percre találhatók bevásárló központok, ipari park M35 autópálya felhajtó és a Kenézy Gyula kórház is.
FONTOS!
Az ingatlan per, tehermentes és azonnal költözhető.
Ha felkeltette érdeklődését, hívja irodánkat bizalommal!
Ha hitelre van szüksége éljen ingyenes, személyre szabott hitel ügyintézési szolgáltatásunkkal is.
belül: jó
gáz: bekötve
villany: bekötve
víz: bekötve
Hajdú-Bihar megye, Debrecen, Hatvan utcai kert

+36 30 693 6793
z.bodnar@gdn-ingatlan.hu
KAPCSOLATFELVÉTEL
Ingatlan jellege
családi ház
Belső terület
66 m²
Telek terület
535 m²
Építési állapot
használt
Építési mód
- nem meghatározott -
Szobák száma
3 szoba
Épület szintje
1.
Ingatlan állapot
kívül: jó
belül: jó
Fűtés
cirko
Komfort
összkomfort
Közműállapot
csatorna: bekötve
gáz: bekötve
villany: bekötve
víz: bekötve
Energetika