Eladó ház - Debrecen

KAPCSOLAT
Petrován Pál Gyula


+36 70 789

p.petrovan@

Az időpont kérés naptár ikonja
IDŐPONTOT KÉREK
A visszahívás kérés telefon ikonja egy azt körbe ölelő nyíllal
VISSZAHÍVÁST KÉREK
Ajánlom egy ismerősömnek ikon
AJÁNLOM EGY ISMERŐSÖMNEK
Facebook megosztás ikon
MEGOSZTÁS

KAPCSOLATFELVÉTEL

Küldés

Az üzenetet sikeresen elküldtük!
Hiba történt!
INGATLAN ADATAI

Ingatlan jellege

családi ház

Belső terület

66 m²

Telek terület

535 m²

Építési állapot

használt

Építési mód

- nem meghatározott -

Szobák száma

3 szoba

Épület szintje

1.

Ingatlan állapot

kívül: jó
belül: jó

Fűtés

cirko

Komfort

összkomfort

Közműállapot

csatorna: bekötve
gáz: bekötve
villany: bekötve
víz: bekötve

Az időpont kérés naptár ikonja
HTML
Az időpont kérés naptár ikonja
PDF
Eladó ház
Belső azonosító:
392105
Ingatlan azonosító:
35641_gimp

Hajdú-Bihar megye, Debrecen, Hatvan utcai kert

Irányár

54.9 M Ft
(831.82 E Ft/㎡)

Szobák

3 szoba

Emelet

Terület

66 m²

Telek terület

535 m²
INGATLAN LEÍRÁSA
Eladó telekárban a közkedvelt Hatvan utcai kertben a Kálmán utcán egy felújítandó családiház.

Ára: 54.900.000 Ft

Nézze meg videónkat: https://youtu.be/wHDCLS3G5t4

A telek területe: 535 nm.
Az épület bruttó területe: 66 nm+ 24 nm

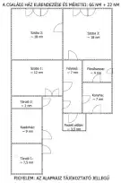
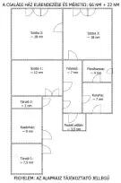
A családi ház hasznos nettó alapterülete 66 nm, melyben található:
- 3 szoba,
- fürdőszoba,
- konyha,
- folyosó.

Ezen kívül az épülethez építve található még:
- 2 tároló (9,5 nm),
- kazánház (9 nm),
- fedett előtér (5,5 nm).

A kertes ház 1980-ben épült beton alappal és 40cm-es vegyes falazattal. A tetőszerkezete nyeregtető, fa födémmel, zsindellyel fedéssel ellátva. A nyílászárók a bejárati ajtó kivételével (ami újabb műanyag) mindenhol a régi fa nyílászáró. A ház a telek jobb oldalán, utcafronton helyezkedik el.

A ház fűtése gáz cirkóval és vegyes tüzelésű kazánnal van megoldva. A kertes házban villany, víz és csatorna be van kötve. A melegvizet pedig egy gáz bojler szolgáltatja. Minden kazán és bojler használható állapotú.

A kertes ház ára a teljeskörű felújítás miatt alacsonyabb. A telek méretéből adódóan (535 nm), akár 160 nm házzá is bővíthetjük a helyi építési szabályzatnak hála, vagy lebontás után akár szintén ekkora házat építhetünk. Nagy családosoknak és vállalkozóknak is remek lehetőség, akár ikerházra is kiváló lehet a telek.

A Hatvan utcai kert Debrecen egy igen szép, kedvelt és csendes kertvárosi része. Maga az ingatlan egy egyirányú utca szép részén helyezkedik el. A közelben óvodák, iskolák, üzletek, illetve pár percre találhatók bevásárló központok, ipari park M35 autópálya felhajtó és a Kenézy Gyula kórház is.

FONTOS!
Az ingatlan per, tehermentes és azonnal költözhető.

Ha felkeltette érdeklődését, hívja irodánkat bizalommal!
Ha hitelre van szüksége éljen ingyenes, személyre szabott hitel ügyintézési szolgáltatásunkkal is.

INGATLAN ADATAI

Ingatlan jellege
családi ház
Belső terület
66 m²
Telek terület
535 m²
Építési állapot
használt
Építési mód
- nem meghatározott -
Szobák száma
3 szoba
Épület szintje
1.
Ingatlan állapot
kívül: jó
belül: jó
Fűtés
cirko
Komfort
összkomfort
Közműállapot
csatorna: bekötve
gáz: bekötve
villany: bekötve
víz: bekötve
Energetika
TÉRKÉP

Hajdú-Bihar megye, Debrecen, Hatvan utcai kert

KAPCSOLAT
Petrován Pál Gyula
Petrován Pál Gyula


+36 70 789 1998

p.petrovan@gdn-ingatlan.hu

KAPCSOLAT
Petrován Pál Gyula

+36 70 789

p.petrovan@

Az időpont kérés naptár ikonja
IDŐPONTOT KÉREK
A visszahívás kérés telefon ikonja egy azt körbe ölelő nyíllal
VISSZAHÍVÁST KÉREK
Ajánlom egy ismerősömnek ikon
AJÁNLOM EGY ISMERŐSÖMNEK
Facebook megosztás ikon
MEGOSZTÁS

KAPCSOLATFELVÉTEL

Küldés

Az üzenetet sikeresen elküldtük!
Hiba történt!
INGATLAN ADATAI

Ingatlan jellege

családi ház

Belső terület

66 m²

Telek terület

535 m²

Építési állapot

használt

Építési mód

- nem meghatározott -

Szobák száma

3 szoba

Épület szintje

1.

Ingatlan állapot

kívül: jó
belül: jó

Fűtés

cirko

Komfort

összkomfort

Közműállapot

csatorna: bekötve
gáz: bekötve
villany: bekötve
víz: bekötve

Energetika

Az időpont kérés naptár ikonja
HTML
Az időpont kérés naptár ikonja
PDF
Hajdú-Bihar megye - Debrecen
Hajdú-Bihar megye - Debrecen
Hajdú-Bihar megye - Debrecen
Hajdú-Bihar megye - Debrecen
Hajdú-Bihar megye - Debrecen
Hajdú-Bihar megye - Debrecen
Hajdú-Bihar megye - Debrecen
Hajdú-Bihar megye - Debrecen
Hajdú-Bihar megye - Debrecen
Hajdú-Bihar megye - Debrecen
Hajdú-Bihar megye - Debrecen
Hajdú-Bihar megye - Debrecen
Hajdú-Bihar megye - Debrecen
Hajdú-Bihar megye - Debrecen
Hajdú-Bihar megye - Debrecen
Hajdú-Bihar megye - Debrecen