Eladó ház - Érd

KAPCSOLAT
Somogyi Zoltán


+36 30 366

leebsoma@

Az időpont kérés naptár ikonja
IDŐPONTOT KÉREK
A visszahívás kérés telefon ikonja egy azt körbe ölelő nyíllal
VISSZAHÍVÁST KÉREK
Ajánlom egy ismerősömnek ikon
AJÁNLOM EGY ISMERŐSÖMNEK
Facebook megosztás ikon
MEGOSZTÁS

KAPCSOLATFELVÉTEL

Küldés

Az üzenetet sikeresen elküldtük!
Hiba történt!
INGATLAN ADATAI

Ingatlan jellege

családi ház

Belső terület

140 m²

Telek terület

681 m²

Tájolás

kelet, nyugat

Építési állapot

használt

Építési mód

tégla

Szobák száma

4 szoba

Szobák elhelyezkedése

külön nyílik min. 2 szoba

Terasz

1 m²

Épület szintje

2.

Épült

kb. 1960

Ingatlan állapot

kívül: átlagos
belül: átlagos

Klíma

van

Szigetelés

10 cm

Ablak szerkezete

2 rétegű thermoplan

Fűtés

gázkazán

Komfort

komfort

Parkolás

van önálló garázs

Közműállapot

csatorna: bekötve
gáz: bekötve
villany: bekötve
víz: bekötve

Az időpont kérés naptár ikonja
HTML
Az időpont kérés naptár ikonja
PDF
Eladó ház
Ingatlan azonosító:
8227_leebesfia

Pest megye, Érd, (Érdliget), Talabor utca

Irányár

84.9 M Ft
(606.43 E Ft/㎡)

Szobák

4 szoba

Terület

140 m²

Telek terület

681 m²
INGATLAN LEÍRÁSA
Panorámás, kiváló helyen, 2 percre az M0-ás autóúttól, kertvárosi, csendes mellék utcában, mégis frekventált részen eladó egy önálló 2 szintes családi ház, 17.5m²-es garázzsal, terasszal medencével és pergolával.

A környék lakóközössége rendkívül barátságos, családias légkört biztosít, ahol mindenki szívesen él.

Főbb jellemzők:

✅ Nem dohányzó tulajdonosoktól
✅ Összközműves, per- és tehermentes
✅ Redőnyös, szúnyoghálós, nagy ablakos, világos terekkel
✅ Kádas, ablakos fürdőszoba
✅ Hűtő-fűtő klíma
✅ Hideg-meleg burkolatok
✅ Nagy ablakos étkezôs konyha – természetes fényben főzhet.
✅ 10cm-es Dryvit szigetelés
✅ Új Zsindelyes tető
✅ Réz villanyvezetékek
✅ Gondozott, füvesített, parkosított kert virágokkal, gyümölcsfákkal
✅ Gázcirkó és vegyestüzelésű kazán
✅ 20 m²-es terasz
✅ Fa pergola
✅ Garázs

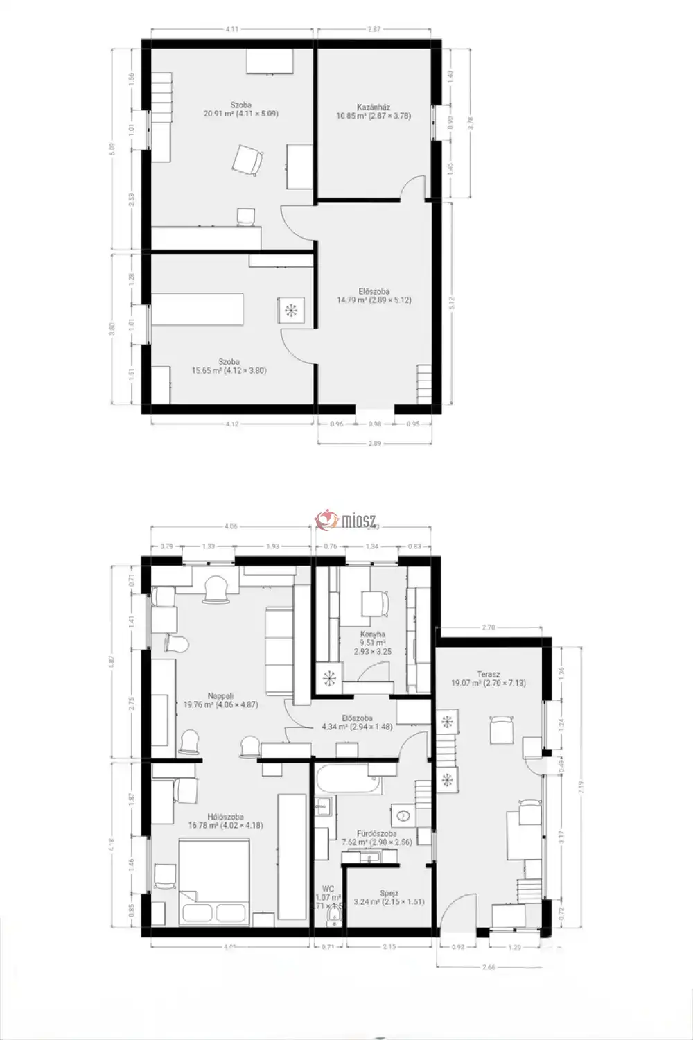
Az ingatlan elosztása:

Szuterén szint 70 m²:
• Tágas előszoba.
• Két külön nyíló, fűtött helyiség melyek lakószobává, konditeremmé vagy irodává alakíthatók.
• Kazánház.

Emelet 70 m²:
• Előszoba
• Napfényes nappali és hálószoba.
• Ablakos, étkezős konyha .
• Kádas fürdőszoba, WC és egy praktikus kamra.
• Hatalmas terasz.

Környék infrastruktúrája:
Autóval pár perc alatt elérhetők az ALDI, LIDL, Tesco, Auchan, OBI, posta, valamint iskolák és óvodák.


INGATLAN ADATAI

Ingatlan jellege
családi ház
Belső terület
140 m²
Telek terület
681 m²
Tájolás
kelet, nyugat
Építési állapot
használt
Építési mód
tégla
Szobák száma
4 szoba
Szobák elhelyezkedése
külön nyílik min. 2 szoba
Terasz
1 m²
Épület szintje
2.
Épült
kb. 1960
Ingatlan állapot
kívül: átlagos
belül: átlagos
Klíma
van
Szigetelés
10 cm
Ablak szerkezete
2 rétegű thermoplan
Fűtés
gázkazán
Komfort
komfort
Parkolás
van önálló garázs
Közműállapot
csatorna: bekötve
gáz: bekötve
villany: bekötve
víz: bekötve
Energetika
TÉRKÉP

Pest megye, Érd, Talabor utca

KAPCSOLAT
Somogyi Zoltán
Somogyi Zoltán


+36 30 366 6555

leebsoma@gmail.com

KAPCSOLAT
Somogyi Zoltán

+36 30 366

leebsoma@

Az időpont kérés naptár ikonja
IDŐPONTOT KÉREK
A visszahívás kérés telefon ikonja egy azt körbe ölelő nyíllal
VISSZAHÍVÁST KÉREK
Ajánlom egy ismerősömnek ikon
AJÁNLOM EGY ISMERŐSÖMNEK
Facebook megosztás ikon
MEGOSZTÁS

KAPCSOLATFELVÉTEL

Küldés

Az üzenetet sikeresen elküldtük!
Hiba történt!
INGATLAN ADATAI

Ingatlan jellege

családi ház

Belső terület

140 m²

Telek terület

681 m²

Tájolás

kelet, nyugat

Építési állapot

használt

Építési mód

tégla

Szobák száma

4 szoba

Szobák elhelyezkedése

külön nyílik min. 2 szoba

Terasz

1 m²

Épület szintje

2.

Épült

kb. 1960

Ingatlan állapot

kívül: átlagos
belül: átlagos

Klíma

van

Szigetelés

10 cm

Ablak szerkezete

2 rétegű thermoplan

Fűtés

gázkazán

Komfort

komfort

Parkolás

van önálló garázs

Közműállapot

csatorna: bekötve
gáz: bekötve
villany: bekötve
víz: bekötve

Energetika

Az időpont kérés naptár ikonja
HTML
Az időpont kérés naptár ikonja
PDF
Pest megye - Érd
Pest megye - Érd
Pest megye - Érd
Pest megye - Érd
Pest megye - Érd
Pest megye - Érd
Pest megye - Érd
Pest megye - Érd
Pest megye - Érd
Pest megye - Érd
Pest megye - Érd
Pest megye - Érd
Pest megye - Érd
Pest megye - Érd
Pest megye - Érd
Pest megye - Érd
Pest megye - Érd