Eladó újszerű ház - Jánossomorja

KAPCSOLAT
Takách Tamás


+36 30 200

takach.tamas@

Az időpont kérés naptár ikonja
IDŐPONTOT KÉREK
A visszahívás kérés telefon ikonja egy azt körbe ölelő nyíllal
VISSZAHÍVÁST KÉREK
Ajánlom egy ismerősömnek ikon
AJÁNLOM EGY ISMERŐSÖMNEK
Facebook megosztás ikon
MEGOSZTÁS

KAPCSOLATFELVÉTEL

Küldés

Az üzenetet sikeresen elküldtük!
Hiba történt!
INGATLAN ADATAI

Ingatlan jellege

családi ház

Belső terület

117 m²

Telek terület

687 m²

Tájolás

dél

Építési állapot

újszerű

Építési mód

tégla

Szobák száma

4 szoba

Terasz

23 m²

Épület szintje

1.

Ingatlan állapot

kívül: új
belül: új

Szigetelés

20 cm

Ablak szerkezete

3 rétegű thermoplan

Fűtés

hőszivattyús

Komfort

összkomfort

Parkolás

van fedett felszíni beálló

Közműállapot

csatorna: bekötve
gáz: bekötve
villany: bekötve
víz: bekötve

Energetika

nincs megadva

Az időpont kérés naptár ikonja
HTML
Az időpont kérés naptár ikonja
PDF
Eladó újszerű ház
Ingatlan azonosító:
4067_ko

Győr-Moson-Sopron megye, Jánossomorja

Irányár

115 M Ft
(982.91 E Ft/㎡)

Szobák

4 szoba

Terület

117 m²

Telek terület

687 m²
INGATLAN LEÍRÁSA
Új építésű családi ház Jánossomorján – modern megoldásokkal, nagy telekkel

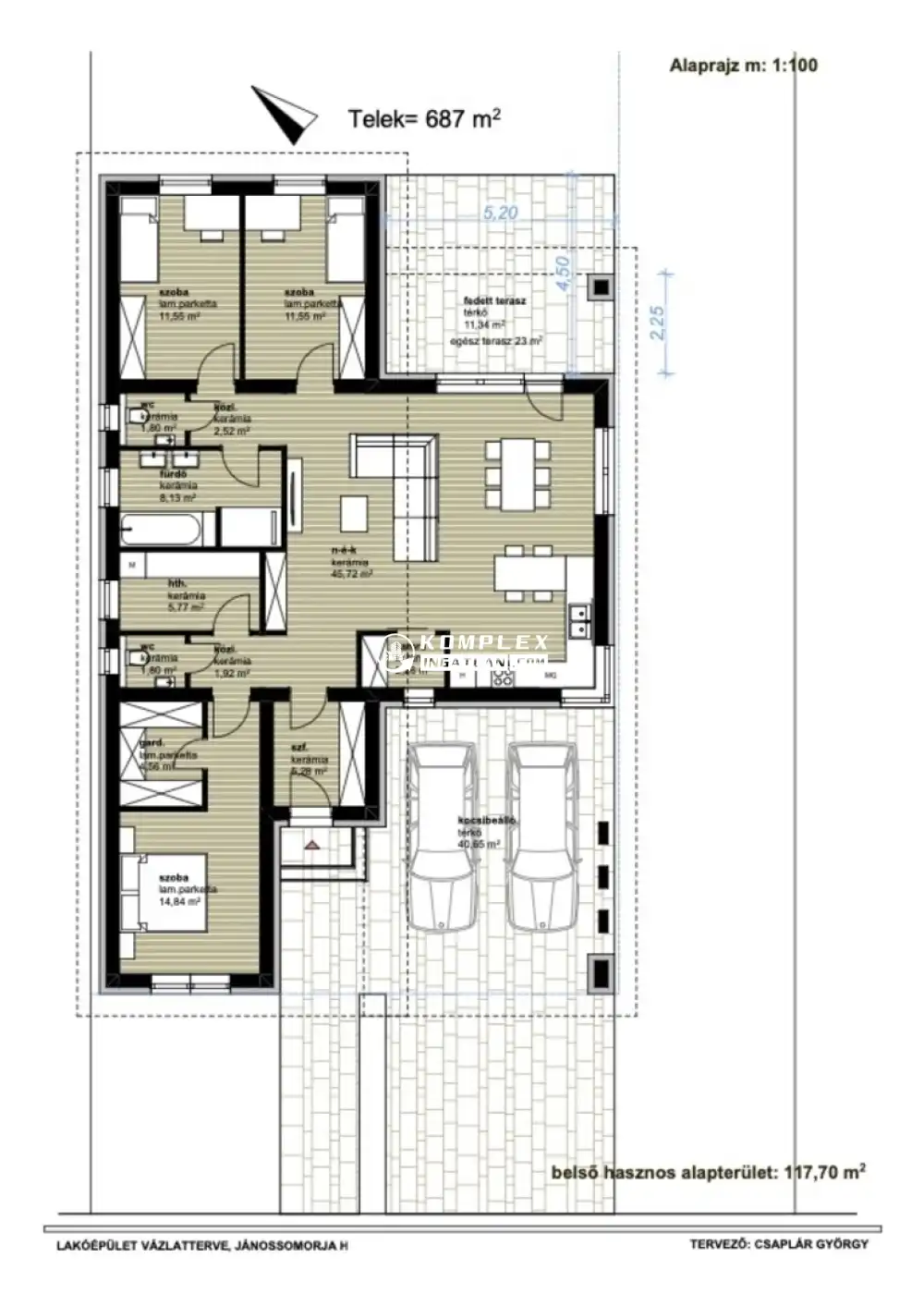
A Komplex Ingatlaniroda megvételre kínál Jánossomorján egy 2024-ben épült, 117 m²-es, modern családi házat, amely egy 687 m²-es telken helyezkedik el. A korszerű műszaki tartalom és az energiahatékony megoldások hosszú távon biztosítják az alacsony fenntartási költségeket és a kényelmes mindennapokat.

Főbb adatok:
• Hasznos alapterület: 117 m²
• Telekméret: 687 m²
• 23 m²-es fedett terasz
• 2 fedett autóbeálló

Elrendezés:
• 3 hálószoba
• Tágas nappali
• Modern kialakítású, amerikai konyhás nappali
• Fürdőszoba + 2 db külön WC

Műszaki felszereltség:
• Hőszivattyús fűtés – padlófűtés
• 20 cm grafitos homlokzati szigetelés
• 30-as csiszolt téglafal
• Lemeztető
• 3 rétegű nyílászárók
• Alumínium redőnyök

Ez a ház ideális választás azok számára, akik modern, energiatakarékos és azonnal költözhető új építésű otthont keresnek nyugodt környezetben, mégis közel az osztrák határhoz és Mosonmagyaróvárhoz.

Ha felkeltette ez a hirdetés az érdeklődését vagy további kérdései vannak, akkor keressen bizalommal.

Irodánk készséggel segít hitel, támogatások díjmentes ügyintézésében is.

Komplex Ingatlaniroda


INGATLAN ADATAI

Ingatlan jellege
családi ház
Belső terület
117 m²
Telek terület
687 m²
Tájolás
dél
Építési állapot
újszerű
Építési mód
tégla
Szobák száma
4 szoba
Terasz
23 m²
Épület szintje
1.
Ingatlan állapot
kívül: új
belül: új
Szigetelés
20 cm
Ablak szerkezete
3 rétegű thermoplan
Fűtés
hőszivattyús
Komfort
összkomfort
Parkolás
van fedett felszíni beálló
Közműállapot
csatorna: bekötve
gáz: bekötve
villany: bekötve
víz: bekötve
Energetika
nincs megadva
TÉRKÉP

Győr-Moson-Sopron megye, Jánossomorja

KAPCSOLAT
Takách Tamás
Takách Tamás


+36 30 200 4206

takach.tamas@komplexingatlan.com

KAPCSOLAT
Takách Tamás

+36 30 200

takach.tamas@

Az időpont kérés naptár ikonja
IDŐPONTOT KÉREK
A visszahívás kérés telefon ikonja egy azt körbe ölelő nyíllal
VISSZAHÍVÁST KÉREK
Ajánlom egy ismerősömnek ikon
AJÁNLOM EGY ISMERŐSÖMNEK
Facebook megosztás ikon
MEGOSZTÁS

KAPCSOLATFELVÉTEL

Küldés

Az üzenetet sikeresen elküldtük!
Hiba történt!
INGATLAN ADATAI

Ingatlan jellege

családi ház

Belső terület

117 m²

Telek terület

687 m²

Tájolás

dél

Építési állapot

újszerű

Építési mód

tégla

Szobák száma

4 szoba

Terasz

23 m²

Épület szintje

1.

Ingatlan állapot

kívül: új
belül: új

Szigetelés

20 cm

Ablak szerkezete

3 rétegű thermoplan

Fűtés

hőszivattyús

Komfort

összkomfort

Parkolás

van fedett felszíni beálló

Közműállapot

csatorna: bekötve
gáz: bekötve
villany: bekötve
víz: bekötve

Energetika

nincs megadva

Az időpont kérés naptár ikonja
HTML
Az időpont kérés naptár ikonja
PDF
Győr-Moson-Sopron megye - Jánossomorja
Győr-Moson-Sopron megye - Jánossomorja
Győr-Moson-Sopron megye - Jánossomorja
Győr-Moson-Sopron megye - Jánossomorja
Győr-Moson-Sopron megye - Jánossomorja
Győr-Moson-Sopron megye - Jánossomorja
Győr-Moson-Sopron megye - Jánossomorja
Győr-Moson-Sopron megye - Jánossomorja
Győr-Moson-Sopron megye - Jánossomorja
Győr-Moson-Sopron megye - Jánossomorja
Győr-Moson-Sopron megye - Jánossomorja