KAPCSOLATFELVÉTEL
Ingatlan jellege
családi ház
Belső terület
214 m²
Telek terület
858 m²
Tájolás
délkelet
Panoráma
dunai panoráma
Építési állapot
használt
Építési mód
tégla
Szobák száma
7 szoba
Terasz
64 m²
Épület szintje
3.
Épült
2008
Ingatlan állapot
kívül: jó
belül: jó
Szigetelés
25 cm
Ablak szerkezete
3 rétegű thermoplan
Fűtés
cirko
Komfort
duplakomfort
Parkolás
van teremgarázs
Közműállapot
csatorna: bekötve
gáz: bekötve
villany: bekötve
víz: bekötve
Energetika
C 2024:
Extrák
panoráma, 52 nm garázs, 64 nm terasz, 40 nm nappali+5 szoba+műterem, még beépíthető 90 nm tetőtér,
Pest megye, Kismaros
Irányár
(1.17 M Ft/㎡)
Szobák
Emelet
Terület
Telek terület
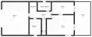
A 2008-ban épült ház belső tere 214 nm + 52 nm garázs; két terasza összesen plusz 62 nm.
Bejárati szint: 40 nm nappali-étkező-konyha, 3 háló, 2 fürdőszoba, mosókonyha-gardrób, kamra és előtér
Alsó szint, melynek belmagassága 2,34 cm: garázs, kazánhelyiség, dolgozó, mellékhelyiség, csodálatos műterem és momentán asztalosműhelyként funkcionáló szoba. Ez a szint kis ráfordítással külön lakrésznek alakítható át.
A tetőtérben igény szerint még cirka 90 nm hasznos alapterület nyerhető.
Műszaki paraméterek:
- 60 cm széles VB sávalap ELOSTOVILL nedvesség elleni-, illetve aljzatbetonon 5 cm (később +20) lépésálló hőszigetelés
- teherhordó falazat: az alsó rész falazata Porotherm 44, melyre 6 cm (később +20) szigetelés került, a földszinti falazat Ytong 30-as.
- a födémek 30 cm vastagok, Porotherm rendszerűek,
- a nyeregtető héjalása cserép, alatta, fólia, 20 cm THERWOOLIN hőszigetelés, párazáró fólia, illetve gomba-, rovar- és lángmentesített faanyagokból
Az ingatlant jelenlegi tulajdonosai 2019-től több lépcsőben modernizálták, illetve alakították saját igényeik szerint. Ezen átalakítások során a következő munkálatok készültek el:
- belső falazatok: eredeti vakolatréteg eltávolítása, újravakolás, festés
- a nyílászárók kb 90 %-ban cserélve lettek
- garázs újravakolás, festés, vízelvezetés, elektromos kapu kialakítása, feljáró burkoltatása
- alsó szint falazatának és aljzatának szigetelése
- új lépcső
- fürdőszobák teljes modernizálása és esztétikai felújítása
- terasz előtető, illetve kanadai vörösfenyő (rendkívül jó időjárásálló) burkolat, új korlát és vízelvezetés készítése
- a kerti homlokzat dísztégla burkolatának felrakása még folyamatban van
A családi ház fűtése alaposan átgondolt, jól megtervezett padló- és radiátoros fűtés kapcsolható gáz- és fatüzeléses. Ennek hővesztesége csupán 5 %. Ezen túl a pincében elektromos fűtőpanelek is vannak. A takarítást központi porszívó teszi könnyebbé.
A ház rezsije rendkívül alacsony: 32.200,- Ft/hó
( gáz 18.000,-; víz 7.700,-; villany 6.500,- )
A kiemelkedően jó közbiztonságú településen távfelügyelethez bekötött riasztórendszer ad extra nyugalmat a ház tulajdonosainak.
Az önálló helyrajzi számmal rendelkező ingatlan belterületen áll, besorolása "kivett lakóház, udvar"; per-, igény- és tehermentes, a térképszelvény megegyezik a valósággal.
A családi ház autóval 2, gyalog 15 perc andalgós sétatávolságra van a vasútállomástól, ahonnan a zónázó vonattal 38 perc alatt a Nyugati Pályaudvarra érhetünk.
Ezek a száraz adatok.
Ez a ház valódi lehetőséget biztosít az igazán sokoldalúan kreatív család számára, hogy munkájuk és hobbijaik kapcsán kiteljesedjenek, vagy a gyönyörű panorámában gyönyörködve akár nagy társasággal múlassák az időt.
Kérem jöjjön el, nézze meg ezt a pazar otthont, hátha az Ön családja is ilyen boldog, teljes életet élhet itt, úgy, mint jelenlegi tulajdonosai.
belül: jó
gáz: bekötve
villany: bekötve
víz: bekötve

+36 20 502 7522
balta.monika@gmail.com
KAPCSOLATFELVÉTEL
Ingatlan jellege
családi ház
Belső terület
214 m²
Telek terület
858 m²
Tájolás
délkelet
Panoráma
dunai panoráma
Építési állapot
használt
Építési mód
tégla
Szobák száma
7 szoba
Terasz
64 m²
Épület szintje
3.
Épült
2008
Ingatlan állapot
kívül: jó
belül: jó
Szigetelés
25 cm
Ablak szerkezete
3 rétegű thermoplan
Fűtés
cirko
Komfort
duplakomfort
Parkolás
van teremgarázs
Közműállapot
csatorna: bekötve
gáz: bekötve
villany: bekötve
víz: bekötve
Energetika
C 2024:
Extrák
panoráma, 52 nm garázs, 64 nm terasz, 40 nm nappali+5 szoba+műterem, még beépíthető 90 nm tetőtér,