KAPCSOLATFELVÉTEL
Ingatlan jellege
családi ház
Belső terület
143 m²
Telek terület
600 m²
Építési állapot
újszerű
Építési mód
- nem meghatározott -
Szobák száma
3 szoba
Ingatlan állapot
kívül: jó
belül: jó
Fűtés
cirko
Komfort
duplakomfort
Közműállapot
csatorna: bekötve
gáz: bekötve
villany: bekötve
víz: bekötve
Pest megye, Maglód, Klenovatelep
Irányár
(1.15 M Ft/㎡)
Szobák
Emelet
Terület
Telek terület
A 2002-ben épült ingatlant tágas világos helyiségek, napfényes fő élettér jellemzi.
2024-ben az ingatlan műszakilag és esztétikailag igényes felújították, melynek keretében 15 cm-es homlokzati szigetelést, 30 cm-es födémszigetelést, illetve festést kapott. Ebből adódóan az ingatlan rezsiköltsége nem haladja meg a 45.000 ft-ot.
Méltán lehet kijelenteni, hogy a mai kor igényeinek méltán megfelel.
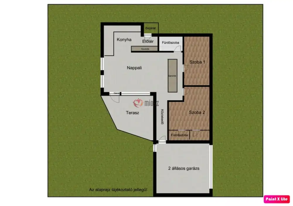
A bejáraton belépve az előtérbe lépünk, amiből a konyhaszigettel épített konyhába, majd a kényelmes nagy nappaliba érünk.
Innen közvetlen teraszkapcsolat van az öntözőrendszerrel ellátott intim kertbe.
A közlekedőn keresztül jutunk el a 2 külön nyíló szobához, amiből az egyiknek külön fürdőszobája és gardróbja van.
A családi ház tulajdonosai úgy tervezték az otthonukat, hogy ne legyenek szekrények, így minden elrejtve, beépített gardróbbal helyettesítették, kivitelezték.
Fűtéséről és meleg víz ellátásáról kombi cirkó kazán gondoskodik, padlófűtésen keresztül, de beépítésre került egy inverteres klíma, ami az egész épületet lehűti.
Az ingatlan fedett. elektromos kapuval ellátott 2 állásos fűtött garázzsal rendelkezik, amiből közvetlenül be tudunk menni a házba.
Azon ügyfeleimnek ajánlom ezt az ingatlant, akik szeretik a tágas világos tereket, nagy baráti társasággal rendelkeznek.
A mennyiben hirdetésem felkeltette érdeklődését, várom megtisztelő hívását. tp
belül: jó
gáz: bekötve
villany: bekötve
víz: bekötve
Pest megye, Maglód, Klenovatelep

+36 30 237 4705
p.toth@gdn-ingatlan.hu
KAPCSOLATFELVÉTEL
Ingatlan jellege
családi ház
Belső terület
143 m²
Telek terület
600 m²
Építési állapot
újszerű
Építési mód
- nem meghatározott -
Szobák száma
3 szoba
Ingatlan állapot
kívül: jó
belül: jó
Fűtés
cirko
Komfort
duplakomfort
Közműállapot
csatorna: bekötve
gáz: bekötve
villany: bekötve
víz: bekötve
Energetika