KAPCSOLATFELVÉTEL
Ingatlan jellege
családi ház
Belső terület
101 m²
Telek terület
1040 m²
Tájolás
délnyugat
Építési állapot
használt
Építési mód
tégla
Szobák száma
3 szoba
Terasz
19 m²
Épület szintje
2.
Épült
1965
Ingatlan állapot
kívül: átlagos
belül: felújítandó
Ablak szerkezete
hagyományos
Fűtés
gázkazán
Komfort
összkomfort
Közműállapot
csatorna: bekötve
gáz: bekötve
villany: bekötve
víz: bekötve
Energetika
nincs megadva
Komárom-Esztergom megye, Nagyigmánd, Jókai utca
Irányár
(534.65 E Ft/㎡)
Szobák
Terület
Telek terület
Nagyigmándon kínálunk megvételre egy 101 m²-es, 3 szobás, felújítandó családi házat 1040 m²-es, gondozott telken.
Az ingatlan 1965-ben épült, statikailag kiváló állapotban: 40 cm vastag kisméretű tégla falazattal, betonfödémmel és betonkoszorúval, 180 cm mély sávalappal, valamint 2,8 m-es belmagassággal.
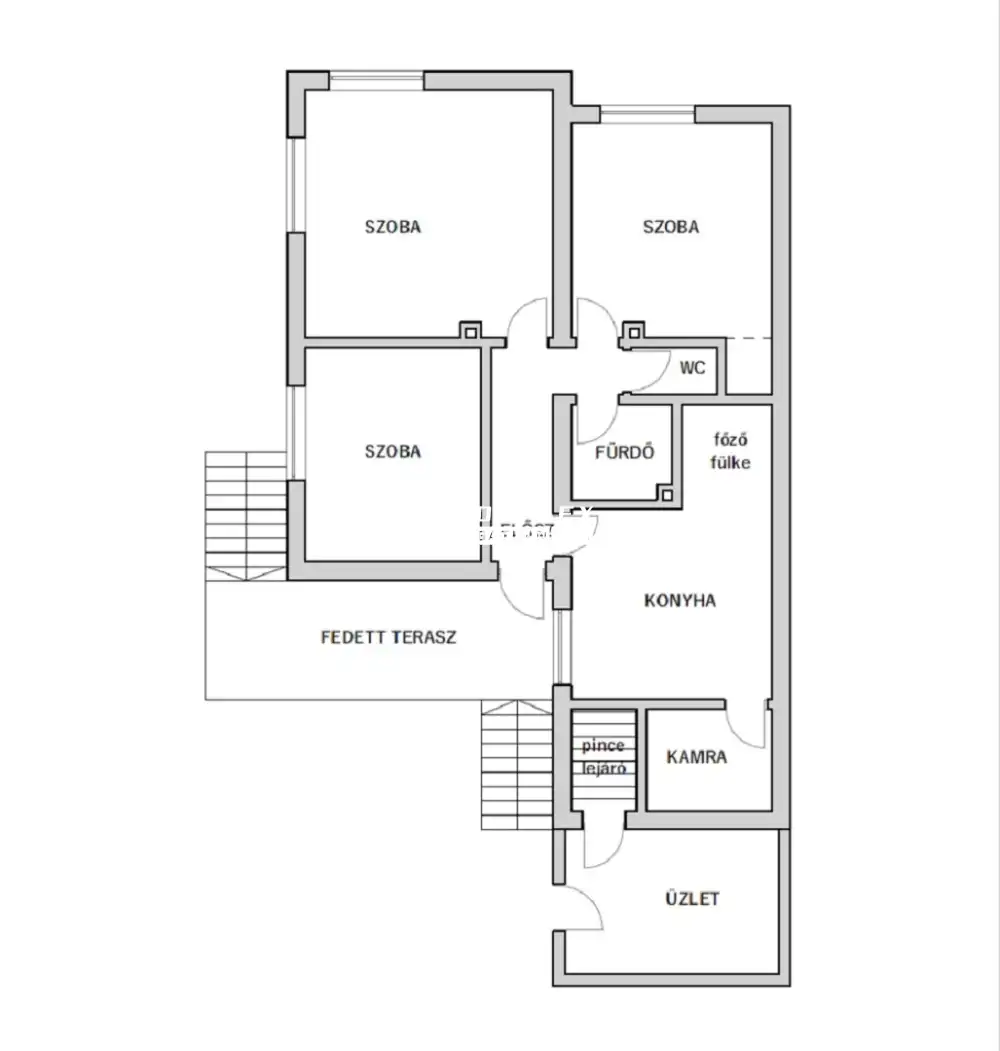
A ház praktikus elrendezésű: előszoba, konyha, kamra, fürdőszoba, külön WC, három szoba és egy fedett terasz szolgálja a lakók kényelmét.
Az épület alatt egy 34 m²-es pince található, amely a konyha és a terasz alá nyúlik. Itt kapott helyet a vegyes tüzelésű kazán és a gázkazán, amelyek radiátoros hőleadással biztosítják a fűtést.
A házhoz tartozik egy 88 m²-es műhely, amely garázsnak, vállalkozásnak vagy tárolásra is kiválóan alkalmas.
Az ingatlan részeként két külön bejárattal rendelkező üzlethelyiség is kialakításra került, amely felújítás után üzleti célra is hasznosítható.
A közművek közül a villany, víz, gáz és csatorna be van vezetve, továbbá egy 25 méter mély fúrt kút is rendelkezésre áll, amely öntözésre kiváló. A fa nyílászárók a ház eredeti hangulatát őrzik.
A ház felújítandó állapotú, de stabil szerkezetének köszönhetően remek alapot biztosít akár családi otthon, akár vállalkozás céljára történő átalakításhoz.
A tágas telek, a különálló melléképület és az üzlethelyiség együttese sok lehetőséget rejt – ideális választás lehet kézműves műhely, kisbolt, szolgáltatás vagy otthoni iroda kialakításához is.
belül: felújítandó
gáz: bekötve
villany: bekötve
víz: bekötve
Komárom-Esztergom megye, Nagyigmánd, Jókai utca

+36 20 461 5700
info@komplexingatlan.com
KAPCSOLATFELVÉTEL
Ingatlan jellege
családi ház
Belső terület
101 m²
Telek terület
1040 m²
Tájolás
délnyugat
Építési állapot
használt
Építési mód
tégla
Szobák száma
3 szoba
Terasz
19 m²
Épület szintje
2.
Épült
1965
Ingatlan állapot
kívül: átlagos
belül: felújítandó
Ablak szerkezete
hagyományos
Fűtés
gázkazán
Komfort
összkomfort
Közműállapot
csatorna: bekötve
gáz: bekötve
villany: bekötve
víz: bekötve
Energetika
nincs megadva