Eladó ház - Nagykőrös

Energiatakarékos!
Energiatakarékos
KAPCSOLAT
Madaras János


+36 20 422

iroda@

Az időpont kérés naptár ikonja
IDŐPONTOT KÉREK
A visszahívás kérés telefon ikonja egy azt körbe ölelő nyíllal
VISSZAHÍVÁST KÉREK
Ajánlom egy ismerősömnek ikon
AJÁNLOM EGY ISMERŐSÖMNEK
Facebook megosztás ikon
MEGOSZTÁS

KAPCSOLATFELVÉTEL

Küldés

Az üzenetet sikeresen elküldtük!
Hiba történt!
INGATLAN ADATAI

Ingatlan jellege

családi ház

Belső terület

150 m²

Telek terület

711 m²

Tájolás

délkelet

Építési állapot

használt

Építési mód

vályog

Szobák száma

1+4 félszoba

Épület szintje

2.

Épült

kb. 1925

Ingatlan állapot

kívül: átlagos
belül: jó

Klíma

van

Napelem

8.00 kW

Fűtés

hűtő-fűtő klíma

Komfort

duplakomfort

Parkolás

van önálló garázs

Közműállapot

csatorna: bekötve
gáz: bekötve
villany: bekötve
víz: bekötve

Energetika

nincs megadva

Extrák

hf klímák, napelem

Az időpont kérés naptár ikonja
HTML
Az időpont kérés naptár ikonja
PDF
Eladó ház
Ingatlan azonosító:
1438_mj

Pest megye, Nagykőrös, Temetőhegy

Irányár

69 M Ft
(460 E Ft/㎡)

Szobák

1+4 félszoba

Terület

150 m²

Telek terület

711 m²
INGATLAN LEÍRÁSA
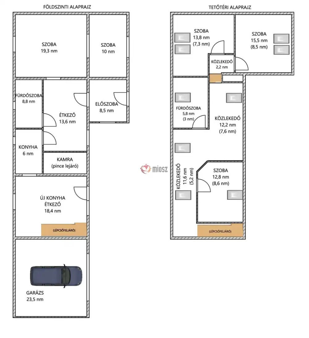
Nagykőrösön vált eladóvá ez a nagycsaládosoknak is ideális, alacsony rezsis, napelemes, tetőteres, 150 nm, nettó 118 nm-es családi ház.

Az ingatlan egy csendes, kisforgalmú, aszfaltozott utcában helyezkedik el a 441-es főúttól 2 saroknyira, a piac és az Ady Endre út közelében.

A telek 717 nm-es, melyre autóval is be lehet állni. Egy fedett gk. beálló és egy tágas garázs áll rendelkezésre. Utcafronton épített kerítéssel, oldalhatáron drótkerítéssel határolt.
Az épület az 1920-as évek tájékán épült, vályog falazattal rendelkezik, amely erős és stabil, jó állapotú, így a tetőtér gond nélkül beépíthető volt, melyet az elmúlt években készítettek el. Így vált az épület duplakomfortos, 4 szobás otthonná, a lakóterülete 150 nm (hasznos 118 nm). A földszint 76 nm + 23,5 nm garázs, a tetőtér 74 nm (hasznos 42,5 nm). A földszinten még a nyílászárók cseréje, valamint esztétikai felújítása van még hátra.
A 8 kW-os napelem rendszernek köszönhetően hűtő-fűtő klímákkal fűthető a ház, a meleg vízellátást szintenként külön villanybojler biztosítja, a villanyszámla így is alacsony, havi néhány ezer forintot kell csak fizetni, míg gázszámla egyáltalán nincs. A vastag falaknak köszönhetően jól szigetel a ház, külső szigetelése így nem szükséges. A homlokzat a felújítási munkák után némi javításra vár, ezután pedig egyéni ízlés szerint a színezést kell elvégezni.
A földszinti részen – a garázs melletti helyiségben – egy új konyha-étkező készült, egyedileg gyártott konyhabútorral, beépített, jó minőségű gépekkel. Új műanyag, panoráma ajtón (elektromos redőnnyel felszerelt) keresztül léphetünk ki a kertbe.
A garázs tágas, körbe polcozott, így sok tároló helyet nyújt, 1 autónak biztosít kényelmes parkolást. A garázsajtó elektromosan mozgatható.
A ház egy része alatt pince található. Az ingatlan a szomszédos utca felőli épülethez kapcsolódik, így osztatlan közös tulajdonú, azonban használati megállapodással rendelkezik. A telkek teljesen szeparáltak, mivel a telek két utcára nyílik, önálló családi ház érzetét kelti. Banki hitellel is megvásárolható.

Érdemes megnézni a házat, mert egy család számára jó környéken, jó közlekedéssel, kényelmes és élhető tereket nyújtó otthon lehet.

I.ár: 69.000.000 Ft


INGATLAN ADATAI

Ingatlan jellege
családi ház
Belső terület
150 m²
Telek terület
711 m²
Tájolás
délkelet
Építési állapot
használt
Építési mód
vályog
Szobák száma
1+4 félszoba
Épület szintje
2.
Épült
kb. 1925
Ingatlan állapot
kívül: átlagos
belül: jó
Klíma
van
Napelem
8.00 kW
Fűtés
hűtő-fűtő klíma
Komfort
duplakomfort
Parkolás
van önálló garázs
Közműállapot
csatorna: bekötve
gáz: bekötve
villany: bekötve
víz: bekötve
Energetika
nincs megadva
Extrák
hf klímák, napelem
TÉRKÉP

Pest megye, Nagykőrös, Temetőhegy

KAPCSOLAT
Madaras János
Madaras János


+36 20 422 2043

iroda@szigetingatlan.hu

KAPCSOLAT
Madaras János

+36 20 422

iroda@

Az időpont kérés naptár ikonja
IDŐPONTOT KÉREK
A visszahívás kérés telefon ikonja egy azt körbe ölelő nyíllal
VISSZAHÍVÁST KÉREK
Ajánlom egy ismerősömnek ikon
AJÁNLOM EGY ISMERŐSÖMNEK
Facebook megosztás ikon
MEGOSZTÁS

KAPCSOLATFELVÉTEL

Küldés

Az üzenetet sikeresen elküldtük!
Hiba történt!
INGATLAN ADATAI

Ingatlan jellege

családi ház

Belső terület

150 m²

Telek terület

711 m²

Tájolás

délkelet

Építési állapot

használt

Építési mód

vályog

Szobák száma

1+4 félszoba

Épület szintje

2.

Épült

kb. 1925

Ingatlan állapot

kívül: átlagos
belül: jó

Klíma

van

Napelem

8.00 kW

Fűtés

hűtő-fűtő klíma

Komfort

duplakomfort

Parkolás

van önálló garázs

Közműállapot

csatorna: bekötve
gáz: bekötve
villany: bekötve
víz: bekötve

Energetika

nincs megadva

Extrák

hf klímák, napelem

Az időpont kérés naptár ikonja
HTML
Az időpont kérés naptár ikonja
PDF
Pest megye - Nagykőrös
Pest megye - Nagykőrös
Pest megye - Nagykőrös
Pest megye - Nagykőrös
Pest megye - Nagykőrös
Pest megye - Nagykőrös
Pest megye - Nagykőrös
Pest megye - Nagykőrös
Pest megye - Nagykőrös
Pest megye - Nagykőrös
Pest megye - Nagykőrös
Pest megye - Nagykőrös
Pest megye - Nagykőrös
Pest megye - Nagykőrös
Pest megye - Nagykőrös
Pest megye - Nagykőrös
Pest megye - Nagykőrös
Pest megye - Nagykőrös
Pest megye - Nagykőrös
Pest megye - Nagykőrös
Pest megye - Nagykőrös