Eladó ház - Nyíregyháza

KAPCSOLAT
Boczákné Radvánszki Erzsébet


+36 20 772

boczakneerzsebet@

Az időpont kérés naptár ikonja
IDŐPONTOT KÉREK
A visszahívás kérés telefon ikonja egy azt körbe ölelő nyíllal
VISSZAHÍVÁST KÉREK
Ajánlom egy ismerősömnek ikon
AJÁNLOM EGY ISMERŐSÖMNEK
Facebook megosztás ikon
MEGOSZTÁS

KAPCSOLATFELVÉTEL

Küldés

Az üzenetet sikeresen elküldtük!
Hiba történt!
INGATLAN ADATAI

Ingatlan jellege

családi ház

Belső terület

55 m²

Telek terület

816 m²

Tájolás

dél, kelet, nyugat

Építési állapot

használt

Építési mód

tégla

Szobák száma

1+1 félszoba

Szobák elhelyezkedése

egybenyílóak

Épület szintje

1.

Épült

kb. 1995

Ingatlan állapot

kívül: jó
belül: jó

Fűtés

cirko

Komfort

komfort

Közműállapot

csatorna: bekötve
gáz: bekötve
villany: bekötve
víz: bekötve

Energetika

nincs megadva

Az időpont kérés naptár ikonja
HTML
Az időpont kérés naptár ikonja
PDF
Eladó ház
Ingatlan azonosító:
5498_jobt

Szabolcs-Szatmár-Bereg megye, Nyíregyháza, (Újkistelekiszőlő), Fillér utca

Irányár

29.5 M Ft
(536.36 E Ft/㎡)

Szobák

1+1 félszoba

Terület

55 m²

Telek terület

816 m²
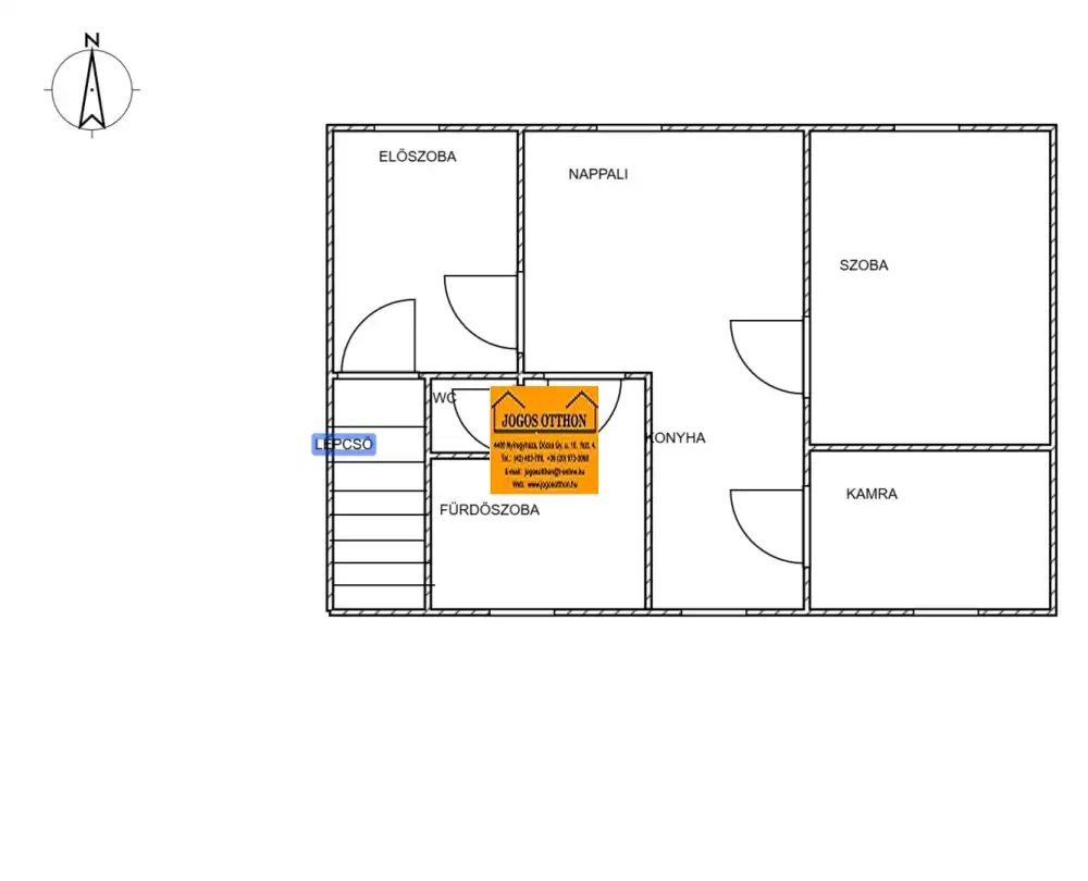
INGATLAN LEÍRÁSA
Nyíregyháza – Fillér utcán eladó egy barátságos, kis alapterületű családi ház!

Kiváló választás azoknak, akik a társasházi lakás helyett inkább egy saját kis kerttel rendelkező otthonra vágynak!

Az ingatlan 55 m²-es, praktikus elrendezésű:
nappali + 1 hálószoba, tégla falazat, szigetelés, műanyag nyílászárók redőnnyel, így energiahatékony és könnyen fenntartható.

A ház teljes egészében pince található alatta, amely kiváló tárolási lehetőséget biztosít.
A telek mérete 816 m², így kényelmesen kialakítható kert, pihenőterület vagy akár konyhakert is.

Társasházi lakás áráért most egy önálló, kis kertes családi ház lehet az Öné!
Ne hagyja ki ezt a remek lehetőséget, ha Önnek elegendő egy ilyen barátságos, könnyen kezelhető alapterületű otthon.

INGATLAN ADATAI

Ingatlan jellege
családi ház
Belső terület
55 m²
Telek terület
816 m²
Tájolás
dél, kelet, nyugat
Építési állapot
használt
Építési mód
tégla
Szobák száma
1+1 félszoba
Szobák elhelyezkedése
egybenyílóak
Épület szintje
1.
Épült
kb. 1995
Ingatlan állapot
kívül: jó
belül: jó
Fűtés
cirko
Komfort
komfort
Közműállapot
csatorna: bekötve
gáz: bekötve
villany: bekötve
víz: bekötve
Energetika
nincs megadva
TÉRKÉP

Szabolcs-Szatmár-Bereg megye, Nyíregyháza, Fillér utca

KAPCSOLAT
Boczákné Radvánszki Erzsébet
Boczákné Radvánszki Erzsébet


+36 20 772 5031

boczakneerzsebet@jogosotthon.hu

KAPCSOLAT
Boczákné Radvánszki Erzsébet

+36 20 772

boczakneerzsebet@

Az időpont kérés naptár ikonja
IDŐPONTOT KÉREK
A visszahívás kérés telefon ikonja egy azt körbe ölelő nyíllal
VISSZAHÍVÁST KÉREK
Ajánlom egy ismerősömnek ikon
AJÁNLOM EGY ISMERŐSÖMNEK
Facebook megosztás ikon
MEGOSZTÁS

KAPCSOLATFELVÉTEL

Küldés

Az üzenetet sikeresen elküldtük!
Hiba történt!
INGATLAN ADATAI

Ingatlan jellege

családi ház

Belső terület

55 m²

Telek terület

816 m²

Tájolás

dél, kelet, nyugat

Építési állapot

használt

Építési mód

tégla

Szobák száma

1+1 félszoba

Szobák elhelyezkedése

egybenyílóak

Épület szintje

1.

Épült

kb. 1995

Ingatlan állapot

kívül: jó
belül: jó

Fűtés

cirko

Komfort

komfort

Közműállapot

csatorna: bekötve
gáz: bekötve
villany: bekötve
víz: bekötve

Energetika

nincs megadva

Az időpont kérés naptár ikonja
HTML
Az időpont kérés naptár ikonja
PDF
Szabolcs-Szatmár-Bereg megye - Nyíregyháza
Szabolcs-Szatmár-Bereg megye - Nyíregyháza
Szabolcs-Szatmár-Bereg megye - Nyíregyháza
Szabolcs-Szatmár-Bereg megye - Nyíregyháza
Szabolcs-Szatmár-Bereg megye - Nyíregyháza
Szabolcs-Szatmár-Bereg megye - Nyíregyháza
Szabolcs-Szatmár-Bereg megye - Nyíregyháza
Szabolcs-Szatmár-Bereg megye - Nyíregyháza
Szabolcs-Szatmár-Bereg megye - Nyíregyháza
Szabolcs-Szatmár-Bereg megye - Nyíregyháza
Szabolcs-Szatmár-Bereg megye - Nyíregyháza
Szabolcs-Szatmár-Bereg megye - Nyíregyháza
Szabolcs-Szatmár-Bereg megye - Nyíregyháza
Szabolcs-Szatmár-Bereg megye - Nyíregyháza
Szabolcs-Szatmár-Bereg megye - Nyíregyháza