Eladó ház - Páty

KAPCSOLAT
Bognár Katalin


+36 70 977

k.bognar@

Az időpont kérés naptár ikonja
IDŐPONTOT KÉREK
A visszahívás kérés telefon ikonja egy azt körbe ölelő nyíllal
VISSZAHÍVÁST KÉREK
Ajánlom egy ismerősömnek ikon
AJÁNLOM EGY ISMERŐSÖMNEK
Facebook megosztás ikon
MEGOSZTÁS

KAPCSOLATFELVÉTEL

Küldés

Az üzenetet sikeresen elküldtük!
Hiba történt!
INGATLAN ADATAI

Ingatlan jellege

családi ház

Belső terület

93 m²

Telek terület

1100 m²

Építési állapot

használt

Építési mód

- nem meghatározott -

Szobák száma

3 szoba

Ingatlan állapot

kívül: jó
belül: jó

Fűtés

cirko

Komfort

összkomfort

Közműállapot

csatorna: bekötve
gáz: bekötve
villany: bekötve
víz: bekötve

Az időpont kérés naptár ikonja
HTML
Az időpont kérés naptár ikonja
PDF
Eladó ház
Belső azonosító:
392033
Ingatlan azonosító:
35633_gimp

Pest megye, Páty, Ófalu

Irányár

109 M Ft
(1.17 M Ft/㎡)

Szobák

3 szoba

Emelet

Terület

93 m²

Telek terület

1100 m²
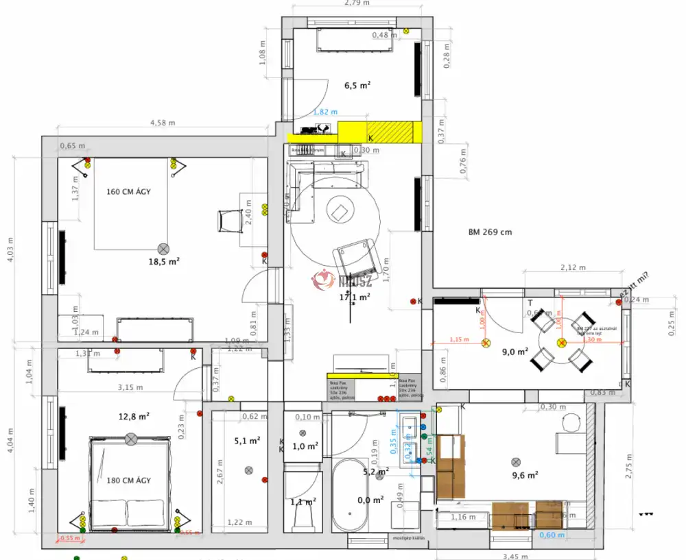
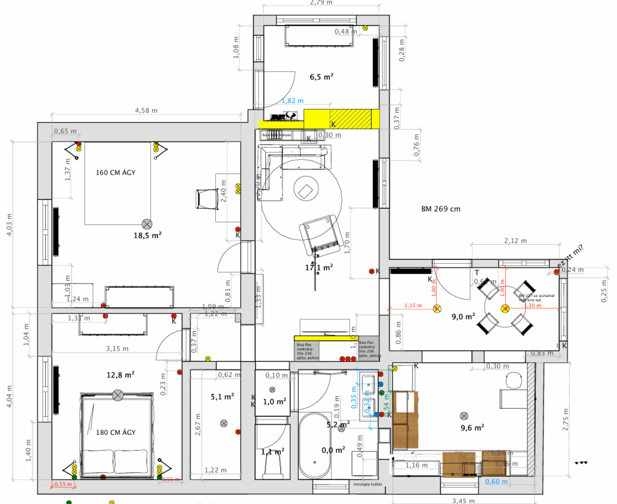
INGATLAN LEÍRÁSA
Elvágyódsz a város zajából, de nem akarsz lemondani a stílusról és a kényelemről? Megtaláltuk a tökéletes ingatlant Páty legkedveltebb, csendes, aszfaltos utcájában! Ez a ház nem csak egy ingatlan, ez egy kompromisszum mentes álomotthon!

A házról, ami tökéletes:

Minden új, minden kész: az épület teljeskörű műszaki és esztétikai felújításon esett át. Szigetelt falak, modern belső - ide tényleg csak költözni kell!
Optimális térérzet: bruttó 109 nm, ahol minden négyzetméter ki van használva.
Elosztás: világos amerikai konyhás nappali + 2 teljes értékű, különnyíló hálószoba, fürdőszoba, külön WC, hangulatos, fedett, déli fekvésű terasz, borospince és gépészeti helyiség.

Rezsibarát és komfortos:

Fűtés: modern kondenzációs kazán radiátoros hőleadással – hatékony és takarékos.
Hűtés: klíma gondoskodik a kellemes hőmérsékletről a nyári kánikulában is.
Nyílászárók: műanyag, redőnnyel és szúnyoghálóval ellátva.
Konyha: minőségi, esztétikus bútorokkal, gépesítve.

Kert és kikapcsolódás:

1100 nm-es telek: itt elfér a kutya, a gyerekek játszótere, a veteményes, sőt még egy medence is!
Fedett terasz: a reggeli kávéd vagy az esti grillpartik tökéletes helyszíne.
Bónusz: saját, hangulatos borospince – tartsd itt a környék legjobb borait!

Kitűnő lokáció:

Páty szíve, ahol a nyugalom nem jelent elszigeteltséget.
Bölcsőde, óvoda, iskola percek alatt elérhető.
Bevásárlási lehetőség, posta, orvosi rendelő, buszmegálló a közelben.
Szuper szomszédság, biztonságos és családias környék.
Kitűnő közlekedés, gyorsan és kényelmesen elérhető Budapest.

Ez a ház nem fog sokáig várni a piacon! Ha egy olyan otthont keresel, ami fenntartható, stílusos és hatalmas kertje van, gyere és nézd meg élőben!

INGATLAN ADATAI

Ingatlan jellege
családi ház
Belső terület
93 m²
Telek terület
1100 m²
Építési állapot
használt
Építési mód
- nem meghatározott -
Szobák száma
3 szoba
Ingatlan állapot
kívül: jó
belül: jó
Fűtés
cirko
Komfort
összkomfort
Közműállapot
csatorna: bekötve
gáz: bekötve
villany: bekötve
víz: bekötve
Energetika
TÉRKÉP

Pest megye, Páty, Ófalu

KAPCSOLAT
Bognár Katalin
Bognár Katalin


+36 70 977 8080

k.bognar@gdn-ingatlan.hu

KAPCSOLAT
Bognár Katalin

+36 70 977

k.bognar@

Az időpont kérés naptár ikonja
IDŐPONTOT KÉREK
A visszahívás kérés telefon ikonja egy azt körbe ölelő nyíllal
VISSZAHÍVÁST KÉREK
Ajánlom egy ismerősömnek ikon
AJÁNLOM EGY ISMERŐSÖMNEK
Facebook megosztás ikon
MEGOSZTÁS

KAPCSOLATFELVÉTEL

Küldés

Az üzenetet sikeresen elküldtük!
Hiba történt!
INGATLAN ADATAI

Ingatlan jellege

családi ház

Belső terület

93 m²

Telek terület

1100 m²

Építési állapot

használt

Építési mód

- nem meghatározott -

Szobák száma

3 szoba

Ingatlan állapot

kívül: jó
belül: jó

Fűtés

cirko

Komfort

összkomfort

Közműállapot

csatorna: bekötve
gáz: bekötve
villany: bekötve
víz: bekötve

Energetika

Az időpont kérés naptár ikonja
HTML
Az időpont kérés naptár ikonja
PDF
Pest megye - Páty
Pest megye - Páty
Pest megye - Páty
Pest megye - Páty
Pest megye - Páty
Pest megye - Páty
Pest megye - Páty
Pest megye - Páty
Pest megye - Páty
Pest megye - Páty
Pest megye - Páty
Pest megye - Páty
Pest megye - Páty
Pest megye - Páty
Pest megye - Páty
Pest megye - Páty