Eladó ház - Pécel

KAPCSOLAT
Fenyvesi Marianna


+36 20 981

m.fenyvesi@

Az időpont kérés naptár ikonja
IDŐPONTOT KÉREK
A visszahívás kérés telefon ikonja egy azt körbe ölelő nyíllal
VISSZAHÍVÁST KÉREK
Ajánlom egy ismerősömnek ikon
AJÁNLOM EGY ISMERŐSÖMNEK
Facebook megosztás ikon
MEGOSZTÁS

KAPCSOLATFELVÉTEL

Küldés

Az üzenetet sikeresen elküldtük!
Hiba történt!
INGATLAN ADATAI

Ingatlan jellege

családi ház

Belső terület

111 m²

Telek terület

665 m²

Építési állapot

használt

Építési mód

- nem meghatározott -

Szobák száma

3+2 félszoba

Épület szintje

1.

Ingatlan állapot

kívül: jó
belül: jó

Fűtés

gázkonvektor

Komfort

duplakomfort

Közműállapot

csatorna: bekötve
gáz: bekötve
villany: bekötve
víz: bekötve

Az időpont kérés naptár ikonja
HTML
Az időpont kérés naptár ikonja
PDF
Eladó ház
Belső azonosító:
389185
Ingatlan azonosító:
35292_gimp

Pest megye, Pécel, Vasúton túli terület

Irányár

89.5 M Ft
(806.31 E Ft/㎡)

Szobák

3+2 félszoba

Emelet

Terület

111 m²

Telek terület

665 m²
INGATLAN LEÍRÁSA
CSAK NÁLUNK!

Tele LEHETŐSÉGGEL!

Pécelen, a Kelő Lakópark peremén, 665 m² telken kínálunk eladásra egy háromszintes, dupla komfortos önálló családi házat.

A ház fűtött alapterülete 111,93 m² (99,7m² ), bruttó alapterülete 140,24 m².A bruttó alapterület számításakor az emelet 70 %-ban a pince 30%-ban, a terasz és erkély 50%-ban került beszámításra.


Az ingatlan három plusz két szobás, jól átgondolt elrendezésű.

Az épületet 1984-ben kezdték építeni, és 1986-ban kapta meg a használatbavételi engedélyt.

A falazat szilikát, a tető cserépfedésű, a födém vasbeton gerendás.
A külső nyílászárók hőszigetelt, kétrétegű üvegezésű fa ablakok.

A fűtés gázkazán, radiátoros hőleadással. A melegvizet a földszinten, gázbojler az emeleten villanybojler adja.

A z ingatlant beépített, üvegezett teraszon keresztül jutunk a földszinti lakótérbe, melynek nettó alapterülete 68,42 m².
Itt két szoba, konyha, étkező, kamra, fürdőszoba, közlekedő és lépcsőház található.
Világos, jól szellőző, praktikus elrendezésű tér fogad.

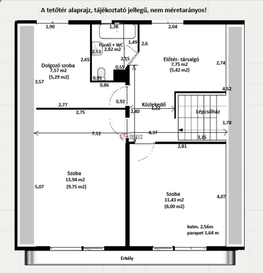
A felső szinten két hálószoba, egy dolgozószoba, egy társalgó és egy fürdőszoba került kialakításra.
A helyiségek tágasak, a nagy ablakoknak köszönhetően világosak.


A pince szint 70,3 m², ahol fűtött, 25 m² garázs, hobby szoba, szárítóhelyiség, valamint kazánház, kamra- tároló, és gázmérő helység kapott helyet.

A ház 3 x 16 amperes áramellátással rendelkezik.

A kert rendezett, parkosított, kellemes környezetet biztosít családosoknak, pihenni vágyóknak vagy akár kétgenerációs használatra is.
A beépített terasz alatt tárolót találunk.


Ez az ingatlan ideális választás azoknak, akik tágas, több szintes családi házat keresnek zöldövezeti környezetben, mégis a főváros közelében.

Az ingatlan PER, TEHER, IGÉNY MENTES!

Jöjjön el nézze meg, szeressen bele, és tegyen ajánlatot!


Közlekedés:
Az új felüljáró átadása óta a gépjárművel való közlekedés kiváló. Pár perc az M0 autóút.

A gyalogos közlekedés: a helyi buszjárat 5 perc séta, ami a vasútállomásra, a városközpontba visz. Érinti az iskolát, óvodát, üzletet. A központban csatlakozik a korszerűsített vasúthoz, ami a Keleti pályaudvarra megy, és a 169 E buszhoz, ami az Örs vezér térre visz ki. Itt felülhet az ingyenes AUCHAN járatra is, amivel Maglódra mehet.

A GDN HitelCentrum, KÖTELEZETTSÉG MENTESEN és DÍJMENTESEN, versenyezteti Önért a bankok hitelajánlatait. Ismerje meg a vissza nem térítendő állami támogatásokat!


• CSOK+,
• babaváró,
• hitel,
• megtakarítás,
• és egyéb banki tranzakcióban segítségére lehetünk!
• Ügyvédi hátteret tudunk biztosítani!


Ha az ingatlannal kapcsolatban bővebb felvilágosításra lenne szüksége, hívjon bizalommal, állok rendelkezésére!

Videó link: https://youtu.be/Z7L-Z13KeiQ

F.M.

INGATLAN ADATAI

Ingatlan jellege
családi ház
Belső terület
111 m²
Telek terület
665 m²
Építési állapot
használt
Építési mód
- nem meghatározott -
Szobák száma
3+2 félszoba
Épület szintje
1.
Ingatlan állapot
kívül: jó
belül: jó
Fűtés
gázkonvektor
Komfort
duplakomfort
Közműállapot
csatorna: bekötve
gáz: bekötve
villany: bekötve
víz: bekötve
Energetika
TÉRKÉP

Pest megye, Pécel, Vasúton túli terület

KAPCSOLAT
Fenyvesi Marianna
Fenyvesi Marianna


+36 20 981 3790

m.fenyvesi@gdn-ingatlan.hu

KAPCSOLAT
Fenyvesi Marianna

+36 20 981

m.fenyvesi@

Az időpont kérés naptár ikonja
IDŐPONTOT KÉREK
A visszahívás kérés telefon ikonja egy azt körbe ölelő nyíllal
VISSZAHÍVÁST KÉREK
Ajánlom egy ismerősömnek ikon
AJÁNLOM EGY ISMERŐSÖMNEK
Facebook megosztás ikon
MEGOSZTÁS

KAPCSOLATFELVÉTEL

Küldés

Az üzenetet sikeresen elküldtük!
Hiba történt!
INGATLAN ADATAI

Ingatlan jellege

családi ház

Belső terület

111 m²

Telek terület

665 m²

Építési állapot

használt

Építési mód

- nem meghatározott -

Szobák száma

3+2 félszoba

Épület szintje

1.

Ingatlan állapot

kívül: jó
belül: jó

Fűtés

gázkonvektor

Komfort

duplakomfort

Közműállapot

csatorna: bekötve
gáz: bekötve
villany: bekötve
víz: bekötve

Energetika

Az időpont kérés naptár ikonja
HTML
Az időpont kérés naptár ikonja
PDF
Pest megye - Pécel
Pest megye - Pécel
Pest megye - Pécel
Pest megye - Pécel
Pest megye - Pécel
Pest megye - Pécel
Pest megye - Pécel
Pest megye - Pécel
Pest megye - Pécel
Pest megye - Pécel
Pest megye - Pécel
Pest megye - Pécel
Pest megye - Pécel
Pest megye - Pécel
Pest megye - Pécel
Pest megye - Pécel