Eladó ház - Velence

kiemelt
Kiemelt
KAPCSOLAT
Lukovics Vilmos


+36 20 941

lukovics.vilmos.leeb@

Az időpont kérés naptár ikonja
IDŐPONTOT KÉREK
A visszahívás kérés telefon ikonja egy azt körbe ölelő nyíllal
VISSZAHÍVÁST KÉREK
Ajánlom egy ismerősömnek ikon
AJÁNLOM EGY ISMERŐSÖMNEK
Facebook megosztás ikon
MEGOSZTÁS

KAPCSOLATFELVÉTEL

Küldés

Az üzenetet sikeresen elküldtük!
Hiba történt!
INGATLAN ADATAI

Ingatlan jellege

családi ház

Belső terület

214 m²

Telek terület

610 m²

Tájolás

dél, nyugat

Építési állapot

használt

Építési mód

tégla

Szobák száma

4+3 félszoba

Erkély

3 m²

Épület szintje

1.

Épült

kb. 1980

Ingatlan állapot

kívül: felújítandó
belül: részben felújított

Klíma

van

Ablak szerkezete

2 rétegű thermoplan

Fűtés

cirko

Komfort

összkomfort

Parkolás

van fedetlen felszíni beálló

Közműállapot

csatorna: bekötve
gáz: bekötve
villany: bekötve
víz: bekötve

Energetika

E:

Az időpont kérés naptár ikonja
HTML
Az időpont kérés naptár ikonja
PDF
Eladó ház
Ingatlan azonosító:
8218_leebesfia

Fejér megye, Velence

Irányár

99.9 M Ft
(466.82 E Ft/㎡)

Szobák

4+3 félszoba

Terület

214 m²

Telek terület

610 m²
INGATLAN LEÍRÁSA
Velence-Ófalu szívében három külön lakásos családi ház — felújítva, tágas terekkel, gondozott kerttel!
Ha olyan otthont keresel, amely egyszerre családi fészek, befektetés, akár három generáció együttélésére is alkalmas, akkor ezt most érdemes megnézned.

A ház belül az utóbbi években részben megújult:
új, lakásonként leválasztott központi fűtés, korszerű vizesblokkok, thermo nyílászárók, modern burkolatok, klíma — minden adott egy kényelmes, gondtalan induláshoz.
A külső még szépítésre vár, így saját ízlésedre alakíthatod.

Három külön bejáratú lakás — óriási szabadság az élet minden helyzetére

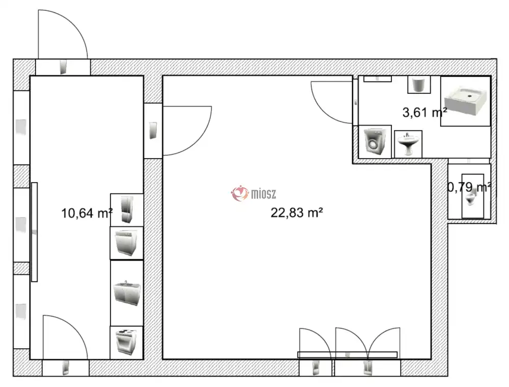
1. földszinti lakás – 37 m²
nappali / háló
konyha–étkező
fürdő+WC
Tökéletes első otthon, iroda, vagy hosszú távú kiadás.

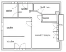
2. földszinti lakás – 62 m²
2 külön hálószoba
konyha + étkező
fürdő + wc
Ideális egy kisebb családnak vagy vendéglakásnak.
Felújítandó.

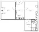
Tetőtéri lakás – 85 m² (külön bejárat!)
2 szoba + 2 félszoba
amerikai konyhás étkező + nappali
fürdő
WC
nagy, hangulatos erkély
Ez a szint valódi „mini otthon” a ház tetején – világos, tágas, és nagyon élhető.

A telek és környezet
610 m², gondozott kert – pont akkora, hogy örömmel tartsd rendben, ne teher legyen

3 autós udvari beálló

Csendes, ófalusi hangulatú környék, mégis mindenhez közel

A Velencei-tó pár perc – strand, séta, vízparti élmények minden napra

Kinek ajánlom?
Családoknak, akik együtt, de elkülönítve szeretnének élni.

Befektetőknek, akik 3 külön lakást szeretnének kiadni.

Többgenerációs megoldást keresőknek.

Vállalkozóknak (iroda + két lakás kiadásra).

Egy ritka adottságú, háromlakásos, belül részben felújított házról van szó Velence egyik legnyugodtabb részén. A külső csinosítása már a következő tulajdonos öröme lesz — így az otthonod olyan lesz, mint amilyennek megálmodod.

Amennyiben felkeltettem érdeklődésedet és meg kívánod tekintetni az ingatlant, kérlek jelezd felém az alábbi elérhetőségeken.

INGATLAN ADATAI

Ingatlan jellege
családi ház
Belső terület
214 m²
Telek terület
610 m²
Tájolás
dél, nyugat
Építési állapot
használt
Építési mód
tégla
Szobák száma
4+3 félszoba
Erkély
3 m²
Épület szintje
1.
Épült
kb. 1980
Ingatlan állapot
kívül: felújítandó
belül: részben felújított
Klíma
van
Ablak szerkezete
2 rétegű thermoplan
Fűtés
cirko
Komfort
összkomfort
Parkolás
van fedetlen felszíni beálló
Közműállapot
csatorna: bekötve
gáz: bekötve
villany: bekötve
víz: bekötve
Energetika
E:
TÉRKÉP

Fejér megye, Velence

KAPCSOLAT
Lukovics Vilmos
Lukovics Vilmos


+36 20 941 4374

lukovics.vilmos.leeb@gmail.com

KAPCSOLAT
Lukovics Vilmos

+36 20 941

lukovics.vilmos.leeb@

Az időpont kérés naptár ikonja
IDŐPONTOT KÉREK
A visszahívás kérés telefon ikonja egy azt körbe ölelő nyíllal
VISSZAHÍVÁST KÉREK
Ajánlom egy ismerősömnek ikon
AJÁNLOM EGY ISMERŐSÖMNEK
Facebook megosztás ikon
MEGOSZTÁS

KAPCSOLATFELVÉTEL

Küldés

Az üzenetet sikeresen elküldtük!
Hiba történt!
INGATLAN ADATAI

Ingatlan jellege

családi ház

Belső terület

214 m²

Telek terület

610 m²

Tájolás

dél, nyugat

Építési állapot

használt

Építési mód

tégla

Szobák száma

4+3 félszoba

Erkély

3 m²

Épület szintje

1.

Épült

kb. 1980

Ingatlan állapot

kívül: felújítandó
belül: részben felújított

Klíma

van

Ablak szerkezete

2 rétegű thermoplan

Fűtés

cirko

Komfort

összkomfort

Parkolás

van fedetlen felszíni beálló

Közműállapot

csatorna: bekötve
gáz: bekötve
villany: bekötve
víz: bekötve

Energetika

E:

Az időpont kérés naptár ikonja
HTML
Az időpont kérés naptár ikonja
PDF
Fejér megye - Velence
Fejér megye - Velence
Fejér megye - Velence
Fejér megye - Velence
Fejér megye - Velence
Fejér megye - Velence
Fejér megye - Velence
Fejér megye - Velence
Fejér megye - Velence
Fejér megye - Velence
Fejér megye - Velence
Fejér megye - Velence
Fejér megye - Velence
Fejér megye - Velence
Fejér megye - Velence
Fejér megye - Velence
Fejér megye - Velence
Fejér megye - Velence