Eladó ikerház - Budapest, XVII. kerület

KAPCSOLAT
Béres Tünde


+36 20 402

t.beres@

Az időpont kérés naptár ikonja
IDŐPONTOT KÉREK
A visszahívás kérés telefon ikonja egy azt körbe ölelő nyíllal
VISSZAHÍVÁST KÉREK
Ajánlom egy ismerősömnek ikon
AJÁNLOM EGY ISMERŐSÖMNEK
Facebook megosztás ikon
MEGOSZTÁS

KAPCSOLATFELVÉTEL

Küldés

Az üzenetet sikeresen elküldtük!
Hiba történt!
INGATLAN ADATAI

Ingatlan jellege

ikerház

Belső terület

105 m²

Telek terület

360 m²

Építési állapot

használt

Építési mód

- nem meghatározott -

Szobák száma

4 szoba

Épület szintje

1.

Ingatlan állapot

kívül: jó
belül: jó

Fűtés

cirko

Komfort

duplakomfort

Közműállapot

csatorna: bekötve
gáz: bekötve
villany: bekötve
víz: bekötve

Az időpont kérés naptár ikonja
HTML
Az időpont kérés naptár ikonja
PDF
Eladó ikerház
Belső azonosító:
386255
Ingatlan azonosító:
35578_gimp

Budapest, XVII. kerület, Madárdomb

Irányár

115 M Ft
(1.1 M Ft/㎡)

Szobák

4 szoba

Emelet

Terület

105 m²

Telek terület

360 m²
INGATLAN LEÍRÁSA
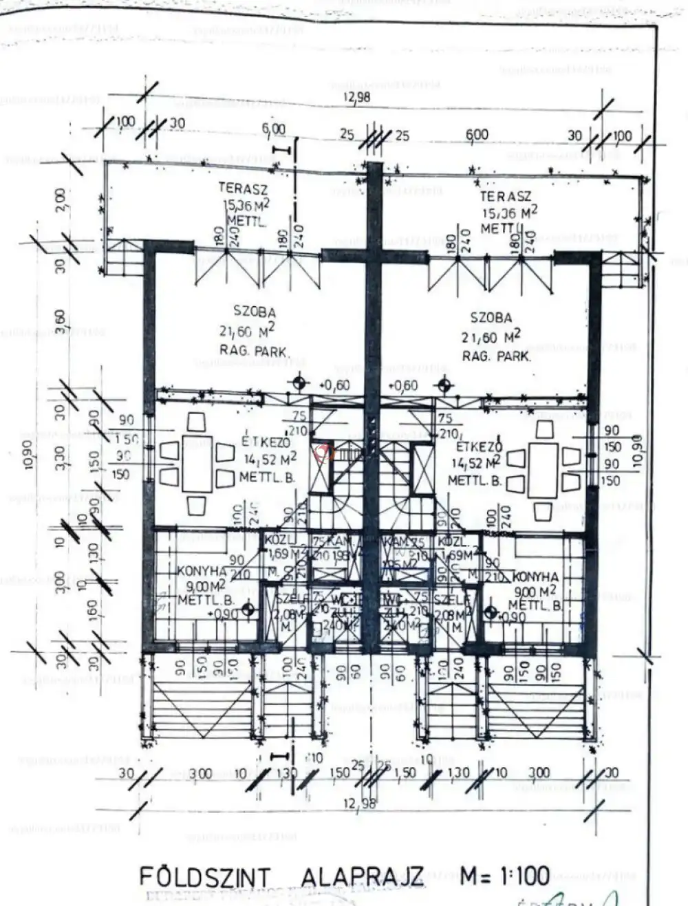
CSALÁDI OTTHON MADÁRDOMBON – KÉTSZINTES, KERTES, GARÁZSOS, ERKÉLYES!
105 nm lakótér ( + garázs, + pince + terasz + tároló + padlás) | 360 nm telek | Garázs + 2 beálló | Terasz | 118 M Ft

Ha egy igazán élhető, tágas otthont keresel jó közlekedéssel és barátságos környéken, ne görgess tovább! Ez a madárdombi ház mindent tud, amit ma elvárhatsz egy családi otthontól!

A HÁZRÓL:

105 m² kényelmes lakótér 2 szinten

Emelet: 3 hálószoba, kádas fürdő + külön WC

Földszint: zuhanyzós fürdő, külön WC-vel

9 m²-es konyha, tálaló ablakkal az étkezőhöz ami szinteltolással kapcsolódik a tágas nappalihoz

A nappaliból közvetlen kijárat a 15 m²-es teraszra, ami alatt tároló található ami még több praktikumot kínál

Klimatizált nappali a nyári napokra

MŰSZAKI ADATOK:

Téglaépítésű ház (1987)

Gázcirkó fűtés, melegvíz bojlerrel megoldott

Részben műanyag nyílászárók, redőnyök cserére szorulnak

Belmagasság 2,7–2,9 m

Cseréptető, masszív szerkezet

PINCE, GÉPÉSZET ÉS GÉPJÁRMŰ: (nincs beleszámolva az alapterületbe)

Pincében: külön kazánhelyiség (3,2 m²) + mosókonyha (8,7 m²) + közlekedő (3 m²)

19,2 m²-es garázs a ház alatt, amit a pincéből is megközelíthetsz

+2 autó beállási lehetőség az udvarban

ELHELYEZKEDÉS – MADÁRDOMB:

Aszfaltozott, csendes utca

Közelben: iskola, óvoda, boltok, orvosi rendelő, sportpályák

67-es busz pár perc sétára, 20 perc alatt az Örs vezér tere

Irányár: 118.000.000 Ft
Telek: 360 m²
Költözhető, de igény szerint alakítható

Ne maradj le róla! Hívj most, és nézd meg élőben ezt a valódi otthont!

INGATLAN ADATAI

Ingatlan jellege
ikerház
Belső terület
105 m²
Telek terület
360 m²
Építési állapot
használt
Építési mód
- nem meghatározott -
Szobák száma
4 szoba
Épület szintje
1.
Ingatlan állapot
kívül: jó
belül: jó
Fűtés
cirko
Komfort
duplakomfort
Közműállapot
csatorna: bekötve
gáz: bekötve
villany: bekötve
víz: bekötve
Energetika
TÉRKÉP

Budapest, XVII. kerület, Madárdomb

KAPCSOLAT
Béres Tünde
Béres Tünde


+36 20 402 6896

t.beres@gdn-ingatlan.hu

KAPCSOLAT
Béres Tünde

+36 20 402

t.beres@

Az időpont kérés naptár ikonja
IDŐPONTOT KÉREK
A visszahívás kérés telefon ikonja egy azt körbe ölelő nyíllal
VISSZAHÍVÁST KÉREK
Ajánlom egy ismerősömnek ikon
AJÁNLOM EGY ISMERŐSÖMNEK
Facebook megosztás ikon
MEGOSZTÁS

KAPCSOLATFELVÉTEL

Küldés

Az üzenetet sikeresen elküldtük!
Hiba történt!
INGATLAN ADATAI

Ingatlan jellege

ikerház

Belső terület

105 m²

Telek terület

360 m²

Építési állapot

használt

Építési mód

- nem meghatározott -

Szobák száma

4 szoba

Épület szintje

1.

Ingatlan állapot

kívül: jó
belül: jó

Fűtés

cirko

Komfort

duplakomfort

Közműállapot

csatorna: bekötve
gáz: bekötve
villany: bekötve
víz: bekötve

Energetika

Az időpont kérés naptár ikonja
HTML
Az időpont kérés naptár ikonja
PDF
Budapest, XVII. kerület - Madárdomb
Budapest, XVII. kerület - Madárdomb
Budapest, XVII. kerület - Madárdomb
Budapest, XVII. kerület - Madárdomb
Budapest, XVII. kerület - Madárdomb
Budapest, XVII. kerület - Madárdomb
Budapest, XVII. kerület - Madárdomb
Budapest, XVII. kerület - Madárdomb
Budapest, XVII. kerület - Madárdomb
Budapest, XVII. kerület - Madárdomb
Budapest, XVII. kerület - Madárdomb
Budapest, XVII. kerület - Madárdomb
Budapest, XVII. kerület - Madárdomb
Budapest, XVII. kerület - Madárdomb
Budapest, XVII. kerület - Madárdomb
Budapest, XVII. kerület - Madárdomb