Eladó újszerű ikerház - Szigethalom

Újszerű!
Újszerű
KAPCSOLAT
Róka Attila


+36 70 418

roka.attila@

Az időpont kérés naptár ikonja
IDŐPONTOT KÉREK
A visszahívás kérés telefon ikonja egy azt körbe ölelő nyíllal
VISSZAHÍVÁST KÉREK
Ajánlom egy ismerősömnek ikon
AJÁNLOM EGY ISMERŐSÖMNEK
Facebook megosztás ikon
MEGOSZTÁS

KAPCSOLATFELVÉTEL

Küldés

Az üzenetet sikeresen elküldtük!
Hiba történt!
INGATLAN ADATAI

Ingatlan jellege

ikerház

Belső terület

108 m²

Telek terület

406 m²

Tájolás

délkelet

Építési állapot

újszerű

Építési mód

tégla

Szobák száma

4+1 félszoba

Erkély

4.2 m²

Loggia

9 m²

Terasz

12.5 m²

Épület szintje

2.

Épült

2016

Ingatlan állapot

kívül: újszerű
belül: újszerű

Szigetelés

10 cm

Ablak szerkezete

2 rétegű thermoplan

Fűtés

cirko

Komfort

duplakomfort

Parkolás

van fedett felszíni beálló

Közműállapot

csatorna: bekötve
gáz: bekötve
villany: bekötve
víz: bekötve

Energetika

nincs megadva

Az időpont kérés naptár ikonja
HTML
Az időpont kérés naptár ikonja
PDF
Eladó újszerű ikerház
Ingatlan azonosító:
2594_rid

Pest megye, Szigethalom, Központ

Irányár

99.9 M Ft
(925 E Ft/㎡)

Szobák

4+1 félszoba

Terület

108 m²

Telek terület

406 m²
INGATLAN LEÍRÁSA
Családok figyelem! Szigethalom központjában, kis forgalmú, csendes, aszfaltozott utcában, kitűnő adottságokkal rendelkező, kétszintes, dupla komfortos, nettó 108 m2 alapterületű ikerház, 406 m2-es telekkel eladó. Az ingatlan társasházi alapító okirattal, valamint önálló helyrajzi számmal rendelkezik.

A ház beton alapra, beton födémmel, porotherm 30-as téglából épült, cseréppel fedett. 10 cm-es dryvittal szigetelt, kétrétegű üvegezéssel ellátott műanyag kültéri nyílászárók kerültek beépítésre, műanyag redőnyökkel ellátva.

A ház 2016-ban épült, az emeleti lakrész kialakítását 2021-ben fejezték be.

A földszint alapterülete 61 m2, itt található egy előszoba, amerikai konyhás nappali, egy szoba, fürdőszoba, külön WC, kamra, és lépcsőtér helyiségek, és van egy 12,5 m2-es fedett terasz is.
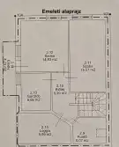
Az emeleten van egy közlekedő, 3 szoba, kádas fürdőszoba WC-vel, egy loggia helyiség, valamint egy 4,2 m2-es erkély. Az emelet 47 m2 alapterületű. Igény szerint az emeleten a loggia beépítésével kialakítható még egy 9 m2-es szoba.

A ház fűtése, meleg víz előállítása kondenzációs kazánnal megoldott. A földszinten a szoba kivételével minden helyiségben padlófűtés került kiépítésre, az emeleten a szobákban a hőleadás radiátorokon keresztül történik, kivéve a fürdőszobát, ahol padlófűtés van.

A földszinten a nappaliban kialakításra került egy kandalló kémény, valamint kiépítésre került a klíma kiállás is.

A földszinti helyiségek a szobát leszámítva járólappal burkoltak. Az emeleti helyiségek fürdőszobát leszámítva laminált padlóval vannak burkolva.

A konyhabútor a beépített gépészettel is a vételár részét képezi.

A kert szépen rendezett, gyümölcsfákkal, bokrokkal, virágokkal beültetett. Locsolása fúrt kútról történik.
Az udvaron található egy fedett kocsibeálló, valamint kialakításra került egy kis gyerek játszótér is.

A ház nagyszerű lehetőség arra, hogy egy család remek otthonává váljon.
Központi elhelyezkedésének köszönhetően minden egy karnyújtásnyira található tőle.
A közelben számtalan bevásárlási lehetőség található, élelmiszerbolt, szupermarketek, piac, éttermek, pizzéria stb. A közelben van általános iskola, óvoda, bölcsőde, posta, gyógyszertár, orvosi rendelő. Jó tömegközlekedési lehetőségek, 5 perc sétára található a helyi, és helyközi járat buszmegállója.


CSOK PLUSZ, 3%-os kedvezményes hitel igényelhető. Amennyiben CSOK PLUSZ-al vásárolja meg az ingatlant illetékmentesség jár!
Ingyenes HITEL és CSOK PLUSZ ügyintézés, nem csak nálunk vásárolt INGATLANOKRA!
Kérésére a kalkulációt és a hitel-elő bírálatot elkészítjük Önnek.
Cégünk ügyvédje jogi tanácsadással rendelkezésre áll.
Várjuk megtisztelő hívását!
A Facebookon is keressen minket, napi híreink megtekintéséhez!


INGATLAN ADATAI

Ingatlan jellege
ikerház
Belső terület
108 m²
Telek terület
406 m²
Tájolás
délkelet
Építési állapot
újszerű
Építési mód
tégla
Szobák száma
4+1 félszoba
Erkély
4.2 m²
Loggia
9 m²
Terasz
12.5 m²
Épület szintje
2.
Épült
2016
Ingatlan állapot
kívül: újszerű
belül: újszerű
Szigetelés
10 cm
Ablak szerkezete
2 rétegű thermoplan
Fűtés
cirko
Komfort
duplakomfort
Parkolás
van fedett felszíni beálló
Közműállapot
csatorna: bekötve
gáz: bekötve
villany: bekötve
víz: bekötve
Energetika
nincs megadva
TÉRKÉP

Pest megye, Szigethalom, Központ

KAPCSOLAT
Róka Attila
Róka Attila


+36 70 418 1637

roka.attila@ridom.hu

KAPCSOLAT
Róka Attila

+36 70 418

roka.attila@

Az időpont kérés naptár ikonja
IDŐPONTOT KÉREK
A visszahívás kérés telefon ikonja egy azt körbe ölelő nyíllal
VISSZAHÍVÁST KÉREK
Ajánlom egy ismerősömnek ikon
AJÁNLOM EGY ISMERŐSÖMNEK
Facebook megosztás ikon
MEGOSZTÁS

KAPCSOLATFELVÉTEL

Küldés

Az üzenetet sikeresen elküldtük!
Hiba történt!
INGATLAN ADATAI

Ingatlan jellege

ikerház

Belső terület

108 m²

Telek terület

406 m²

Tájolás

délkelet

Építési állapot

újszerű

Építési mód

tégla

Szobák száma

4+1 félszoba

Erkély

4.2 m²

Loggia

9 m²

Terasz

12.5 m²

Épület szintje

2.

Épült

2016

Ingatlan állapot

kívül: újszerű
belül: újszerű

Szigetelés

10 cm

Ablak szerkezete

2 rétegű thermoplan

Fűtés

cirko

Komfort

duplakomfort

Parkolás

van fedett felszíni beálló

Közműállapot

csatorna: bekötve
gáz: bekötve
villany: bekötve
víz: bekötve

Energetika

nincs megadva

Az időpont kérés naptár ikonja
HTML
Az időpont kérés naptár ikonja
PDF
Pest megye - Szigethalom
Pest megye - Szigethalom
Pest megye - Szigethalom
Pest megye - Szigethalom
Pest megye - Szigethalom
Pest megye - Szigethalom
Pest megye - Szigethalom
Pest megye - Szigethalom
Pest megye - Szigethalom
Pest megye - Szigethalom
Pest megye - Szigethalom
Pest megye - Szigethalom
Pest megye - Szigethalom
Pest megye - Szigethalom
Pest megye - Szigethalom
Pest megye - Szigethalom
Pest megye - Szigethalom
Pest megye - Szigethalom
Pest megye - Szigethalom
Pest megye - Szigethalom
Pest megye - Szigethalom
Pest megye - Szigethalom
Pest megye - Szigethalom
Pest megye - Szigethalom
Pest megye - Szigethalom
Pest megye - Szigethalom