Eladó ipari ingatlan - Szigethalom

KAPCSOLAT
Gergicsné B. Enikő


+36 30 941

e.gergicsne@

Az időpont kérés naptár ikonja
IDŐPONTOT KÉREK
A visszahívás kérés telefon ikonja egy azt körbe ölelő nyíllal
VISSZAHÍVÁST KÉREK
Ajánlom egy ismerősömnek ikon
AJÁNLOM EGY ISMERŐSÖMNEK
Facebook megosztás ikon
MEGOSZTÁS

KAPCSOLATFELVÉTEL

Küldés

Az üzenetet sikeresen elküldtük!
Hiba történt!
INGATLAN ADATAI

Ingatlan jellege

ipari ingatlan

Belső terület

6842 m²

Telek terület

1927 m²

Építési mód

- nem meghatározott -

Ingatlan állapot

kívül: jó
belül: jó

Fűtés

egyéb

Komfort

komfort

Közműállapot

csatorna: nincs adat
gáz: nincs adat
villany: nincs adat
víz: nincs adat

Kilátás

utcára

Az időpont kérés naptár ikonja
HTML
Az időpont kérés naptár ikonja
PDF
Eladó ipari ingatlan
Belső azonosító:
390982
Ingatlan azonosító:
35524_gimp

Pest megye, Szigethalom

Irányár

200 M Ft
(29.23 E Ft/㎡)

Szobák

0 szoba

Emelet

Terület

6842 m²

Telek terület

1927 m²
INGATLAN LEÍRÁSA
PEST VÁRMEGYE, SZIGETHALOM VÁROSÁBAN, ÖSSZTÖMEG KORLÁTOZÁS NÉLKÜL MEGKÖZELÍTHETŐ ZÓNÁBAN TELEPHELY, IPARI ÜZEM, IRODÁVAL ELADÓ!

Szigethalom megközelítése kiváló. A fővárost megkerülő MO-s autóút közvetlen kapcsolatot biztosít az M1-es, M3-as, az M5-ös, az M6-os és a az M7-es autópályákkal. A régi csepeli műút a közvetlen összeköttetés Budapesttel. Tömegközlekedési kapcsolatot a HÉV és a távolsági autóbuszok jelentik. A HÉV Budapest Közvágóhíd és Ráckeve között közlekedik, menetideje 40 perc. A HÉV-megálló az ingatlantól gyalog 2 perc, a autóbuszmegálló 1 perc távolságra van.

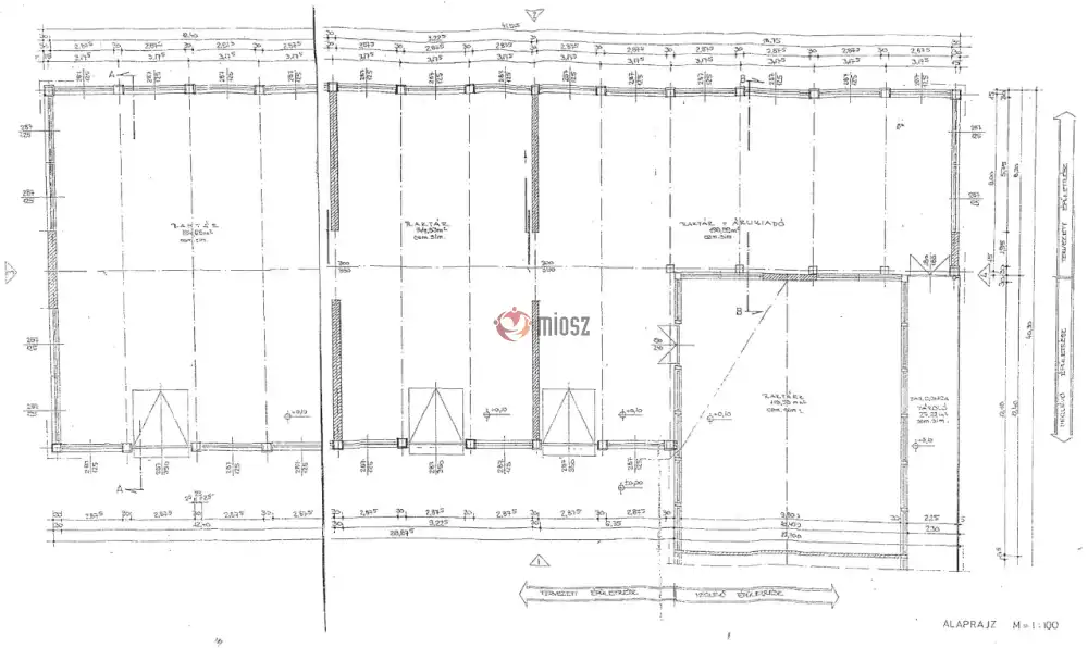
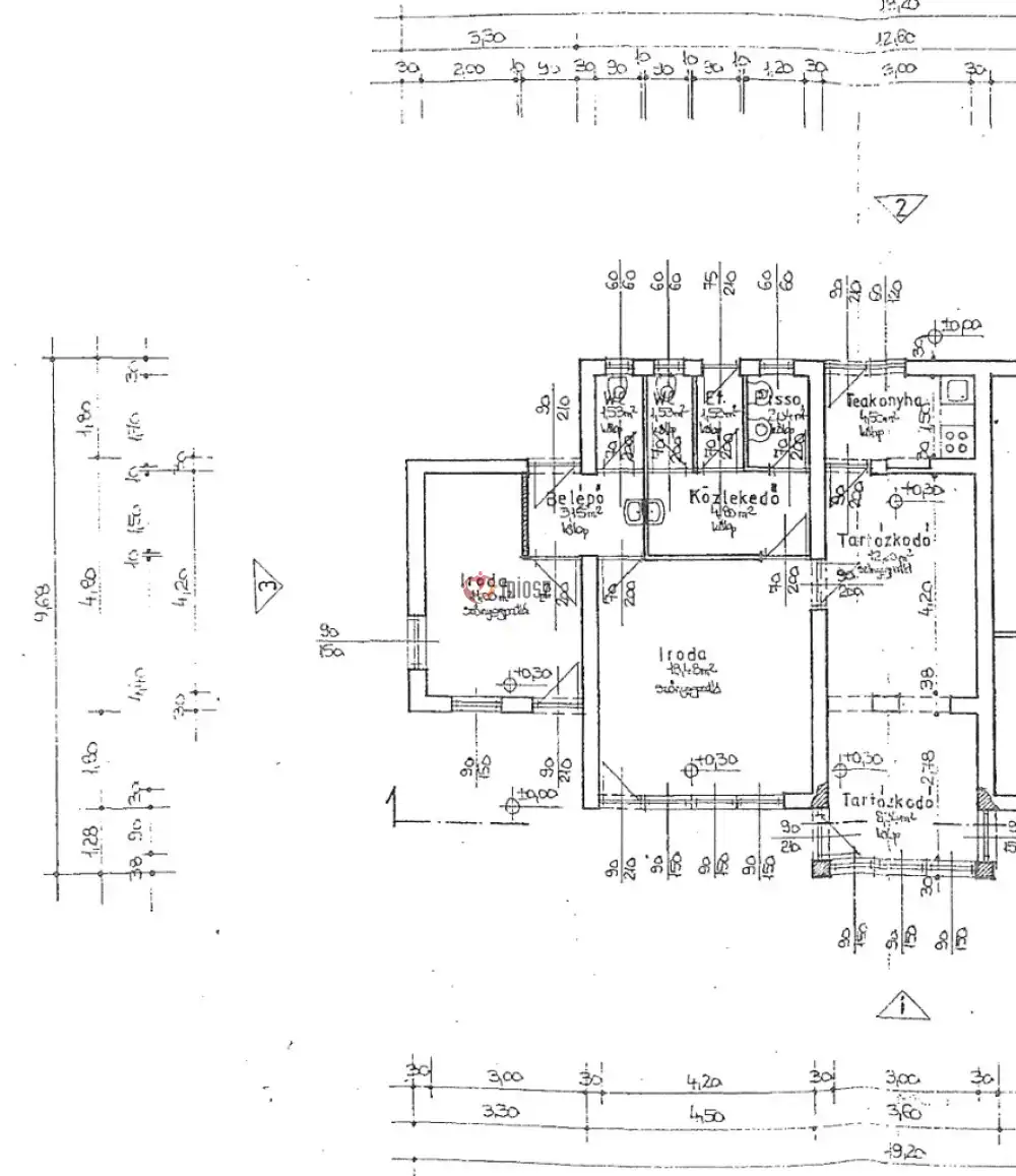
A telephely összesen 6.842m2 telek terület, amelyen nettó 685,2m2 alapterületű üzemi épület, 70m2 iroda és szociális helyiségek kerültek kialakításra.

Közművek: 3*660A ipari áram, vezetékes víz, szennyvíz csatorna, 200m3-es tüzivíz tároló, tűzcsap.

A terület gyártó, kereskedelmi, szolgáltató vegyes övezetbe tartozik.

Az övezet további jelölése: Gksz1

Beépítési paraméterek: szabadonálló beépítési mód, maximális beépíthetőség: 35%, maximális építmény magasság: 8,5m.

A kereskedelmi, szolgáltató gazdasági terület jellemzően kereskedelmi, szolgáltató célú és raktárépületek elhelyezésére szolgál.
A kereskedelmi, szolgáltató gazdasági területen elhelyezhető iroda,
a gazdasági területhez kapcsolódó diák- vagy munkásszállás, a gazdasági területhez kapcsolódó, közép- vagy felsőfokú szakmai képzést biztosító oktatási helyiség, a területen dolgozók ellátását szolgáló óvoda, bölcsőde, de egészségügyi rendeltetést is tartalmazhat.
Egy telken csak a gazdasági tevékenységi célú épületen belül, és kizárólag egy szolgálati és egy tulajdonosi lakás alakítható ki, a helyi építési szabályzatban meghatározott módon."

FINANSZÍROZÁS:
Nálunk mindent egy helyen intézhet:
- hivatalos ingatlanközvetítés;
- szakszerű jogi képviselet;
- profi hitelügyintézés: 3% vállalkozói hitel;

VÁROM MEGTISZTELŐ HÍVÁSÁT!

A részletes adatvédelmi tájékoztató folyamatosan elérhető a www.gdn-ingatlan.hu/adatvedelem oldalon.

INGATLAN ADATAI

Ingatlan jellege
ipari ingatlan
Belső terület
6842 m²
Telek terület
1927 m²
Építési mód
- nem meghatározott -
Ingatlan állapot
kívül: jó
belül: jó
Fűtés
egyéb
Komfort
komfort
Közműállapot
csatorna: nincs adat
gáz: nincs adat
villany: nincs adat
víz: nincs adat
Kilátás
utcára
Energetika
TÉRKÉP

Pest megye, Szigethalom

KAPCSOLAT
Gergicsné B. Enikő
Gergicsné B. Enikő


+36 30 941 0291

e.gergicsne@gdn-ingatlan.hu

KAPCSOLAT
Gergicsné B. Enikő

+36 30 941

e.gergicsne@

Az időpont kérés naptár ikonja
IDŐPONTOT KÉREK
A visszahívás kérés telefon ikonja egy azt körbe ölelő nyíllal
VISSZAHÍVÁST KÉREK
Ajánlom egy ismerősömnek ikon
AJÁNLOM EGY ISMERŐSÖMNEK
Facebook megosztás ikon
MEGOSZTÁS

KAPCSOLATFELVÉTEL

Küldés

Az üzenetet sikeresen elküldtük!
Hiba történt!
INGATLAN ADATAI

Ingatlan jellege

ipari ingatlan

Belső terület

6842 m²

Telek terület

1927 m²

Építési mód

- nem meghatározott -

Lift

nincs megadva

Ingatlan állapot

kívül: jó
belül: jó

Fűtés

egyéb

Komfort

komfort

Közműállapot

csatorna: nincs adat
gáz: nincs adat
villany: nincs adat
víz: nincs adat

Kilátás

utcára

Energetika

Az időpont kérés naptár ikonja
HTML
Az időpont kérés naptár ikonja
PDF
Pest megye - Szigethalom
Pest megye - Szigethalom
Pest megye - Szigethalom
Pest megye - Szigethalom
Pest megye - Szigethalom
Pest megye - Szigethalom
Pest megye - Szigethalom
Pest megye - Szigethalom
Pest megye - Szigethalom
Pest megye - Szigethalom
Pest megye - Szigethalom
Pest megye - Szigethalom
Pest megye - Szigethalom
Pest megye - Szigethalom
Pest megye - Szigethalom
Pest megye - Szigethalom