KAPCSOLAT
IDŐPONTOT KÉREK
VISSZAHÍVÁST KÉREK
AJÁNLOM EGY ISMERŐSÖMNEK
MEGOSZTÁS
KAPCSOLATFELVÉTEL
Az üzenetet sikeresen elküldtük!
Hiba történt!
INGATLAN ADATAI
Ingatlan jellege
panellakás
Belső terület
67 m²
Építési állapot
használt
Építési mód
- nem meghatározott -
Szobák száma
2+1 félszoba
Emelet
szuterén.
Épület szintje
4.
Ingatlan állapot
kívül: jó
belül: jó
Fűtés
távfűtés egyedi méréssel
Komfort
összkomfort
Kilátás
kertre
HTML
PDF
Eladó panellakás
Belső azonosító:
388139
Ingatlan azonosító:
35083_gimp
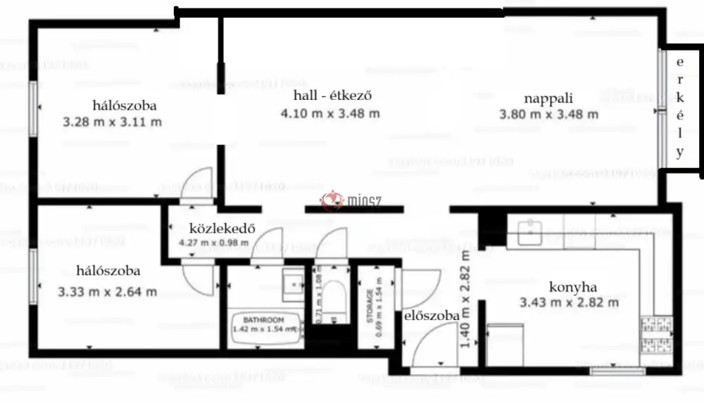
Budapest, XIX. kerület, Kispesti ltp.
Irányár
64.9 M Ft
(968.66 E Ft/㎡)
(968.66 E Ft/㎡)
Szobák
2+1 félszoba
Emelet
szuterén
Terület
67 m²
INGATLAN LEÍRÁSA
XIX. Kispesti lakótelepen, 4 emeletes szigetelt panel házban, 67 nm-es, 2 + 1 fél szobás, erkélyes FELÚJÍTANDÓ panel lakás eladó.
Az épület átesett a panel programon!
A lakás 1979-es építéskori állapotban van, tehát felújítandó.
A nyílászárókat 2010-ben műanyagra cserélték.
A radiátorok már szintén nem az eredetiek.
A lakás, K-Ny-i fekvésének köszönhetően, világos.
A fürdőszoba és a WC külön helyiségben kapott helyet.
A nappali az Ady Endre út felé néz, a két hálószoba az épület mögötti csendes parkra.
Az ingatlan tehermentes, azonnal birtokba vehető!
Hitelre vásárló ügyfeleinknek teljeskörű, ingyenes, bank semleges ügyintézéssel állunk rendelkezésére. Irodánk ügyvédje pedig kedvező díjszabással vállalja az adásvételi szerződés elkészítését.
Amennyiben még el kell adnia ingatlanát, kérem, tiszteljen meg bizalmával és kérje, nagy tapasztalattal rendelkező, az aktuális árakkal tisztában lévő, irodánk ajánlatát.
B.Zs.
Az épület átesett a panel programon!
A lakás 1979-es építéskori állapotban van, tehát felújítandó.
A nyílászárókat 2010-ben műanyagra cserélték.
A radiátorok már szintén nem az eredetiek.
A lakás, K-Ny-i fekvésének köszönhetően, világos.
A fürdőszoba és a WC külön helyiségben kapott helyet.
A nappali az Ady Endre út felé néz, a két hálószoba az épület mögötti csendes parkra.
Az ingatlan tehermentes, azonnal birtokba vehető!
Hitelre vásárló ügyfeleinknek teljeskörű, ingyenes, bank semleges ügyintézéssel állunk rendelkezésére. Irodánk ügyvédje pedig kedvező díjszabással vállalja az adásvételi szerződés elkészítését.
Amennyiben még el kell adnia ingatlanát, kérem, tiszteljen meg bizalmával és kérje, nagy tapasztalattal rendelkező, az aktuális árakkal tisztában lévő, irodánk ajánlatát.
B.Zs.
INGATLAN ADATAI
Ingatlan jellege
panellakás
Belső terület
67 m²
Építési állapot
használt
Építési mód
- nem meghatározott -
Szobák száma
2+1 félszoba
Emelet
szuterén.
Épület szintje
4.
Ingatlan állapot
kívül: jó
belül: jó
belül: jó
Fűtés
távfűtés egyedi méréssel
Komfort
összkomfort
Kilátás
kertre
Energetika
TÉRKÉP
Budapest, XIX. kerület, Kispesti ltp.
KAPCSOLAT

Gombár János
+36 30 338 0198
j.gombar@gdn-ingatlan.hu
KAPCSOLAT
IDŐPONTOT KÉREK
VISSZAHÍVÁST KÉREK
AJÁNLOM EGY ISMERŐSÖMNEK
MEGOSZTÁS
KAPCSOLATFELVÉTEL
Az üzenetet sikeresen elküldtük!
Hiba történt!
INGATLAN ADATAI
Ingatlan jellege
panellakás
Belső terület
67 m²
Építési állapot
használt
Építési mód
- nem meghatározott -
Szobák száma
2+1 félszoba
Emelet
szuterén.
Épület szintje
4.
Lift
nincs megadva
Ingatlan állapot
kívül: jó
belül: jó
Fűtés
távfűtés egyedi méréssel
Komfort
összkomfort
Kilátás
kertre
Energetika
HTML
PDF