KAPCSOLAT
IDŐPONTOT KÉREK
VISSZAHÍVÁST KÉREK
AJÁNLOM EGY ISMERŐSÖMNEK
MEGOSZTÁS
KAPCSOLATFELVÉTEL
Az üzenetet sikeresen elküldtük!
Hiba történt!
INGATLAN ADATAI
Ingatlan jellege
panellakás
Belső terület
62 m²
Építési állapot
használt
Építési mód
- nem meghatározott -
Szobák száma
2+1 félszoba
Emelet
4.
Épület szintje
4.
Ingatlan állapot
kívül: jó
belül: jó
Fűtés
központi egyedi méréssel
Komfort
összkomfort
Kilátás
utcára
HTML
PDF
Eladó panellakás
Belső azonosító:
387982
Ingatlan azonosító:
35051_gimp
Pest megye, Tököl, Pesti úti lakótelep
Irányár
49.9 M Ft
(804.84 E Ft/㎡)
(804.84 E Ft/㎡)
Szobák
2+1 félszoba
Emelet
4
Terület
62 m²
INGATLAN LEÍRÁSA
TÖKÖLÖN A PESTI ÚTI LAKÓTELEPEN ELADÓVÁ VÁLT, EGY KÉT ÉS FÉL SZOBÁS 62 NM ALAPTERÜLETŰ NEGYEDIK EMELETI FRANCIA ERKÉLYES TELJES-KÖRŰEN FELÚJÍTOTT LAKÁS!
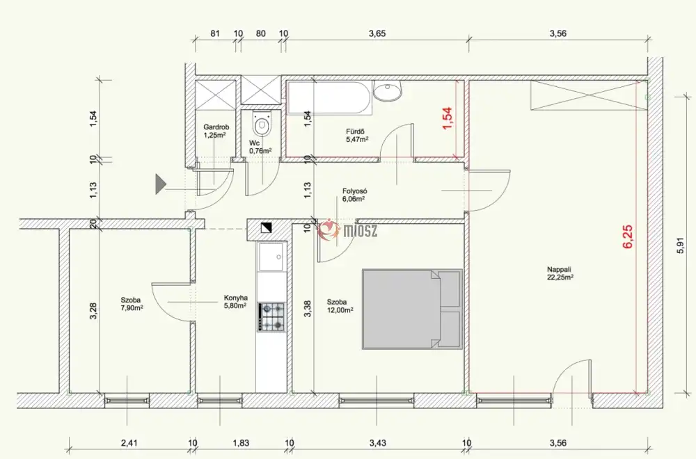
A lakás 4 szintes társas-ház negyedik emeletén helyezkedik el. Elosztása: előtér 6,06 m2, nappali 22,25 m2, szoba 12,00 m2, szoba 7,90 m2, konyha 5,80 m2, fürdőszoba 5,47 m2, külön toalett 0,76 m2, gardrób 1,25 m2, az ingatlanhoz a földszinten 4 nm zárható tároló is tartozik
A társas-ház melyben a lakás elhelyezkedik rendezett, jó lakó közösségnek örvend!
.
Burkolatai: fürdőszobában, wc-ben kerámia lap,egyéb helyiségekben laminált parketta, homlokzati nyílászárói műanyag szerkezetűek redőnyözöttek.
A lakás jelenlegi állapotát 2019-ben érte el. Ekkor megújult a teljes villamos hálózat, a teljes vízhálózat, minden burkolat, minden nyílászáró, 2020-ban be építésre került egy hűtő fűtő split klíma is.
Fűtése és meleg víz ellátása házközponti. Közös költség 20800 Ft/hó.
A konyhaszekrény a beépített gépekkel a vételár részét képezik.
A közelben megtalálható a közért, az orvosi rendelő, a posta, a bölcsőde, az óvoda, az iskola és az uszoda, illetve egy konditerem,
a Duna part 15 perc, Közösségi közlekedés 10 perc séta távolságra.
FINANSZÍROZÁS:
Nálunk mindent egy helyen intézhet:
- hivatalos ingatlanközvetítés;
- szakszerű jogi képviselet;
- profi CSOK-PLUSZ, és hitelügyintézés: 16 Bank, több mint 100 konstrukció;
VÁROM MEGTISZTELŐ HÍVÁSÁT!
A részletes adatvédelmi tájékoztató folyamatosan elérhető a gdn-ingatlan adatvédelmi oldalon.
A lakás 4 szintes társas-ház negyedik emeletén helyezkedik el. Elosztása: előtér 6,06 m2, nappali 22,25 m2, szoba 12,00 m2, szoba 7,90 m2, konyha 5,80 m2, fürdőszoba 5,47 m2, külön toalett 0,76 m2, gardrób 1,25 m2, az ingatlanhoz a földszinten 4 nm zárható tároló is tartozik
A társas-ház melyben a lakás elhelyezkedik rendezett, jó lakó közösségnek örvend!
.
Burkolatai: fürdőszobában, wc-ben kerámia lap,egyéb helyiségekben laminált parketta, homlokzati nyílászárói műanyag szerkezetűek redőnyözöttek.
A lakás jelenlegi állapotát 2019-ben érte el. Ekkor megújult a teljes villamos hálózat, a teljes vízhálózat, minden burkolat, minden nyílászáró, 2020-ban be építésre került egy hűtő fűtő split klíma is.
Fűtése és meleg víz ellátása házközponti. Közös költség 20800 Ft/hó.
A konyhaszekrény a beépített gépekkel a vételár részét képezik.
A közelben megtalálható a közért, az orvosi rendelő, a posta, a bölcsőde, az óvoda, az iskola és az uszoda, illetve egy konditerem,
a Duna part 15 perc, Közösségi közlekedés 10 perc séta távolságra.
FINANSZÍROZÁS:
Nálunk mindent egy helyen intézhet:
- hivatalos ingatlanközvetítés;
- szakszerű jogi képviselet;
- profi CSOK-PLUSZ, és hitelügyintézés: 16 Bank, több mint 100 konstrukció;
VÁROM MEGTISZTELŐ HÍVÁSÁT!
A részletes adatvédelmi tájékoztató folyamatosan elérhető a gdn-ingatlan adatvédelmi oldalon.
INGATLAN ADATAI
Ingatlan jellege
panellakás
Belső terület
62 m²
Építési állapot
használt
Építési mód
- nem meghatározott -
Szobák száma
2+1 félszoba
Emelet
4.
Épület szintje
4.
Ingatlan állapot
kívül: jó
belül: jó
belül: jó
Fűtés
központi egyedi méréssel
Komfort
összkomfort
Kilátás
utcára
Energetika
TÉRKÉP
Pest megye, Tököl, Pesti úti lakótelep
KAPCSOLAT

Csík Zsolt
+36 30 641 6167
zs.csik@gdn-ingatlan.hu
KAPCSOLAT
IDŐPONTOT KÉREK
VISSZAHÍVÁST KÉREK
AJÁNLOM EGY ISMERŐSÖMNEK
MEGOSZTÁS
KAPCSOLATFELVÉTEL
Az üzenetet sikeresen elküldtük!
Hiba történt!
INGATLAN ADATAI
Ingatlan jellege
panellakás
Belső terület
62 m²
Építési állapot
használt
Építési mód
- nem meghatározott -
Szobák száma
2+1 félszoba
Emelet
4.
Épület szintje
4.
Lift
nincs megadva
Ingatlan állapot
kívül: jó
belül: jó
Fűtés
központi egyedi méréssel
Komfort
összkomfort
Kilátás
utcára
Energetika
HTML
PDF