Eladó újszerű sorház - Biatorbágy

KAPCSOLAT
Korompay Rita


+36 20 419

k.rita@

Az időpont kérés naptár ikonja
IDŐPONTOT KÉREK
A visszahívás kérés telefon ikonja egy azt körbe ölelő nyíllal
VISSZAHÍVÁST KÉREK
Ajánlom egy ismerősömnek ikon
AJÁNLOM EGY ISMERŐSÖMNEK
Facebook megosztás ikon
MEGOSZTÁS

KAPCSOLATFELVÉTEL

Küldés

Az üzenetet sikeresen elküldtük!
Hiba történt!
INGATLAN ADATAI

Ingatlan jellege

sorház

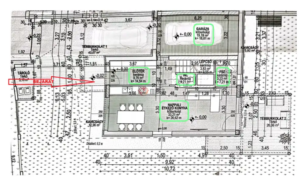
Belső terület

118 m²

Telek terület

182 m²

Építési állapot

újszerű

Építési mód

- nem meghatározott -

Szobák száma

4 szoba

Épület szintje

1.

Ingatlan állapot

kívül: jó
belül: jó

Fűtés

egyéb

Komfort

duplakomfort

Közműállapot

csatorna: bekötve
gáz: utcában
villany: bekötve
víz: bekötve

Az időpont kérés naptár ikonja
HTML
Az időpont kérés naptár ikonja
PDF
Eladó újszerű sorház
Belső azonosító:
389330
Ingatlan azonosító:
35331_gimp

Pest megye, Biatorbágy

Irányár

157 M Ft
(1.33 M Ft/㎡)

Szobák

4 szoba

Emelet

Terület

118 m²

Telek terület

182 m²
INGATLAN LEÍRÁSA
Modern, energiatakarékos otthon Biatorbágy szívében!

Eladó szép lakás Biatorbágy központjában, ami inkább egy ikerház jellegű sorház – saját, elkerített, 182 m²-es kerttel és hátsó terasszal, ahol garantált a nyugalom és a privát tér.

✅2 szint, 4 tágas szoba – ideális nagyobb családnak is
✅2 fürdőszoba + külön WC – kényelmes, praktikus elrendezés
✅Saját garázs 30 m2 + külön kocsibeálló
✅Hőszivattyús fűtés – környezetbarát, energiatakarékos megoldás
✅Alacsony rezsivel kb 15-20.000,- Ft/hó
✅Gondozott, kizárólagos használatú kert gyönyörű kilátással
✅Biatorbágy központjában, minden fontos szolgáltatás pár perc sétára
✅Jogilag rendezett társasházban, közös költség nélkül – csak a saját házadra költesz!

Hétvégén és ünnepnapokon is felveszem a telefont, ha nem érsz el visszahívlak!

Ha eltévednél az állami támoggatások erdejében segítünk kibogozni. Itt is van lehetőség második lakásos CSOK+ felvételére!

Teljeskörű, díjmentes hitelügyintézést is vállalunk, így az álomotthonod megvásárlása a lehető legkönnyebb lesz!

INGATLAN ADATAI

Ingatlan jellege
sorház
Belső terület
118 m²
Telek terület
182 m²
Építési állapot
újszerű
Építési mód
- nem meghatározott -
Szobák száma
4 szoba
Épület szintje
1.
Ingatlan állapot
kívül: jó
belül: jó
Fűtés
egyéb
Komfort
duplakomfort
Közműállapot
csatorna: bekötve
gáz: utcában
villany: bekötve
víz: bekötve
Energetika
TÉRKÉP

Pest megye, Biatorbágy

KAPCSOLAT
Korompay Rita
Korompay Rita


+36 20 419 7023

k.rita@gdn-ingatlan.hu

KAPCSOLAT
Korompay Rita

+36 20 419

k.rita@

Az időpont kérés naptár ikonja
IDŐPONTOT KÉREK
A visszahívás kérés telefon ikonja egy azt körbe ölelő nyíllal
VISSZAHÍVÁST KÉREK
Ajánlom egy ismerősömnek ikon
AJÁNLOM EGY ISMERŐSÖMNEK
Facebook megosztás ikon
MEGOSZTÁS

KAPCSOLATFELVÉTEL

Küldés

Az üzenetet sikeresen elküldtük!
Hiba történt!
INGATLAN ADATAI

Ingatlan jellege

sorház

Belső terület

118 m²

Telek terület

182 m²

Építési állapot

újszerű

Építési mód

- nem meghatározott -

Szobák száma

4 szoba

Épület szintje

1.

Ingatlan állapot

kívül: jó
belül: jó

Fűtés

egyéb

Komfort

duplakomfort

Közműállapot

csatorna: bekötve
gáz: utcában
villany: bekötve
víz: bekötve

Energetika

Az időpont kérés naptár ikonja
HTML
Az időpont kérés naptár ikonja
PDF
Pest megye - Biatorbágy
Pest megye - Biatorbágy
Pest megye - Biatorbágy
Pest megye - Biatorbágy
Pest megye - Biatorbágy
Pest megye - Biatorbágy
Pest megye - Biatorbágy
Pest megye - Biatorbágy
Pest megye - Biatorbágy
Pest megye - Biatorbágy
Pest megye - Biatorbágy
Pest megye - Biatorbágy
Pest megye - Biatorbágy
Pest megye - Biatorbágy
Pest megye - Biatorbágy
Pest megye - Biatorbágy