Eladó tanya - Kálmánháza

eladás folyamatban!
Eladás folyamatban
KAPCSOLAT
Boczákné Radvánszki Erzsébet


+36 20 772

boczakneerzsebet@

Az időpont kérés naptár ikonja
IDŐPONTOT KÉREK
A visszahívás kérés telefon ikonja egy azt körbe ölelő nyíllal
VISSZAHÍVÁST KÉREK
Ajánlom egy ismerősömnek ikon
AJÁNLOM EGY ISMERŐSÖMNEK
Facebook megosztás ikon
MEGOSZTÁS

KAPCSOLATFELVÉTEL

Küldés

Az üzenetet sikeresen elküldtük!
Hiba történt!
INGATLAN ADATAI

Ingatlan jellege

tanya

Belső terület

60 m²

Telek terület

5576 m²

Tájolás

dél, nyugat

Építési állapot

használt

Építési mód

vegyes

Szobák száma

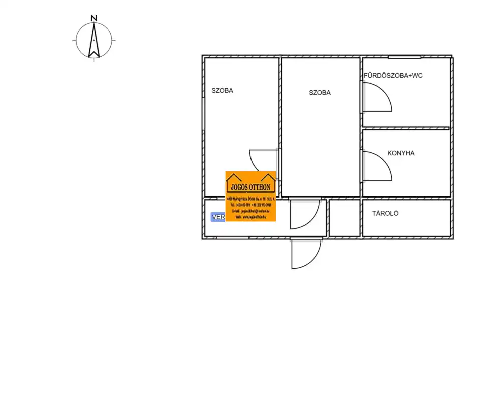
2 szoba

Szobák elhelyezkedése

egybenyílóak

Épület szintje

1.

Épült

kb. 1930

Lift

nincs

Ingatlan állapot

kívül: felújítandó
belül: felújítandó

Fűtés

gázkonvektor

Komfort

összkomfort

Közműállapot

csatorna: utcában
gáz: bekötve
villany: bekötve
víz: bekötve

Kilátás

kertre

Energetika

nincs megadva

Övezeti besorolás

uj-lf

Az időpont kérés naptár ikonja
HTML
Az időpont kérés naptár ikonja
PDF
Eladó tanya
Ingatlan azonosító:
5489_jobt

Szabolcs-Szatmár-Bereg megye, Kálmánháza, Varga dűlő

Irányár

11.9 M Ft
(198.33 E Ft/㎡)

Szobák

2 szoba

Terület

60 m²

Telek terület

5576 m²
INGATLAN LEÍRÁSA
ELADÁS FOLYAMATBAN !

Kálmánházán eladó egy tanyás ingatlan, amely kiváló lehetőség azok számára, akik vidéki nyugalomra, önálló gazdálkodásra vágynak! Nyíregyházától kb.15 km-re található.

Az ingatlan főbb jellemzői:
• kb.60 nm-es épület – 2 szoba, vert falazattal, külön helyen tárolásra alkalmas helyiség
• Fűtés: gáz + cserépkályha
• Közmű: víz, villany, gáz, emésztő
• Telken fúrt kút
• Telek mérete: 5576 nm
• Ingatlan nyilvántartási megnevezése: tanya, gyümölcsös és szántó
• Kizárólag készpénzes ügylet lehetséges

Az ingatlan adottságai alapján kiválóan alkalmas gazdálkodásra, kertészkedésre, állattartásra – vagy akár egy csendes vidéki otthon kialakítására is.

Elhelyezkedésének köszönhetően közel a központhoz, mégis nyugodt, természet közeli környezetben található.
Ha vidéki életre, nagy kertre és saját gazdálkodási lehetőségre nyitott valaki, ez az ingatlan ideális választás lehet !


INGATLAN ADATAI

Ingatlan jellege
tanya
Belső terület
60 m²
Telek terület
5576 m²
Tájolás
dél, nyugat
Építési állapot
használt
Építési mód
vegyes
Szobák száma
2 szoba
Szobák elhelyezkedése
egybenyílóak
Épület szintje
1.
Épült
kb. 1930
Lift
nincs
Ingatlan állapot
kívül: felújítandó
belül: felújítandó
Fűtés
gázkonvektor
Komfort
összkomfort
Közműállapot
csatorna: utcában
gáz: bekötve
villany: bekötve
víz: bekötve
Kilátás
kertre
Energetika
nincs megadva
Övezeti besorolás
uj-lf
TÉRKÉP

Szabolcs-Szatmár-Bereg megye, Kálmánháza, Varga dűlő

KAPCSOLAT
Boczákné Radvánszki Erzsébet
Boczákné Radvánszki Erzsébet


+36 20 772 5031

boczakneerzsebet@jogosotthon.hu

KAPCSOLAT
Boczákné Radvánszki Erzsébet

+36 20 772

boczakneerzsebet@

Az időpont kérés naptár ikonja
IDŐPONTOT KÉREK
A visszahívás kérés telefon ikonja egy azt körbe ölelő nyíllal
VISSZAHÍVÁST KÉREK
Ajánlom egy ismerősömnek ikon
AJÁNLOM EGY ISMERŐSÖMNEK
Facebook megosztás ikon
MEGOSZTÁS

KAPCSOLATFELVÉTEL

Küldés

Az üzenetet sikeresen elküldtük!
Hiba történt!
INGATLAN ADATAI

Ingatlan jellege

tanya

Belső terület

60 m²

Telek terület

5576 m²

Tájolás

dél, nyugat

Építési állapot

használt

Építési mód

vegyes

Szobák száma

2 szoba

Szobák elhelyezkedése

egybenyílóak

Épület szintje

1.

Épült

kb. 1930

Lift

nincs

Ingatlan állapot

kívül: felújítandó
belül: felújítandó

Fűtés

gázkonvektor

Komfort

összkomfort

Közműállapot

csatorna: utcában
gáz: bekötve
villany: bekötve
víz: bekötve

Kilátás

kertre

Energetika

nincs megadva

Övezeti besorolás

uj-lf

Az időpont kérés naptár ikonja
HTML
Az időpont kérés naptár ikonja
PDF
Szabolcs-Szatmár-Bereg megye - Kálmánháza
Szabolcs-Szatmár-Bereg megye - Kálmánháza
Szabolcs-Szatmár-Bereg megye - Kálmánháza
Szabolcs-Szatmár-Bereg megye - Kálmánháza
Szabolcs-Szatmár-Bereg megye - Kálmánháza
Szabolcs-Szatmár-Bereg megye - Kálmánháza
Szabolcs-Szatmár-Bereg megye - Kálmánháza
Szabolcs-Szatmár-Bereg megye - Kálmánháza
Szabolcs-Szatmár-Bereg megye - Kálmánháza
Szabolcs-Szatmár-Bereg megye - Kálmánháza
Szabolcs-Szatmár-Bereg megye - Kálmánháza
Szabolcs-Szatmár-Bereg megye - Kálmánháza
Szabolcs-Szatmár-Bereg megye - Kálmánháza
Szabolcs-Szatmár-Bereg megye - Kálmánháza
Szabolcs-Szatmár-Bereg megye - Kálmánháza