Eladó téglalakás - Budapest, VI. kerület

KAPCSOLAT
Békési Katalin


+36 30 718

kata@

Az időpont kérés naptár ikonja
IDŐPONTOT KÉREK
A visszahívás kérés telefon ikonja egy azt körbe ölelő nyíllal
VISSZAHÍVÁST KÉREK
Ajánlom egy ismerősömnek ikon
AJÁNLOM EGY ISMERŐSÖMNEK
Facebook megosztás ikon
MEGOSZTÁS

KAPCSOLATFELVÉTEL

Küldés

Az üzenetet sikeresen elküldtük!
Hiba történt!
INGATLAN ADATAI

Ingatlan jellege

téglalakás

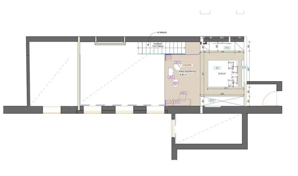
Belső terület

89 m²

Tájolás

délnyugat

Építési állapot

használt

Építési mód

tégla

Szobák száma

3 szoba

Szobák elhelyezkedése

külön nyílik min. 2 szoba

Emelet

1.

Épület szintje

5.

Épült

1900

Lift

van

Ingatlan állapot

kívül: jó
belül: kitűnő

Klíma

van

Fűtés

elektromos panel

Komfort

duplakomfort

Kilátás

udvarra

Energetika

nincs megadva

Extrák

teljesen berendezett, klíma

Az időpont kérés naptár ikonja
HTML
Az időpont kérés naptár ikonja
PDF
Eladó téglalakás
Belső azonosító:
1130
Ingatlan azonosító:
4087_mlux

Budapest, VI. kerület, Terézváros (Nagykörúton belül), Nagymező utca

Irányár

169 M Ft
(1.9 M Ft/㎡)

Szobák

3 szoba

Emelet

1

Terület

89 m²
INGATLAN LEÍRÁSA
Eladó lakás a belső Terézvárosban – Kiváló befektetési lehetőség!

Eladó a VI. kerület szívében, a Nagymező utcában, az Andrássy út közvetlen közelében egy kiváló állapotú, 89 m²-es, kétszintes lakás. A társasház külső homlokzata rendezett, karbantartott, világos belső udvarral.

A 2021-ben teljes körűen felújított, modern, amerikai konyhás nappalival és 3 hálószobával rendelkező ingatlan ideális választás családoknak, illetve befektetőknek is, hiszen jelenleg is Airbnb-ként működik, de hosszú távra is könnyen kiadható.

A lakásban design elemek és minőségi bútorok kaptak helyet, amik a vételár részét képezik. A fűtést elektromos panelek és hűtő-fűtő klímák biztosítják, így a fenntartása korszerű és gazdaságos.
A dupla komfortos kialakításnak köszönhetően 2 fürdőszoba WC-vel, valamint egy külön vendég-WC is található az ingatlanban.
Kiváló lokáció:

Pár perc sétára található a 4-6-os villamos, a kisföldalatti (Opera, Oktogon megálló), valamint a 3-as metró Arany János utcai megállója. Éttermek, színházak, kávézók, bevásárlási lehetőségek mind a közelben.

Irányár: 169 MFt

Ne hagyja ki ezt a ritka lehetőséget a belváros egyik legkeresettebb utcájában!
Hívjon most, és tekintse meg személyesen ezt a stílusos ingatlant!

Refszám: 1130

Ha épp nem tudom felvenni a telefont, rövidesen visszahívom.
Kereső ügyfeleink részére a szolgáltatásunk díjtalan
Érdeklődés esetén adatait a weboldalunkon lévő adatkezelési szabályzatunk szerint kezeljük.

Irodánk ügyfeleinknek kedvező, alacsony sikerdíjjal párosított szakértelemmel áll rendelkezésére.
Ügyvédi háttérrel, ingyenes hitel tanácsadással, teljeskörű ügyintézéssel segítjük Önt.


INGATLAN ADATAI

Ingatlan jellege
téglalakás
Belső terület
89 m²
Tájolás
délnyugat
Építési állapot
használt
Építési mód
tégla
Szobák száma
3 szoba
Szobák elhelyezkedése
külön nyílik min. 2 szoba
Emelet
1.
Épület szintje
5.
Épült
1900
Lift
van
Ingatlan állapot
kívül: jó
belül: kitűnő
Klíma
van
Fűtés
elektromos panel
Komfort
duplakomfort
Kilátás
udvarra
Energetika
nincs megadva
Extrák
teljesen berendezett, klíma
TÉRKÉP

Budapest, VI. kerület, Terézváros, Nagymező utca

KAPCSOLAT
Békési Katalin
Békési Katalin


+36 30 718 3820

kata@ingatlanok-hitelek.hu

KAPCSOLAT
Békési Katalin

+36 30 718

kata@

Az időpont kérés naptár ikonja
IDŐPONTOT KÉREK
A visszahívás kérés telefon ikonja egy azt körbe ölelő nyíllal
VISSZAHÍVÁST KÉREK
Ajánlom egy ismerősömnek ikon
AJÁNLOM EGY ISMERŐSÖMNEK
Facebook megosztás ikon
MEGOSZTÁS

KAPCSOLATFELVÉTEL

Küldés

Az üzenetet sikeresen elküldtük!
Hiba történt!
INGATLAN ADATAI

Ingatlan jellege

téglalakás

Belső terület

89 m²

Tájolás

délnyugat

Építési állapot

használt

Építési mód

tégla

Szobák száma

3 szoba

Szobák elhelyezkedése

külön nyílik min. 2 szoba

Emelet

1.

Épület szintje

5.

Épült

1900

Lift

van

Ingatlan állapot

kívül: jó
belül: kitűnő

Klíma

van

Fűtés

elektromos panel

Komfort

duplakomfort

Kilátás

udvarra

Energetika

nincs megadva

Extrák

teljesen berendezett, klíma

Az időpont kérés naptár ikonja
HTML
Az időpont kérés naptár ikonja
PDF
Budapest, VI. kerület - Terézváros (Nagykörúton belül)
Budapest, VI. kerület - Terézváros (Nagykörúton belül)
Budapest, VI. kerület - Terézváros (Nagykörúton belül)
Budapest, VI. kerület - Terézváros (Nagykörúton belül)
Budapest, VI. kerület - Terézváros (Nagykörúton belül)
Budapest, VI. kerület - Terézváros (Nagykörúton belül)
Budapest, VI. kerület - Terézváros (Nagykörúton belül)
Budapest, VI. kerület - Terézváros (Nagykörúton belül)
Budapest, VI. kerület - Terézváros (Nagykörúton belül)
Budapest, VI. kerület - Terézváros (Nagykörúton belül)
Budapest, VI. kerület - Terézváros (Nagykörúton belül)
Budapest, VI. kerület - Terézváros (Nagykörúton belül)
Budapest, VI. kerület - Terézváros (Nagykörúton belül)
Budapest, VI. kerület - Terézváros (Nagykörúton belül)
Budapest, VI. kerület - Terézváros (Nagykörúton belül)
Budapest, VI. kerület - Terézváros (Nagykörúton belül)
Budapest, VI. kerület - Terézváros (Nagykörúton belül)
Budapest, VI. kerület - Terézváros (Nagykörúton belül)
Budapest, VI. kerület - Terézváros (Nagykörúton belül)
Budapest, VI. kerület - Terézváros (Nagykörúton belül)
Budapest, VI. kerület - Terézváros (Nagykörúton belül)