KAPCSOLAT
IDŐPONTOT KÉREK
VISSZAHÍVÁST KÉREK
AJÁNLOM EGY ISMERŐSÖMNEK
MEGOSZTÁS
KAPCSOLATFELVÉTEL
Az üzenetet sikeresen elküldtük!
Hiba történt!
INGATLAN ADATAI
Ingatlan jellege
téglalakás
Belső terület
48 m²
Építési állapot
használt
Építési mód
- nem meghatározott -
Szobák száma
2 szoba
Emelet
2.
Épület szintje
5.
Ingatlan állapot
kívül: jó
belül: jó
Fűtés
központi egyedi méréssel
Komfort
összkomfort
Kilátás
kertre
HTML
PDF
Eladó téglalakás
Belső azonosító:
389212
Ingatlan azonosító:
35295_gimp
Budapest, XI. kerület, Albertfalva
Irányár
84.9 M Ft
(1.77 M Ft/㎡)
(1.77 M Ft/㎡)
Szobák
2 szoba
Emelet
2
Terület
48 m²
INGATLAN LEÍRÁSA
CSAK AZ IRODÁNK KÍNÁLATÁBAN !
A XI. kerület Csurgói úton a TÖLGYES LAKÓPARKBAN, egy 2 szobás, amerikai konyhás, 2 emeleti lakást 13 m2-es fedett erkéllyel kínálunk megvételre.
A lakás jó állapotú, modern, praktikusan berendezhető és mindkét szobából kiléphetünk a zöldövezeti kilátást adó nagy erkélyre.
A lakás helyiségei:
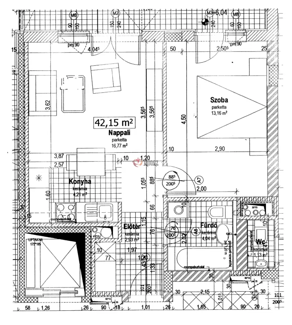
Az előtér 3 m2, nappali amerikai konyhával 16,8 m2, hálószoba 13 m2, fürdőszoba + WC 4 m2, terasz 13 m2.
A helyiségek elrendezését, méreteit lásd az ALAPRAJZON !
A lakópark zárt, biztonsági szolgálat által őrzött terület.
A lakás kulturált zárt lépcsőházból, lifttel is megközelíthető.
A közös költség 20.000 Ft /hó.
Az ingatlan, TEHERMENTES, egy tulajdonostól eladó!
KIVÁLÓ AJÁNLAT lehet azoknak, akik biztonságos, zöldövezeti, nyugodt otthont keresnek.
Az ingatlan tömegközlekedése NAGYON JÓ !
Tétényi út és a Fehérvári út közelsége miatt, busszal, villamossal könnyen megközelíthető. A parkolás közterületen ingyenes.
A közelben minden megtalálható, óvoda, iskola, orvosi rendelő, parkok, játszóterek és bevásárlási lehetőségek.
Hiteligénylés miatt kezdeményezheti díjmentesen a kapcsolatfelvételt hitelszakértő munkatársunkkal.
Az Ingatlan megtekintése ELŐRE EGYEZTETETT IDŐPONTBAN
lehetséges.
Amennyiben felkeltette érdeklődését, további kérdéseivel VÁROM JELENTKEZÉSÉT !
(G.I.)
A XI. kerület Csurgói úton a TÖLGYES LAKÓPARKBAN, egy 2 szobás, amerikai konyhás, 2 emeleti lakást 13 m2-es fedett erkéllyel kínálunk megvételre.
A lakás jó állapotú, modern, praktikusan berendezhető és mindkét szobából kiléphetünk a zöldövezeti kilátást adó nagy erkélyre.
A lakás helyiségei:
Az előtér 3 m2, nappali amerikai konyhával 16,8 m2, hálószoba 13 m2, fürdőszoba + WC 4 m2, terasz 13 m2.
A helyiségek elrendezését, méreteit lásd az ALAPRAJZON !
A lakópark zárt, biztonsági szolgálat által őrzött terület.
A lakás kulturált zárt lépcsőházból, lifttel is megközelíthető.
A közös költség 20.000 Ft /hó.
Az ingatlan, TEHERMENTES, egy tulajdonostól eladó!
KIVÁLÓ AJÁNLAT lehet azoknak, akik biztonságos, zöldövezeti, nyugodt otthont keresnek.
Az ingatlan tömegközlekedése NAGYON JÓ !
Tétényi út és a Fehérvári út közelsége miatt, busszal, villamossal könnyen megközelíthető. A parkolás közterületen ingyenes.
A közelben minden megtalálható, óvoda, iskola, orvosi rendelő, parkok, játszóterek és bevásárlási lehetőségek.
Hiteligénylés miatt kezdeményezheti díjmentesen a kapcsolatfelvételt hitelszakértő munkatársunkkal.
Az Ingatlan megtekintése ELŐRE EGYEZTETETT IDŐPONTBAN
lehetséges.
Amennyiben felkeltette érdeklődését, további kérdéseivel VÁROM JELENTKEZÉSÉT !
(G.I.)
INGATLAN ADATAI
Ingatlan jellege
téglalakás
Belső terület
48 m²
Építési állapot
használt
Építési mód
- nem meghatározott -
Szobák száma
2 szoba
Emelet
2.
Épület szintje
5.
Ingatlan állapot
kívül: jó
belül: jó
belül: jó
Fűtés
központi egyedi méréssel
Komfort
összkomfort
Kilátás
kertre
Energetika
TÉRKÉP
Budapest, XI. kerület, Albertfalva
KAPCSOLAT
Nyegrutz Tibor
+36 30 250 4987
ny.tibor@gdn-ingatlan.hu
KAPCSOLAT
IDŐPONTOT KÉREK
VISSZAHÍVÁST KÉREK
AJÁNLOM EGY ISMERŐSÖMNEK
MEGOSZTÁS
KAPCSOLATFELVÉTEL
Az üzenetet sikeresen elküldtük!
Hiba történt!
INGATLAN ADATAI
Ingatlan jellege
téglalakás
Belső terület
48 m²
Építési állapot
használt
Építési mód
- nem meghatározott -
Szobák száma
2 szoba
Emelet
2.
Épület szintje
5.
Lift
nincs megadva
Ingatlan állapot
kívül: jó
belül: jó
Fűtés
központi egyedi méréssel
Komfort
összkomfort
Kilátás
kertre
Energetika
HTML
PDF