Eladó téglalakás - Budapest, XI. kerület

KAPCSOLAT
Bakos Zsuzsanna


+36 20 974

zsuzsanna.bakos@

Az időpont kérés naptár ikonja
IDŐPONTOT KÉREK
A visszahívás kérés telefon ikonja egy azt körbe ölelő nyíllal
VISSZAHÍVÁST KÉREK
Ajánlom egy ismerősömnek ikon
AJÁNLOM EGY ISMERŐSÖMNEK
Facebook megosztás ikon
MEGOSZTÁS

KAPCSOLATFELVÉTEL

Küldés

Az üzenetet sikeresen elküldtük!
Hiba történt!
INGATLAN ADATAI

Ingatlan jellege

téglalakás

Belső terület

51 m²

Tájolás

délnyugat

Építési állapot

használt

Építési mód

tégla

Szobák száma

2 szoba

Szobák elhelyezkedése

külön nyílik min. 2 szoba, de a fürdőből

Kert

(közös kerthasználat)

Erkély

3 m²

Emelet

1.

Épület szintje

4.

Épült

kb. 1975

Lift

van

Ingatlan állapot

kívül: jó
belül: jó

Ablak szerkezete

hagyományos

Fűtés

távfűtés

Komfort

összkomfort

Kilátás

utcára, parkra

Energetika

nincs megadva

Az időpont kérés naptár ikonja
HTML
Az időpont kérés naptár ikonja
PDF
Eladó téglalakás
Ingatlan azonosító:
1527_bl

Budapest, XI. kerület, Lágymányosi lakótelep, Baranyai utca

Irányár

76.9 M Ft
(1.51 M Ft/㎡)

Szobák

2 szoba

Emelet

1

Terület

51 m²
INGATLAN LEÍRÁSA
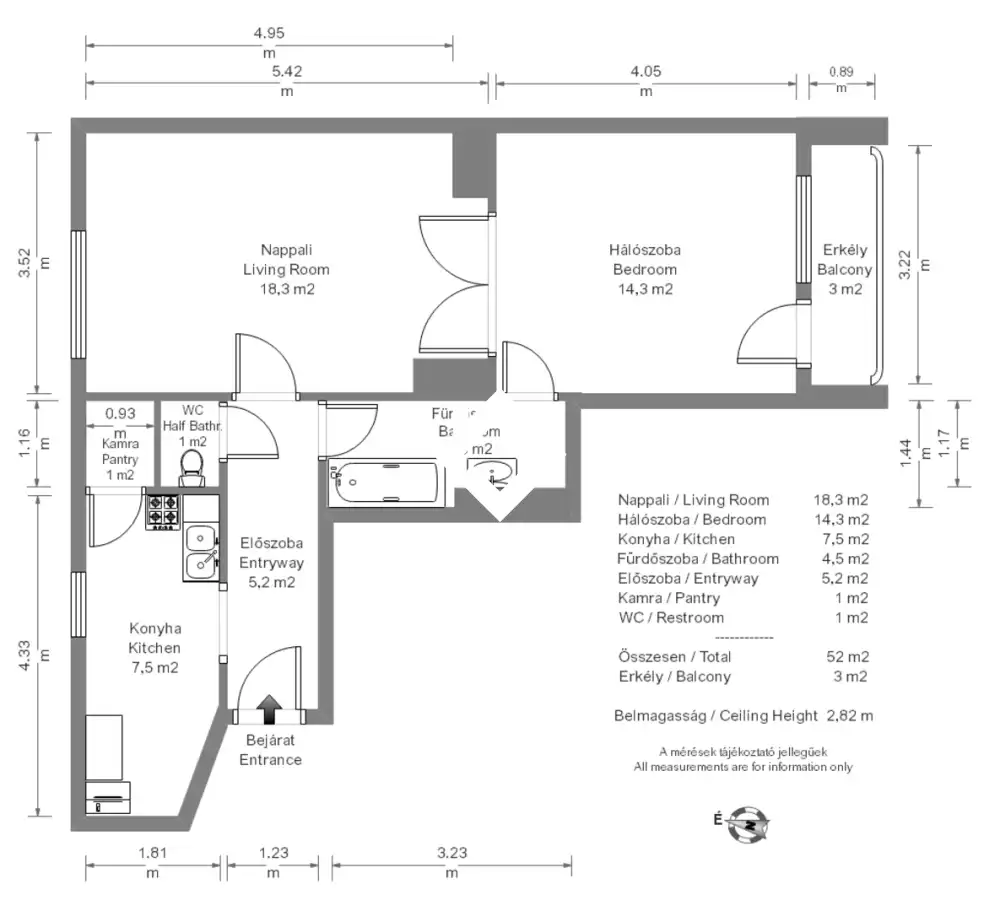
XI. kerület központi részén, mégis csendes utcában eladó első emeleti, napfényes, 51 nm-es, 2 szobás, erkélyes lakás, egy 1970-es években épült 4 emeletes liftes házban.

A lakásban 2 külön és egybe is nyitható szoba, melyből az egyik erkélyes, konyha, kamra, kádas fürdőszoba, külön wc és előszoba helyiségek találhatók. Az erkélyes szoba kellemes zöld parkra néz, a másik szoba pedig csendes utcára. A lakáshoz tartozik egy zárt, kb. 3 nm-es pincetároló is. A lakás előtti zárt előteret, ami a lépcsőházból nyílik, csak 2 lakás használja, így ez a rész akár kerékpár tárolására is alkalmas lehet.

Távfűtéssel fűtött, a melegvizet gázbojler biztosítja. A lakásban 2012-ben teljes körű felújítás történt, azóta pedig tisztasági festés volt 1-2 éve. Szobák parkettásak, a többi helyiség járólappal burkolt. Belmagasság: kb. 290 cm.
Közös költség: 25.000 Ft/hó. Vízórás. Távfűtés díja: 10.800 Ft/hó

A társasházban nagy méretű, belső, szép zöld, közös használatú parkosított kert áll a lakók rendelkezésre.
A környéken kiváló tömegközlekedés és infrastruktúra: Allee bevásárló központ gyalogosan 5 percre, 4-es villamos megálló 4 percre, 4-es metró, 41/47/17-es villamos, Újbuda megálló 7 perc séta, BME csak pár megállóra.

Könnyen kiadható, jelenleg is bérlő lakja.


INGATLAN ADATAI

Ingatlan jellege
téglalakás
Belső terület
51 m²
Tájolás
délnyugat
Építési állapot
használt
Építési mód
tégla
Szobák száma
2 szoba
Szobák elhelyezkedése
külön nyílik min. 2 szoba, de a fürdőből
Kert
(közös kerthasználat)
Erkély
3 m²
Emelet
1.
Épület szintje
4.
Épült
kb. 1975
Lift
van
Ingatlan állapot
kívül: jó
belül: jó
Ablak szerkezete
hagyományos
Fűtés
távfűtés
Komfort
összkomfort
Kilátás
utcára, parkra
Energetika
nincs megadva
TÉRKÉP

Budapest, XI. kerület, Lágymányosi lakótelep, Baranyai utca

KAPCSOLAT
Bakos Zsuzsanna
Bakos Zsuzsanna


+36 20 974 0571

zsuzsanna.bakos@t-online.hu

KAPCSOLAT
Bakos Zsuzsanna

+36 20 974

zsuzsanna.bakos@

Az időpont kérés naptár ikonja
IDŐPONTOT KÉREK
A visszahívás kérés telefon ikonja egy azt körbe ölelő nyíllal
VISSZAHÍVÁST KÉREK
Ajánlom egy ismerősömnek ikon
AJÁNLOM EGY ISMERŐSÖMNEK
Facebook megosztás ikon
MEGOSZTÁS

KAPCSOLATFELVÉTEL

Küldés

Az üzenetet sikeresen elküldtük!
Hiba történt!
INGATLAN ADATAI

Ingatlan jellege

téglalakás

Belső terület

51 m²

Tájolás

délnyugat

Építési állapot

használt

Építési mód

tégla

Szobák száma

2 szoba

Szobák elhelyezkedése

külön nyílik min. 2 szoba, de a fürdőből

Kert

(közös kerthasználat)

Erkély

3 m²

Emelet

1.

Épület szintje

4.

Épült

kb. 1975

Lift

van

Ingatlan állapot

kívül: jó
belül: jó

Ablak szerkezete

hagyományos

Fűtés

távfűtés

Komfort

összkomfort

Kilátás

utcára, parkra

Energetika

nincs megadva

Az időpont kérés naptár ikonja
HTML
Az időpont kérés naptár ikonja
PDF
Budapest, XI. kerület - Lágymányosi lakótelep
Budapest, XI. kerület - Lágymányosi lakótelep
Budapest, XI. kerület - Lágymányosi lakótelep
Budapest, XI. kerület - Lágymányosi lakótelep
Budapest, XI. kerület - Lágymányosi lakótelep
Budapest, XI. kerület - Lágymányosi lakótelep
Budapest, XI. kerület - Lágymányosi lakótelep
Budapest, XI. kerület - Lágymányosi lakótelep
Budapest, XI. kerület - Lágymányosi lakótelep
Budapest, XI. kerület - Lágymányosi lakótelep
Budapest, XI. kerület - Lágymányosi lakótelep
Budapest, XI. kerület - Lágymányosi lakótelep
Budapest, XI. kerület - Lágymányosi lakótelep
Budapest, XI. kerület - Lágymányosi lakótelep
Budapest, XI. kerület - Lágymányosi lakótelep
Budapest, XI. kerület - Lágymányosi lakótelep
Budapest, XI. kerület - Lágymányosi lakótelep