Eladó újszerű téglalakás - Budapest, XIV. kerület

KAPCSOLAT
Kislakás Zuglóban


+36 30 821

zlakasok@

Az időpont kérés naptár ikonja
IDŐPONTOT KÉREK
A visszahívás kérés telefon ikonja egy azt körbe ölelő nyíllal
VISSZAHÍVÁST KÉREK
Ajánlom egy ismerősömnek ikon
AJÁNLOM EGY ISMERŐSÖMNEK
Facebook megosztás ikon
MEGOSZTÁS

KAPCSOLATFELVÉTEL

Küldés

Az üzenetet sikeresen elküldtük!
Hiba történt!
INGATLAN ADATAI

Ingatlan jellege

téglalakás

Belső terület

80 m²

Tájolás

kelet, délkelet

Építési állapot

újszerű

Építési mód

tégla

Szobák száma

3 szoba

Szobák elhelyezkedése

külön nyílik min. 2 szoba

Loggia

6.68 m²

Emelet

5.

Épület szintje

6.

Épült

2011

Akadálymentes

részlegesen

Lift

van

Ingatlan állapot

kívül: kitűnő
belül: kitűnő

Klíma

van

Szigetelés

10 cm

Ablak szerkezete

3 rétegű thermoplan

Fűtés

központi egyedi méréssel

Komfort

összkomfort

Parkolás

van, nem meghatározott

Kilátás

kertre

Energetika

A 2024:

Az időpont kérés naptár ikonja
HTML
Az időpont kérés naptár ikonja
PDF
Eladó újszerű téglalakás
Ingatlan azonosító:
7930_webing2

Budapest, XIV. kerület, Kiszugló

Irányár

121.4 M Ft
(1.52 M Ft/㎡)

Szobák

3 szoba

Emelet

5

Terület

80 m²
INGATLAN LEÍRÁSA
Zuglóban, a megújult Bosnyák téri városközpont közelében újszerű lakás eladó!

Kiváló közlekedéssel és ellátottsággal rendelkező környéken saját otthont keresők vagy hosszú távú befektetésben gondolkodók számára is alkalmas lakást kínálunk.

A csendes mellékutcában álló 21 lakásos, parkolási lehetőséggel és lifttel rendelkező társasház 2011-ben került átadásra. A kipróbált, modern épület kívülről attraktív megjelenésű, a lépcsőház és a lift esztétikus, a jó lakóközösségnek köszönhetően tiszta és rendben tartott.

A lakások jó minőségben, tágas terekkel épültek, kedvező energetikai adottsággal rendelkeznek, így fenntartásuk gazdaságos. Az elhelyezkedésnek köszönhetően minden lakás világos, napfényes, az ablakokból szembe szomszédtól mentes, akadálytalan kilátás nyílik a környékre és távolabbra is.

Az otthonok számára magas komfort érzetet biztosít a fűtést és állandó melegvíz ellátást biztosító központi kazán. A lakók igény szerint szabályozhatják energia felhasználásukat, mivel a lakásokban minden radiátor termo-fejes szabályzóval van felszerelve. A hőmennyiségmérők, a hideg-meleg vízórák és a villanyóra a lakáson kívül vannak elhelyezve.

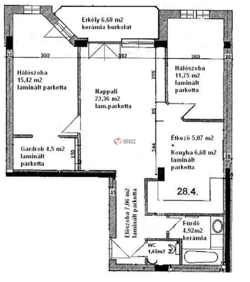
Az 5. emeleti, 80 m2-es lakás egy tágas nappalival és két hálószobával rendelkezik. A nappaliból nyílik a 7 m2-es, pihenésre jól használható loggia. A loggia és a lakószobák ablakai csendes belső kertekre néznek, kelet-délkelet irányba, a reggeli és délelőtti napfénybe.

A szeparáltan kialakított tágas konyha a kényelmes étkezővel, a nappalival egy légtérben van. A beépített konyhabútor kerámia főzőlappal, légkeveréses sütővel, szagelszívóval felszerelt, mosogatógép bekötési lehetőség kialakítva. Kamra hiányában akár egy nagyobb hűtőszekrény is elhelyezhető.

A 12 és 15 m2-es hálószobákban kényelmesen elfér a franciaágy éjjeli szekrényekkel. A nagyobb hálóhoz kapcsolódik egy4,5 m2-es gardrob helyiség, amit teljesen be lehet építeni szekrényekkel és innen is ki lehet lépni az erkélyre. A kisebbik háló kiváló gyerek- vagy vendégszobának.

Az előszoba- közlekedőből nyílnak a mellékhelyiségek. A tágas fürdő felszereltsége a kád, mosdó, törölköző szárító radiátor, mosógép bekötési lehetőség kialakítva és kényelmesen elfér akár egy szárítógép is. Központi szellőzés gondoskodik a pára elvezetéséről. A WC külön helyiségben van.

A fenntartási költségek igen optimálisak, a közös költség jelenleg 28620 Ft, a havonta leolvasott és elszámolt fűtés és melegvíz felmelegítés díja télen is mindössze néhány ezer Ft. Az elfogyasztott vizet és áramot mérőórák alapján kell fizetni a szolgáltatóknak.

A környék korlátozott parkolási lehetőségei miatt növeli a lakás értékét, hogy az épületben saját parkoló helyet lehet vásárolni a lifttel közvetlenül elérhető teremgarázsban vagy a belső udvarban, valamint kb. 3 m2-es tároló is vásárolható.
Teremgarázs hely ára: 8.000.000.- Ft
Felszíni beálló használati joga: 3.500.000.- Ft

Az ingatlan jogilag rendezett, tehermentes, hitellel is megvásárolható.

INGATLAN ADATAI

Ingatlan jellege
téglalakás
Belső terület
80 m²
Tájolás
kelet, délkelet
Építési állapot
újszerű
Építési mód
tégla
Szobák száma
3 szoba
Szobák elhelyezkedése
külön nyílik min. 2 szoba
Loggia
6.68 m²
Emelet
5.
Épület szintje
6.
Épült
2011
Akadálymentes
részlegesen
Lift
van
Ingatlan állapot
kívül: kitűnő
belül: kitűnő
Klíma
van
Szigetelés
10 cm
Ablak szerkezete
3 rétegű thermoplan
Fűtés
központi egyedi méréssel
Komfort
összkomfort
Parkolás
van, nem meghatározott
Kilátás
kertre
Energetika
A 2024:
TÉRKÉP

Budapest, XIV. kerület, Kiszugló

KAPCSOLAT
Kislakás Zuglóban
Kislakás Zuglóban


+36 30 821 4608

zlakasok@gmail.com

KAPCSOLAT
Kislakás Zuglóban

+36 30 821

zlakasok@

Az időpont kérés naptár ikonja
IDŐPONTOT KÉREK
A visszahívás kérés telefon ikonja egy azt körbe ölelő nyíllal
VISSZAHÍVÁST KÉREK
Ajánlom egy ismerősömnek ikon
AJÁNLOM EGY ISMERŐSÖMNEK
Facebook megosztás ikon
MEGOSZTÁS

KAPCSOLATFELVÉTEL

Küldés

Az üzenetet sikeresen elküldtük!
Hiba történt!
INGATLAN ADATAI

Ingatlan jellege

téglalakás

Belső terület

80 m²

Tájolás

kelet, délkelet

Építési állapot

újszerű

Építési mód

tégla

Szobák száma

3 szoba

Szobák elhelyezkedése

külön nyílik min. 2 szoba

Loggia

6.68 m²

Emelet

5.

Épület szintje

6.

Épült

2011

Lift

van

Ingatlan állapot

kívül: kitűnő
belül: kitűnő

Klíma

van

Szigetelés

10 cm

Ablak szerkezete

3 rétegű thermoplan

Fűtés

központi egyedi méréssel

Komfort

összkomfort

Parkolás

van, nem meghatározott

Kilátás

kertre

Energetika

A 2024:

Az időpont kérés naptár ikonja
HTML
Az időpont kérés naptár ikonja
PDF
Budapest, XIV. kerület - Kiszugló
Budapest, XIV. kerület - Kiszugló
Budapest, XIV. kerület - Kiszugló
Budapest, XIV. kerület - Kiszugló
Budapest, XIV. kerület - Kiszugló
Budapest, XIV. kerület - Kiszugló
Budapest, XIV. kerület - Kiszugló
Budapest, XIV. kerület - Kiszugló
Budapest, XIV. kerület - Kiszugló
Budapest, XIV. kerület - Kiszugló
Budapest, XIV. kerület - Kiszugló
Budapest, XIV. kerület - Kiszugló
Budapest, XIV. kerület - Kiszugló
Budapest, XIV. kerület - Kiszugló
Budapest, XIV. kerület - Kiszugló
Budapest, XIV. kerület - Kiszugló
Budapest, XIV. kerület - Kiszugló
Budapest, XIV. kerület - Kiszugló
Budapest, XIV. kerület - Kiszugló
Budapest, XIV. kerület - Kiszugló
Budapest, XIV. kerület - Kiszugló
Budapest, XIV. kerület - Kiszugló