KAPCSOLATFELVÉTEL
Ingatlan jellege
téglalakás
Belső terület
0 m²
Tájolás
délnyugat
Építési állapot
újszerű
Építési mód
tégla
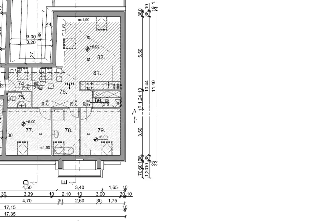
Szobák száma
3 szoba
Szobák elhelyezkedése
külön nyílik min. 2 szoba
Emelet
2.
Az ingatlan a legfelső szinten van.
Épület szintje
2.
Épült
2008
Lift
nincs
Ingatlan állapot
kívül: kitűnő
belül: kitűnő
Fűtés
cirko
Komfort
komfort
Energetika
nincs megadva
Győr-Moson-Sopron megye, Győr, Szabadhegy
Irányár
Szobák
Emelet
Az árban benne van a 30 cm födém és tető szigetelés és a gipszkartonozás is, jelenleg nincs elkészítve, hogy az esetleges vevői igények szerint könnyen módosítható legyen.
Szerkezet:
– Falak: Leier 30 N+F tégla, Válaszfalak Leier 10 N+F tégla, lakások között hanggátló fal
– 15 cm homlokzati hőszigetelés,
– Födém 6 cm-es AUSTROTHERM lépésálló hőszigetelésre 6 cm vasalt fűtőbeton kerül
– Hőszigetelés: A tetőszerkezetbe 30 cm vastag hőszigetelés készül párafékező hőtükrös fóliával
– cserépfedés a tetőn
– velux nyílászárók külső hővédő roló belső fényzáró roló
– A fűtés kondenzációs gázkazán padlófűtés, fürdőben törölközőszárítós radiátor is
– átfolyós gázkazán meleg vízre.
A gardrób helyiségben van a kazán és a mosógép szárítógép kiállás is.
Gépkocsi beálló ezen árban nem szerepel.
Hívjon, tekintse meg, tegyen ajánlatot!
Irodánk teljeskörű szakmai tanácsadással, ingyenes hitelügyintézéssel, profi ügyvédi háttérrel rendelkezik.
Kérdése van? Szeretné megtekinteni az ingatlant? Keressen elérhetőségeim bármelyikén, akár hétvégén is!
Kun Réka Lilla
Komplex Ingatlaniroda
belül: kitűnő
Győr-Moson-Sopron megye, Győr, Szabadhegy

+36 30 115 1277
kun.rekalilla@komplexingatlan.com
KAPCSOLATFELVÉTEL
Ingatlan jellege
téglalakás
Belső terület
0 m²
Tájolás
délnyugat
Építési állapot
újszerű
Építési mód
tégla
Szobák száma
3 szoba
Szobák elhelyezkedése
külön nyílik min. 2 szoba
Emelet
2.
Az ingatlan a legfelső szinten van.
Épület szintje
2.
Épült
2008
Lift
nincs
Ingatlan állapot
kívül: kitűnő
belül: kitűnő
Fűtés
cirko
Komfort
komfort
Energetika
nincs megadva