KAPCSOLAT
IDŐPONTOT KÉREK
VISSZAHÍVÁST KÉREK
AJÁNLOM EGY ISMERŐSÖMNEK
MEGOSZTÁS
KAPCSOLATFELVÉTEL
Az üzenetet sikeresen elküldtük!
Hiba történt!
INGATLAN ADATAI
Ingatlan jellege
téglalakás
Belső terület
73 m²
Építési állapot
használt
Építési mód
- nem meghatározott -
Szobák száma
2+2 félszoba
Emelet
földszint.
Épület szintje
1.
Ingatlan állapot
kívül: jó
belül: jó
Fűtés
cirko
Komfort
összkomfort
Kilátás
udvarra
HTML
PDF
Eladó téglalakás
Belső azonosító:
384767
Ingatlan azonosító:
34503_gimp
Pest megye, Isaszeg
Irányár
64.99 M Ft
(890.27 E Ft/㎡)
(890.27 E Ft/㎡)
Szobák
2+2 félszoba
Emelet
földszint
Terület
73 m²
Telek terület
433 m²
INGATLAN LEÍRÁSA
CSAK NÁLUNK!
IDE CSAK KÖLTÖZNI KELL!
Isaszeg, Városközpontjának kertvárosi részén, eladó egy felújított nettó 73,24 m² fűtött, bruttó 78,24 m² alapterületű 2+2 szobás, GARÁZSOS, ALÁPINCÉCETT családiház földszinti lakása.
A bruttó méret a terasz 50%-át tartalmazza!
A teljes bruttó méret a terasszal 83,24 m².
A ház belső kétszintes. Az előtér közös használatú.
Az épület 433 m² közös udvaron helyezkedik el.
A lakáshoz tartozik egy lekerített privát, oldal és hátsó udvari kertrész.
Az udvar nagy, közös része murvával van felszórva, ami a gépjárművel való bejárást és a parkolást könnyebbé teszi.
Mindkét lakáshoz egy 25 m² garázs és szintén 25 m² pincerész tartozik.
Az eladásra kínált lakás, ideális választás lehet akár nagyobb családok számára is.
A fűtésről gáz kondenzációs kazán gondoskodik radiátoros hőleadással, mely a ház minden helyiségében biztosítja a kellemes hőmérsékletet. Melegvizet is ez biztosítja. Az új készülék a pincében kapott helyet.
A 10 m²-es fedett terasz kiváló helyszín a reggeli kávézásokhoz vagy a baráti összejövetelekhez.
Az udvari kilátás nyugodt és zavartalan környezetet biztosít a mindennapokhoz.
A falazat 53 cm vastag szigeteléssel együtt. Szerkezete tégla. A szigetelés vastagsága tájékoztató jellegű!
A födém vasbeton, a ház tetejét cserép fedi.
A külső nyílászárók, két rétegű műanyag ablakok, redőny és szúnyogháló védelemmel.
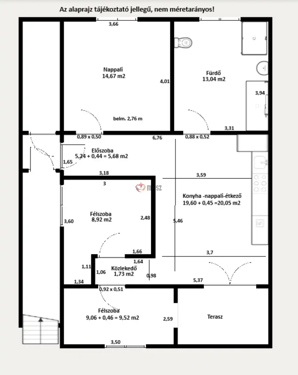
Helységlista:
- belépő – előtér,
- előszoba- közlekedő,
- udvari szoba,
- konyha- étkező – nappali,
- félszoba 1,
- félszoba 2,
- fürdőszoba + WC,
- pince,
- garázs,
A ház 2009-ben lett felújítva. akkor lett a tető is javítva. A lakás 2021-2022-ben újult meg.
A gépesített konyhabútor, az étkező asztal a székekkel, az ülőgarnitúra, a gardróbszekrény és a fürdőszoba bútorzat a vételár részét képezik!
Ha szeretne otthonról dolgozni, vagy nagyobb lakásra vágyik, de nem mondana le a kertesház kényelméről, akkor ne habozzon, megtalálta állmai otthonát.
A központi elhelyezkedése révén, minden könnyen gyalog is elérhető!
Az ingatlan PER - TEHER - IGÉNY MENTES!
A két lakás, ügyvédi szerződéssel osztott.
JÖJJÖN el, NÉZZE meg, SZERESSEN bele!
A GDN HitelCentrum, KÖTELEZETTSÉG MENTESEN és DÍJMENTESEN, versenyezteti Önért a bankok hitelajánlatait. Ismerje meg a vissza nem térítendő állami támogatásokat!
• babaváró,
• CSOK+
• hitel,
• megtakarítás,
• és EGYÉB BANKI tranzakcióban segítségére lehetünk!
• Igény esetén, ÜGYVÉDI segítséget nyújtunk, MEGFIZETHETŐ áron!
Ha az ingatlannal kapcsolatban bővebb felvilágosításra lenne szüksége, hívjon bizalommal, állok rendelkezésére!
Videólink: https://youtu.be/kCVeGwI09OE
F.M.
IDE CSAK KÖLTÖZNI KELL!
Isaszeg, Városközpontjának kertvárosi részén, eladó egy felújított nettó 73,24 m² fűtött, bruttó 78,24 m² alapterületű 2+2 szobás, GARÁZSOS, ALÁPINCÉCETT családiház földszinti lakása.
A bruttó méret a terasz 50%-át tartalmazza!
A teljes bruttó méret a terasszal 83,24 m².
A ház belső kétszintes. Az előtér közös használatú.
Az épület 433 m² közös udvaron helyezkedik el.
A lakáshoz tartozik egy lekerített privát, oldal és hátsó udvari kertrész.
Az udvar nagy, közös része murvával van felszórva, ami a gépjárművel való bejárást és a parkolást könnyebbé teszi.
Mindkét lakáshoz egy 25 m² garázs és szintén 25 m² pincerész tartozik.
Az eladásra kínált lakás, ideális választás lehet akár nagyobb családok számára is.
A fűtésről gáz kondenzációs kazán gondoskodik radiátoros hőleadással, mely a ház minden helyiségében biztosítja a kellemes hőmérsékletet. Melegvizet is ez biztosítja. Az új készülék a pincében kapott helyet.
A 10 m²-es fedett terasz kiváló helyszín a reggeli kávézásokhoz vagy a baráti összejövetelekhez.
Az udvari kilátás nyugodt és zavartalan környezetet biztosít a mindennapokhoz.
A falazat 53 cm vastag szigeteléssel együtt. Szerkezete tégla. A szigetelés vastagsága tájékoztató jellegű!
A födém vasbeton, a ház tetejét cserép fedi.
A külső nyílászárók, két rétegű műanyag ablakok, redőny és szúnyogháló védelemmel.
Helységlista:
- belépő – előtér,
- előszoba- közlekedő,
- udvari szoba,
- konyha- étkező – nappali,
- félszoba 1,
- félszoba 2,
- fürdőszoba + WC,
- pince,
- garázs,
A ház 2009-ben lett felújítva. akkor lett a tető is javítva. A lakás 2021-2022-ben újult meg.
A gépesített konyhabútor, az étkező asztal a székekkel, az ülőgarnitúra, a gardróbszekrény és a fürdőszoba bútorzat a vételár részét képezik!
Ha szeretne otthonról dolgozni, vagy nagyobb lakásra vágyik, de nem mondana le a kertesház kényelméről, akkor ne habozzon, megtalálta állmai otthonát.
A központi elhelyezkedése révén, minden könnyen gyalog is elérhető!
Az ingatlan PER - TEHER - IGÉNY MENTES!
A két lakás, ügyvédi szerződéssel osztott.
JÖJJÖN el, NÉZZE meg, SZERESSEN bele!
A GDN HitelCentrum, KÖTELEZETTSÉG MENTESEN és DÍJMENTESEN, versenyezteti Önért a bankok hitelajánlatait. Ismerje meg a vissza nem térítendő állami támogatásokat!
• babaváró,
• CSOK+
• hitel,
• megtakarítás,
• és EGYÉB BANKI tranzakcióban segítségére lehetünk!
• Igény esetén, ÜGYVÉDI segítséget nyújtunk, MEGFIZETHETŐ áron!
Ha az ingatlannal kapcsolatban bővebb felvilágosításra lenne szüksége, hívjon bizalommal, állok rendelkezésére!
Videólink: https://youtu.be/kCVeGwI09OE
F.M.
INGATLAN ADATAI
Ingatlan jellege
téglalakás
Belső terület
73 m²
Építési állapot
használt
Építési mód
- nem meghatározott -
Szobák száma
2+2 félszoba
Emelet
földszint.
Épület szintje
1.
Ingatlan állapot
kívül: jó
belül: jó
belül: jó
Fűtés
cirko
Komfort
összkomfort
Kilátás
udvarra
Energetika
TÉRKÉP
Pest megye, Isaszeg
KAPCSOLAT

Fenyvesi Marianna
+36 20 981 3790
m.fenyvesi@gdn-ingatlan.hu
KAPCSOLAT
IDŐPONTOT KÉREK
VISSZAHÍVÁST KÉREK
AJÁNLOM EGY ISMERŐSÖMNEK
MEGOSZTÁS
KAPCSOLATFELVÉTEL
Az üzenetet sikeresen elküldtük!
Hiba történt!
INGATLAN ADATAI
Ingatlan jellege
téglalakás
Belső terület
73 m²
Építési állapot
használt
Építési mód
- nem meghatározott -
Szobák száma
2+2 félszoba
Emelet
földszint.
Épület szintje
1.
Lift
nincs megadva
Ingatlan állapot
kívül: jó
belül: jó
Fűtés
cirko
Komfort
összkomfort
Kilátás
udvarra
Energetika
HTML
PDF