KAPCSOLAT
					
							
												
								IDŐPONTOT KÉREK
							
							
								VISSZAHÍVÁST KÉREK
							
							
								AJÁNLOM EGY ISMERŐSÖMNEK
							
							
								MEGOSZTÁS
							
							
							KAPCSOLATFELVÉTEL
Az üzenetet sikeresen elküldtük!
								Hiba történt!
								INGATLAN ADATAI
							Ingatlan jellege
téglalakás
Belső terület
76 m²
Építési állapot
használt
Építési mód
- nem meghatározott -
Szobák száma
3+1 félszoba
Emelet
1.
Épület szintje
1.
Ingatlan állapot
 
										kívül: jó
belül: jó									
Fűtés
cirko
Komfort
összkomfort
Kilátás
utcára
HTML
							
												
								PDF
							
						Eladó téglalakás
									
								Belső azonosító:
								356110
							Ingatlan azonosító:
								35274_gimp
							Pest megye, Kistarcsa, Kórház
Irányár
						76 M Ft									
(1 M Ft/㎡)
							(1 M Ft/㎡)
Szobák
3+1 félszoba
							Emelet
1
							Terület
76 m²
							Telek terület
350 m²
							INGATLAN LEÍRÁSA
						
									
							Kistarcsán, ELADÓ egy 76nm-es emeleti tégla lakás hozzá tartozó 300nm-es kerttel, garázzsal, 26nm-es tárolóval + egy 35nm-es szuterénnel/üzlethelyiséggel!
CSOK+-ra alkalmas és HITELEZHETŐ
Az ingatlan,központi forgalmas helyen található. Kiadásra alkalmas mind a lakás mind a szuterén/üzlethelyiség része, mely korábban kisállat kereskedésként és bababoltként is üzemelt.
-Telek mérete: 350nm
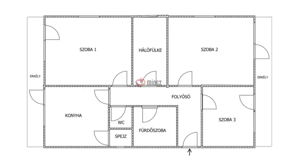
-4 szoba
-konyha
-spejz
-folyosó
- 2 erkély
-fürdő
-külön WC
--------------------------------------------
Fűtés: gázkazán és kombi cirkó
Áram: IPARI áram !! (3x16A és 3x25A) az üzlethelyiségben és a gazdasági épületben is!
Alacsony rezsi: kb. 30.000-Ft /hó
Az ingatlan per-és tehermentes. A vételár részét képezi a konyha, a fürdőszoba, a hálófülke beépített valamint a nappali teljes bútorzata. Ügyvédi megosztás van.
Közlekedés kiváló: HÉV, 92-es busz, távolsági buszjáratok
Irányár: 76.000.000- Ft
Várom hívását!
						
								CSOK+-ra alkalmas és HITELEZHETŐ
Az ingatlan,központi forgalmas helyen található. Kiadásra alkalmas mind a lakás mind a szuterén/üzlethelyiség része, mely korábban kisállat kereskedésként és bababoltként is üzemelt.
-Telek mérete: 350nm
-4 szoba
-konyha
-spejz
-folyosó
- 2 erkély
-fürdő
-külön WC
--------------------------------------------
Fűtés: gázkazán és kombi cirkó
Áram: IPARI áram !! (3x16A és 3x25A) az üzlethelyiségben és a gazdasági épületben is!
Alacsony rezsi: kb. 30.000-Ft /hó
Az ingatlan per-és tehermentes. A vételár részét képezi a konyha, a fürdőszoba, a hálófülke beépített valamint a nappali teljes bútorzata. Ügyvédi megosztás van.
Közlekedés kiváló: HÉV, 92-es busz, távolsági buszjáratok
Irányár: 76.000.000- Ft
Várom hívását!
INGATLAN ADATAI
						Ingatlan jellege
							téglalakás
						Belső terület
							76 m²
						Építési állapot
							használt
						Építési mód
							- nem meghatározott -
						Szobák száma
							3+1 félszoba
						Emelet
							1.
										Épület szintje
							1.
						Ingatlan állapot
							 
								kívül: jó
belül: jó
						belül: jó
Fűtés
							cirko
						Komfort
							összkomfort
						Kilátás
							utcára
						Energetika
							
						TÉRKÉP
						Pest megye, Kistarcsa, Kórház
KAPCSOLAT
						 
							Béres Tünde
							+36 20 402 6896
t.beres@gdn-ingatlan.hu
KAPCSOLAT
						
						
							IDŐPONTOT KÉREK
						
						
							VISSZAHÍVÁST KÉREK
						
						
							AJÁNLOM EGY ISMERŐSÖMNEK
						
						
							MEGOSZTÁS
						
						
						KAPCSOLATFELVÉTEL
Az üzenetet sikeresen elküldtük!
							Hiba történt!
							INGATLAN ADATAI
						Ingatlan jellege
téglalakás
Belső terület
76 m²
Építési állapot
használt
Építési mód
- nem meghatározott -
Szobák száma
3+1 félszoba
Emelet
1.
Épület szintje
1.
Lift
nincs megadva
Ingatlan állapot
 
									kívül: jó
belül: jó								
Fűtés
cirko
Komfort
összkomfort
Kilátás
utcára
Energetika
HTML
							
												
								PDF
							
						 
								 
											 
																 
																 
																 
																 
																 
																 
																 
																 
																 
																 
																 
																 
																 
																 
						
					 
						
					 
						
					 
						
					 
						
					 
						
					 
						
					 
						
					 
						
					 
						
					 
						
					 
						
					 
						
					 
						
					