KAPCSOLAT
IDŐPONTOT KÉREK
VISSZAHÍVÁST KÉREK
AJÁNLOM EGY ISMERŐSÖMNEK
MEGOSZTÁS
KAPCSOLATFELVÉTEL
Az üzenetet sikeresen elküldtük!
Hiba történt!
INGATLAN ADATAI
Ingatlan jellege
téglalakás
Belső terület
130 m²
Építési állapot
használt
Építési mód
- nem meghatározott -
Szobák száma
3+1 félszoba
Emelet
2.
Ingatlan állapot
kívül: jó
belül: jó
Fűtés
távfűtés
Komfort
komfort
Kilátás
utcára
HTML
PDF
Eladó téglalakás
Belső azonosító:
9489
Ingatlan azonosító:
4789_dotimp
Komárom-Esztergom megye, Komárom
Irányár
69.9 M Ft
(537.69 E Ft/㎡)
(537.69 E Ft/㎡)
Szobák
3+1 félszoba
Emelet
2
Terület
130 m²
INGATLAN LEÍRÁSA
NE MARADJON LE RÓLA!!! ELADÓ, TELJESKÖRŰEN FELÚJÍTOTT 130 NM-ES LAKÁS!
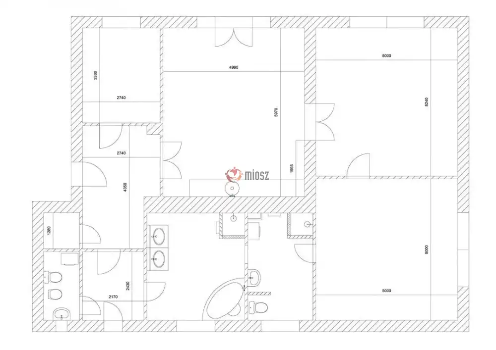
Eladó 130 nm-es három és fél szobás nagypolgári, napfényes téglalakás, Komárom-Szőny csendes, nyugodt, parkokkal teli részén. A lakást 2016-ban teljes körűen felújították mely során, műanyag nyílászárók beszerelése, víz - villanyvezetékek teljes cseréje, új radiátorok beszerelése, új padló- és falburkolatok valamint álmennyezet került kialakításra, kizárólag a gyönyörű állapotban lévő parketta maradt meg eredeti állapotában. 2023-ban hűtő-fűtő klíma került beszerelésre.
Az egyik nagyméretű (29,8 nm) szobában kapott helyet az amerikai konyhás nappali, konyhaszigettel.
A további szobák (26,2 nm és 25 nm) méretükből fakadóan alkalmasak arra, hogy kisebb átalakítás során akár félszobákra legyenek felosztva.
Első fürdőszobában: sarokkád + zuhanyzó + dupla mosdó 12,87 nm-en
Második fürdőszobában: zuhany, mosógép kiállás, mosdó, WC 8,76 nm-en
Egy plusz mellékhelyiség: mosdó, WC + bidé, mosógép kiállás 3,1 nm-en
További helyiségek:
Előszoba 9,20 nm
Közlekedő 5,27 nm
Kisszoba 9,20 nm
Kamra 1,63 nm
Erkély 2,00 nm
A beépített konyha a vételár részét képezi.
Fűtés: egyedi mérős távfűtés.
A lakáson belüli akadálymentesség biztosított.
Ingatlanhoz tartozik még egy saját használatú 8 nm-es, világos tároló.
Csendes, biztonságos és rendezett környezetben, néhány perc sétára található a gyönyörű Duna part, sportpálya, játszótér, kisbolt, buszmegálló, orvosi rendelő 1 percre. Komárom belvárosa autóval kb. 10 perc, ipari parkok 15-20 percre.
A lakóövezetben nincs átmenő forgalom, kizárólag az ott lakók autós forgalmával kell számolni!
A leendő tulajdonos számára ez a lakás nemcsak gyönyörű, tágas otthon lehet, de remek befektetési lehetőség is, egyedi mérete és kialakítása kiváló választás irodának, orvosi rendelőnek is egyaránt.
Ingyenes hitelügyintézéssel több bank ajánlatából, állami támogatásokról naprakész információkkal és teljes körű lebonyolítással, jogi háttérrel biztosítja irodánk a vásárlást.
Amennyiben ritka elrendezésű, felújított lakást keres, hívjon bizalommal és tekintsük meg együtt!
Farkas Judit
+36 30 101 4930
Eladó 130 nm-es három és fél szobás nagypolgári, napfényes téglalakás, Komárom-Szőny csendes, nyugodt, parkokkal teli részén. A lakást 2016-ban teljes körűen felújították mely során, műanyag nyílászárók beszerelése, víz - villanyvezetékek teljes cseréje, új radiátorok beszerelése, új padló- és falburkolatok valamint álmennyezet került kialakításra, kizárólag a gyönyörű állapotban lévő parketta maradt meg eredeti állapotában. 2023-ban hűtő-fűtő klíma került beszerelésre.
Az egyik nagyméretű (29,8 nm) szobában kapott helyet az amerikai konyhás nappali, konyhaszigettel.
A további szobák (26,2 nm és 25 nm) méretükből fakadóan alkalmasak arra, hogy kisebb átalakítás során akár félszobákra legyenek felosztva.
Első fürdőszobában: sarokkád + zuhanyzó + dupla mosdó 12,87 nm-en
Második fürdőszobában: zuhany, mosógép kiállás, mosdó, WC 8,76 nm-en
Egy plusz mellékhelyiség: mosdó, WC + bidé, mosógép kiállás 3,1 nm-en
További helyiségek:
Előszoba 9,20 nm
Közlekedő 5,27 nm
Kisszoba 9,20 nm
Kamra 1,63 nm
Erkély 2,00 nm
A beépített konyha a vételár részét képezi.
Fűtés: egyedi mérős távfűtés.
A lakáson belüli akadálymentesség biztosított.
Ingatlanhoz tartozik még egy saját használatú 8 nm-es, világos tároló.
Csendes, biztonságos és rendezett környezetben, néhány perc sétára található a gyönyörű Duna part, sportpálya, játszótér, kisbolt, buszmegálló, orvosi rendelő 1 percre. Komárom belvárosa autóval kb. 10 perc, ipari parkok 15-20 percre.
A lakóövezetben nincs átmenő forgalom, kizárólag az ott lakók autós forgalmával kell számolni!
A leendő tulajdonos számára ez a lakás nemcsak gyönyörű, tágas otthon lehet, de remek befektetési lehetőség is, egyedi mérete és kialakítása kiváló választás irodának, orvosi rendelőnek is egyaránt.
Ingyenes hitelügyintézéssel több bank ajánlatából, állami támogatásokról naprakész információkkal és teljes körű lebonyolítással, jogi háttérrel biztosítja irodánk a vásárlást.
Amennyiben ritka elrendezésű, felújított lakást keres, hívjon bizalommal és tekintsük meg együtt!
Farkas Judit
+36 30 101 4930
INGATLAN ADATAI
Ingatlan jellege
téglalakás
Belső terület
130 m²
Építési állapot
használt
Építési mód
- nem meghatározott -
Szobák száma
3+1 félszoba
Emelet
2.
Ingatlan állapot
kívül: jó
belül: jó
belül: jó
Fűtés
távfűtés
Komfort
komfort
Kilátás
utcára
Energetika
TÉRKÉP
Komárom-Esztergom megye, Komárom
KAPCSOLAT

Farkas Judit
+36 30 101 4930
farkas.judit@dot-ing.hu
KAPCSOLAT
IDŐPONTOT KÉREK
VISSZAHÍVÁST KÉREK
AJÁNLOM EGY ISMERŐSÖMNEK
MEGOSZTÁS
KAPCSOLATFELVÉTEL
Az üzenetet sikeresen elküldtük!
Hiba történt!
INGATLAN ADATAI
Ingatlan jellege
téglalakás
Belső terület
130 m²
Építési állapot
használt
Építési mód
- nem meghatározott -
Szobák száma
3+1 félszoba
Emelet
2.
Lift
nincs megadva
Ingatlan állapot
kívül: jó
belül: jó
Fűtés
távfűtés
Komfort
komfort
Kilátás
utcára
Energetika
HTML
PDF