KAPCSOLAT
IDŐPONTOT KÉREK
VISSZAHÍVÁST KÉREK
AJÁNLOM EGY ISMERŐSÖMNEK
MEGOSZTÁS
KAPCSOLATFELVÉTEL
Az üzenetet sikeresen elküldtük!
Hiba történt!
INGATLAN ADATAI
Ingatlan jellege
téglalakás
Belső terület
92 m²
Építési állapot
használt
Építési mód
- nem meghatározott -
Szobák száma
3 szoba
Emelet
1.
Ingatlan állapot
kívül: jó
belül: jó
Fűtés
gázkazán
Komfort
komfort
Kilátás
utcára
HTML
PDF
Eladó téglalakás
Belső azonosító:
123801
Ingatlan azonosító:
1699_gaimp
Borsod-Abaúj-Zemplén megye, Miskolc, Belváros
Irányár
41.9 M Ft
(455.43 E Ft/㎡)
(455.43 E Ft/㎡)
Szobák
3 szoba
Emelet
1
Terület
92 m²
INGATLAN LEÍRÁSA
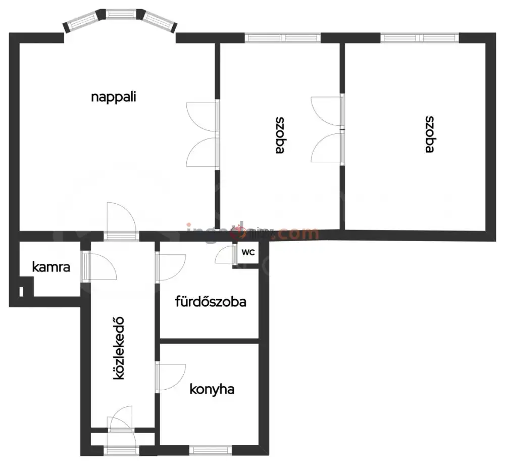
Miskolc patinás Belvárosában, a Soltész Nagy Kálmán utcában kínálunk eladásra egy nagypolgári hangulatú, 92 nm-es lakást.
Az ingatlan egy 3 szintes lakótömbben helyezkedik el, melynek építészeti jellege a régi korok eleganciáját idézi.A téglaépítésű, szerkezetileg stabil lakás a polgári otthonok jellegzetességeit hordozza: nagy belmagasságú terei légies és kellemes atmoszférát teremtenek.
Helyiségek:
• 3 külön bejáratú szoba
• Konyha és tágas étkező
• Fürdőszoba
• Különálló WC
• Előszoba
• Nagyméretű, praktikus tároló
• saját, önálló pincehelyiség (az épület alagsorában)
Az épület tömbje egy hatalmas, zárt belső udvarral rendelkezik, amely a lakók számára közösségi térként, nyugodt pihenőövezetként funkcionálhat. A tető cseréje már megtörtént, az épület maga is felújítás alatt áll, ami a közeli jövőben tovább növeli az ingatlan értékét és vonzerejét.
Leírás:
• Padlóburkolatok: A szobákban megőrzött, eredeti, jó állapotú hagyományos fa parketta található. A többi helyiség (konyha, étkező, vizesblokkok) járólappal burkoltak.
• Fűtés és Melegvíz: Korszerű Vaillant gáz kombikazán biztosítja a meleget és a melegvíz-ellátást.
• Nyílászárók: A külső nyílászárók tradicionális fa gerébtokos ablakok, melyek hatalmas méretükkel bőséges fényt biztosítanak, valamint redőnnyel védettek. A belső, eredeti fa nyílászárók karbantartott állapotban várják az új tulajdonost, tovább emelve az ingatlan stílusát.
• Energetikai Potenciál: A rezsiköltség optimalizálása érdekében a nappaliban és a középső szobában alternatív fűtés (pl. kandalló vagy cserépkályha) kialakítása is könnyedén megoldható.
Központi elhelyezkedéséből fakadóan, az ingatlan tökéletes választás:
1. Exkluzív Otthon: A belvárosi létet, a tágas polgári tereket kedvelők számára.
2. Befektetés: Kiemelt lokációja miatt magánrendelő, ügyvédi iroda, egyéb irodahelyiség, vagy akár igényes szálláshely (pl. Airbnb) kialakítására is kiválóan alkalmas.
Infrastruktúra:
Minden fontos intézmény, kereskedelmi és szolgáltató egység sétatávolságra található. PLAZA, SZINVAPARK, posta, oktatási intézmények, orvosi rendelők, gyógyszertár, tömegközlekedési csomópontok (busz és villamos), valamint a távolsági közlekedés pályaudvarai is percek alatt elérhetőek.
Parkolás: Az utcán, a járdán ingyenes parkolási lehetőség biztosított.
Ne maradjon le erről a páratlan lehetőségről! Tekintse meg személyesen!
Az ingatlan egy 3 szintes lakótömbben helyezkedik el, melynek építészeti jellege a régi korok eleganciáját idézi.A téglaépítésű, szerkezetileg stabil lakás a polgári otthonok jellegzetességeit hordozza: nagy belmagasságú terei légies és kellemes atmoszférát teremtenek.
Helyiségek:
• 3 külön bejáratú szoba
• Konyha és tágas étkező
• Fürdőszoba
• Különálló WC
• Előszoba
• Nagyméretű, praktikus tároló
• saját, önálló pincehelyiség (az épület alagsorában)
Az épület tömbje egy hatalmas, zárt belső udvarral rendelkezik, amely a lakók számára közösségi térként, nyugodt pihenőövezetként funkcionálhat. A tető cseréje már megtörtént, az épület maga is felújítás alatt áll, ami a közeli jövőben tovább növeli az ingatlan értékét és vonzerejét.
Leírás:
• Padlóburkolatok: A szobákban megőrzött, eredeti, jó állapotú hagyományos fa parketta található. A többi helyiség (konyha, étkező, vizesblokkok) járólappal burkoltak.
• Fűtés és Melegvíz: Korszerű Vaillant gáz kombikazán biztosítja a meleget és a melegvíz-ellátást.
• Nyílászárók: A külső nyílászárók tradicionális fa gerébtokos ablakok, melyek hatalmas méretükkel bőséges fényt biztosítanak, valamint redőnnyel védettek. A belső, eredeti fa nyílászárók karbantartott állapotban várják az új tulajdonost, tovább emelve az ingatlan stílusát.
• Energetikai Potenciál: A rezsiköltség optimalizálása érdekében a nappaliban és a középső szobában alternatív fűtés (pl. kandalló vagy cserépkályha) kialakítása is könnyedén megoldható.
Központi elhelyezkedéséből fakadóan, az ingatlan tökéletes választás:
1. Exkluzív Otthon: A belvárosi létet, a tágas polgári tereket kedvelők számára.
2. Befektetés: Kiemelt lokációja miatt magánrendelő, ügyvédi iroda, egyéb irodahelyiség, vagy akár igényes szálláshely (pl. Airbnb) kialakítására is kiválóan alkalmas.
Infrastruktúra:
Minden fontos intézmény, kereskedelmi és szolgáltató egység sétatávolságra található. PLAZA, SZINVAPARK, posta, oktatási intézmények, orvosi rendelők, gyógyszertár, tömegközlekedési csomópontok (busz és villamos), valamint a távolsági közlekedés pályaudvarai is percek alatt elérhetőek.
Parkolás: Az utcán, a járdán ingyenes parkolási lehetőség biztosított.
Ne maradjon le erről a páratlan lehetőségről! Tekintse meg személyesen!
INGATLAN ADATAI
Ingatlan jellege
téglalakás
Belső terület
92 m²
Építési állapot
használt
Építési mód
- nem meghatározott -
Szobák száma
3 szoba
Emelet
1.
Ingatlan állapot
kívül: jó
belül: jó
belül: jó
Fűtés
gázkazán
Komfort
komfort
Kilátás
utcára
Energetika
TÉRKÉP
Borsod-Abaúj-Zemplén megye, Miskolc, Belváros
KAPCSOLAT
Hausel László
+36204552205
gammaingatlan@gmail.com
KAPCSOLAT
IDŐPONTOT KÉREK
VISSZAHÍVÁST KÉREK
AJÁNLOM EGY ISMERŐSÖMNEK
MEGOSZTÁS
KAPCSOLATFELVÉTEL
Az üzenetet sikeresen elküldtük!
Hiba történt!
INGATLAN ADATAI
Ingatlan jellege
téglalakás
Belső terület
92 m²
Építési állapot
használt
Építési mód
- nem meghatározott -
Szobák száma
3 szoba
Emelet
1.
Lift
nincs megadva
Ingatlan állapot
kívül: jó
belül: jó
Fűtés
gázkazán
Komfort
komfort
Kilátás
utcára
Energetika
HTML
PDF