KAPCSOLAT
IDŐPONTOT KÉREK
VISSZAHÍVÁST KÉREK
AJÁNLOM EGY ISMERŐSÖMNEK
MEGOSZTÁS
KAPCSOLATFELVÉTEL
Az üzenetet sikeresen elküldtük!
Hiba történt!
INGATLAN ADATAI
Ingatlan jellege
téglalakás
Belső terület
56 m²
Építési állapot
használt
Építési mód
- nem meghatározott -
Szobák száma
2 szoba
Emelet
2.
Ingatlan állapot
kívül: jó
belül: jó
Fűtés
központi egyedi méréssel
Komfort
komfort
Kilátás
utcára
HTML
PDF
Eladó téglalakás
Belső azonosító:
9388
Ingatlan azonosító:
4711_dotimp
Komárom-Esztergom megye, Tatabánya
Irányár
37.99 M Ft
(678.39 E Ft/㎡)
(678.39 E Ft/㎡)
Szobák
2 szoba
Emelet
2
Terület
56 m²
INGATLAN LEÍRÁSA
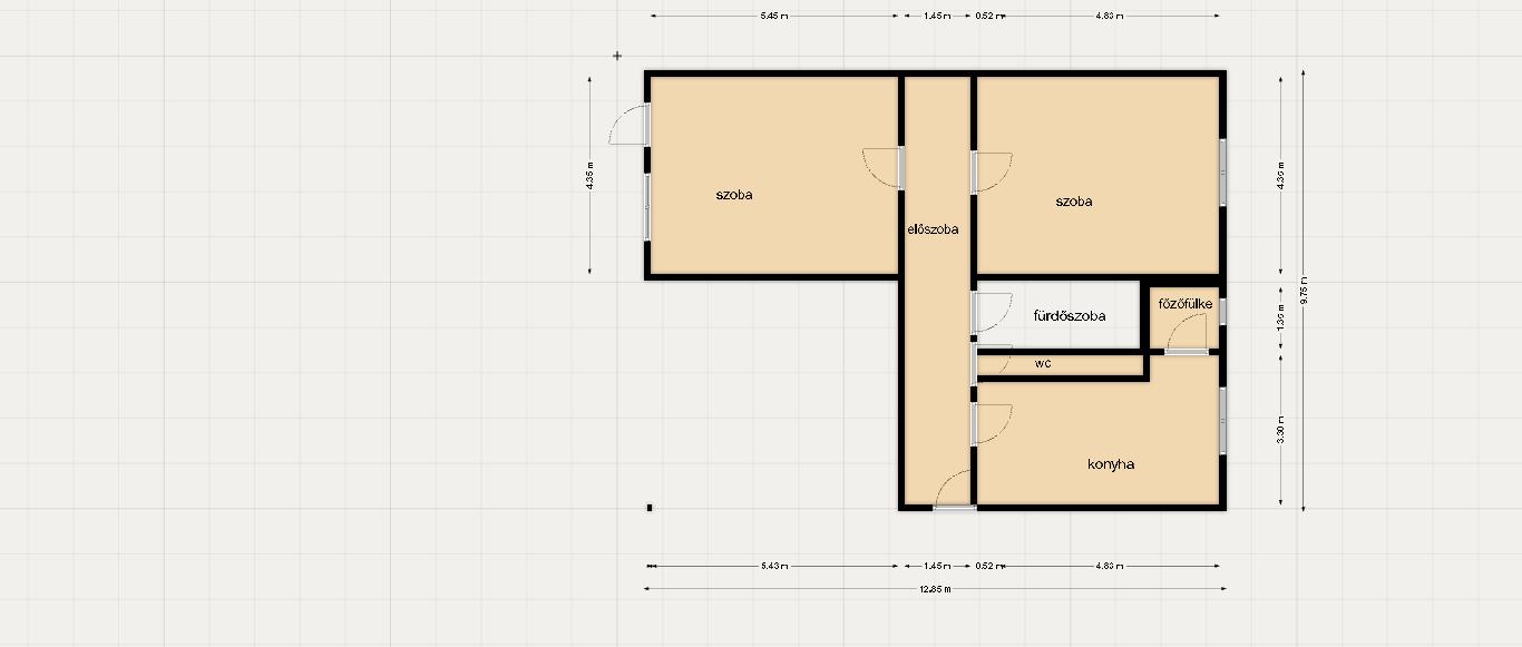
Tatabánya kedvelt részén az Ótelep utcában kínálunk eladásra egy 56 nm-es tégla lakást.
Az ingatlan egy 3 emeletes tégla épület második emeletén helyezkedik el.
Öreg fák ölelésében, parkosított környezetben található az épület.
AZ ingatlan 1960-as években épült, de tulajdonosa 2023-ban felújításokat végzett.
Az ingatlan jellemzői:
- felújított tetőszerkezet
- 2 emelet
- 2 szoba /18,6 nm..16 nm, /
- felújított konyha-főzőfülke 2 nm
- étkező 8 nm
- előtér 6,5 nm
- felújított fürdőszoba 3 nm
- felújított wc 1 nm
- szobái laminált parkettával, előtér, fürdő járólappal, étkező linóleummal borított..
- műanyag nyílászárók, redőnnyel, szúnyoghálóval
- fűtése: házközponti, egyedi mérővel
- erkély 3 nm
- kisebb szobánál kilépő 0,5 nm
- kisebb szobánál hangszigetelés
- közös tároló
- tehermentes
- közös költség: 14 500ft
Az ingatlan az Omega pláza közelében található, vasútállomás, buszmegállók, bevásárlóhelyek, gyógyszertárak pár percnyi távolságra.
Ha felkeltettem az érdeklődését hívjon bizalommal, hogy együtt megtekinthessük ezt az ingatlant..
Bonfert Angéla
0630 629 52 81
Az ingatlan egy 3 emeletes tégla épület második emeletén helyezkedik el.
Öreg fák ölelésében, parkosított környezetben található az épület.
AZ ingatlan 1960-as években épült, de tulajdonosa 2023-ban felújításokat végzett.
Az ingatlan jellemzői:
- felújított tetőszerkezet
- 2 emelet
- 2 szoba /18,6 nm..16 nm, /
- felújított konyha-főzőfülke 2 nm
- étkező 8 nm
- előtér 6,5 nm
- felújított fürdőszoba 3 nm
- felújított wc 1 nm
- szobái laminált parkettával, előtér, fürdő járólappal, étkező linóleummal borított..
- műanyag nyílászárók, redőnnyel, szúnyoghálóval
- fűtése: házközponti, egyedi mérővel
- erkély 3 nm
- kisebb szobánál kilépő 0,5 nm
- kisebb szobánál hangszigetelés
- közös tároló
- tehermentes
- közös költség: 14 500ft
Az ingatlan az Omega pláza közelében található, vasútállomás, buszmegállók, bevásárlóhelyek, gyógyszertárak pár percnyi távolságra.
Ha felkeltettem az érdeklődését hívjon bizalommal, hogy együtt megtekinthessük ezt az ingatlant..
Bonfert Angéla
0630 629 52 81
INGATLAN ADATAI
Ingatlan jellege
téglalakás
Belső terület
56 m²
Építési állapot
használt
Építési mód
- nem meghatározott -
Szobák száma
2 szoba
Emelet
2.
Ingatlan állapot
kívül: jó
belül: jó
belül: jó
Fűtés
központi egyedi méréssel
Komfort
komfort
Kilátás
utcára
Energetika
TÉRKÉP
Komárom-Esztergom megye, Tatabánya
KAPCSOLAT

Bonfert Angéla
+36 30 629 5281
bonfert.angela@dot-ing.hu
KAPCSOLAT
IDŐPONTOT KÉREK
VISSZAHÍVÁST KÉREK
AJÁNLOM EGY ISMERŐSÖMNEK
MEGOSZTÁS
KAPCSOLATFELVÉTEL
Az üzenetet sikeresen elküldtük!
Hiba történt!
INGATLAN ADATAI
Ingatlan jellege
téglalakás
Belső terület
56 m²
Építési állapot
használt
Építési mód
- nem meghatározott -
Szobák száma
2 szoba
Emelet
2.
Lift
nincs megadva
Ingatlan állapot
kívül: jó
belül: jó
Fűtés
központi egyedi méréssel
Komfort
komfort
Kilátás
utcára
Energetika
HTML
PDF