KAPCSOLATFELVÉTEL
Ingatlan jellege
családi ház
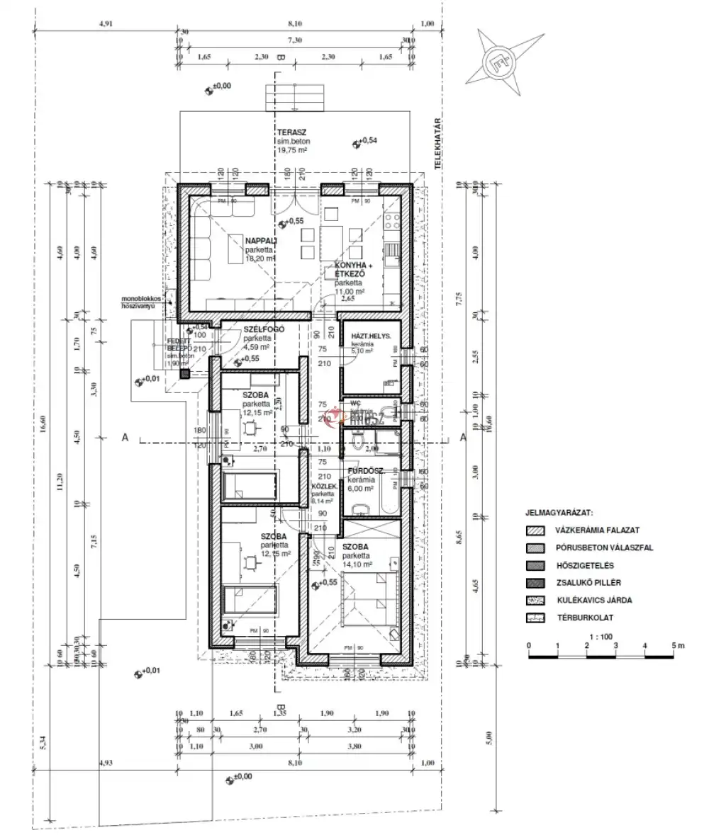
Belső terület
93 m²
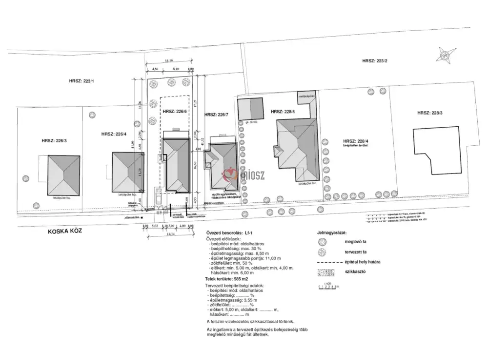
Telek terület
585 m²
Építési állapot
új
Építési mód
- nem meghatározott -
Szobák száma
4 szoba
Ingatlan állapot
kívül: jó
belül: jó
Fűtés
egyéb
Komfort
összkomfort
Közműállapot
csatorna: bekötve
gáz: utcában
villany: bekötve
víz: bekötve
Pest megye, Dány
Irányár
(644.09 E Ft/㎡)
Szobák
Emelet
Terület
Telek terület
Egymás mellett 624 m2 (elkelt) és 585 m2-es telken két azonos ingatlant kínálunk.
Az építés megkezdődött, a beton alap elkészült.
Az ingatlan 30-as Nútféderes tégla falazóelemből épül, fa födémmel.
A tető héjazata antracit betoncserép lesz, a homlokzatok 12cm Austrotherm Grafitos EPS, a padló 10cm Austrotherm AT-N100-as, a vízszintes födém 25cm Ásványgyapot szigeteléssel lesz ellátva.
Hat légkamrás 3 rétegű evegekkel szerelt nyílászárók kerülnek beépítésre.
A fűtést és a melegvíz ellátást hőszivattyús rendszer fogja ellátni, padlófűtéssel.
A műszaki tartalom választható az alábbi költségkereten belül:
-hidegburkolat:5000.- Ft./m2-ig.
-melegburkolat:4000.- Ft./m2-ig
-csaptelepek:15.000.- Ft./db
-kád vagy zuhany: 40.000.- Ft.
-beltéri ajtók:35.000.- Ft./db
-Wc Falsík mögötti rendszer
Elektromos kiépítés:
-Konnektorok szobákban: 3 db
-Konnektorok nappaliban 4db + internet és kábeltv kiállás
-Konnektorok konyhában: 6db
-Világítás helyiségenként 1-1 db
-Kábeltévé: Előkészítés
Magasabb árú tatalom is választható a különbség finanszírozásával.
Riasztó előkészítés és kapu mozgató elektronika előkészítés is készül.
Kérésre szívesen küldünk komplett tervdokumentációt, műszaki leírást.
A kivitelező korábban Dányban épített, általunk értékesített és birtokbaadott ingatlanjait komoly érdeklődés esetén szívesen megmutatjuk referenciaként.
Központi elhelyezkedésének köszönhetően a közelben megtalálhatóak:
-Játszótér 150m
-Pékség 260m
-Helyi és távolsági busz megállója 260m
-Coop ABC 280m
-Általános iskola 300m
-Posta 350m
-Gyógyszertár 550m
-Háziorvosi rendelő 750m
-Óvoda 800m
Várható átadás 2026 első negyedév.
INGYENES hitel tanácsadás, CSOK Plusz ügyintézés!
BANKFÜGGETLEN hitelcentrumunk az összes elérhető bank és hitelintézet ajánlatát versenyezteti az Ön kedvéért, ráadásul DÍJMENTESEN.
- Egyedi, bankfiókban nem elérhető kamat- és díjkedvezmények
- Hitelképesség vizsgálat
- Idő, energia és pénz megtakarítás
- Teljes hivatali ügyintézés
Amennyiben hirdetésem felkeltette az érdeklődését vagy egyéb információra van szüksége hívjon bizalommal!
belül: jó
gáz: utcában
villany: bekötve
víz: bekötve
Pest megye, Dány

+36 70 606 2990
p.horvath@gdn-ingatlan.hu
KAPCSOLATFELVÉTEL
Ingatlan jellege
családi ház
Belső terület
93 m²
Telek terület
585 m²
Építési állapot
új
Építési mód
- nem meghatározott -
Szobák száma
4 szoba
Ingatlan állapot
kívül: jó
belül: jó
Fűtés
egyéb
Komfort
összkomfort
Közműállapot
csatorna: bekötve
gáz: utcában
villany: bekötve
víz: bekötve
Energetika