KAPCSOLATFELVÉTEL
Ingatlan jellege
családi ház
Belső terület
124 m²
Telek terület
524 m²
Építési állapot
új
Építési mód
- nem meghatározott -
Szobák száma
3 szoba
Ingatlan állapot
kívül: jó
belül: jó
Fűtés
egyéb
Komfort
összkomfort
Közműállapot
csatorna: bekötve
gáz: utcában
villany: bekötve
víz: bekötve
Hajdú-Bihar megye, Hajdúböszörmény
Irányár
(795 E Ft/㎡)
Szobák
Emelet
Terület
Telek terület
Eladó Hajdúböszörmény Koppány utcán 2025-ben épülő új amerikai stílusú A+ besorolású 3 szobás amerikai konyhás kertes családi ház.
Kulcsra kész ára: 98.580.000 Ft.
(795.000 Ft/nm)
Tel.: +36707891998
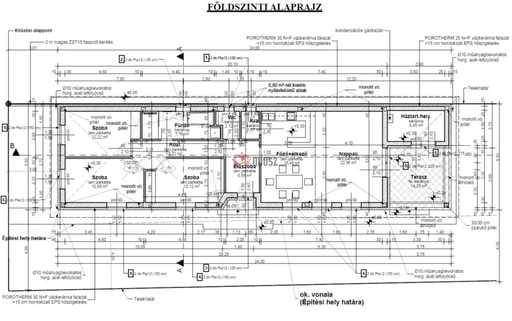
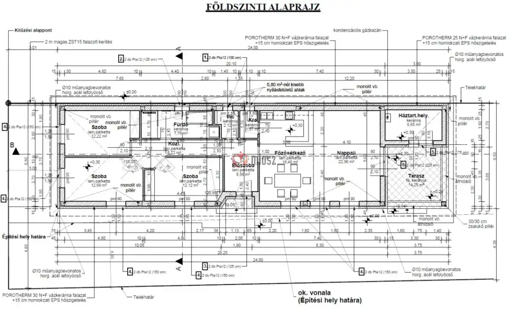
Az ingatlan alap méretei:
- a telek mérete: 524nm,
- a ház alapterülete: 156nm.
Az épület hasznos alapterülete 124,40nm melyben található:
- 3 szoba,
- amerikai konyhás nappali,
- háztartási helység,
- fürdőszoba,
- WC,
- kamra,
- közlekedő,
- előszoba,
- terasz (14nm).
Az ingatlan ideális választás lehet mindazok számára, akik új építésű, modern energiatakarékos otthont keresnek nyugodt kertvárosi környezetben.
Az amerikai stílusú új építésű családi ház 2 hónapon belül átadásra kerül. Kiemelten fontos, hogy az épület korszerű hő takarékos építészeti megoldásokat alkalmazva készül el.
A falazata POROTHERM 30N+F téglából épült, mely 12 cm-es homlokzati és 15 cm-es lábazati hőszigetelést kap. A padozatban 12 cm vastag hőszigetelő N100-as lépésálló úsztatóréteg készült el, míg a födém szerkezete 5+20 cm-es ásványgyapot hőszigetelésű lesz. Ennek eredményeként az egész épület energetikai besorolás szempontból A+ kategóriájú. Tetőszerkezete sátortető, hullámlemez fedéssel ellátva.
Az épületben áram, víz és csatorna bekötésre kerül. A családi ház padlófűtéssel készül el, mely hőszivattyúról fog működni. Ezen kívül még 3 db hűtő-fűtő klíma is rendelkezésre fog állni. Az ablakok és a külső ajtók mindegyike 3 rétegű üvegezéssel ellátott műanyag hőszigetelt kivitelű nyílászárók lesznek. Az épületben 2025-ös energetikai szabványoknak megfelelő modern megoldásokat alkalmaz a kivitelező.
Fontos!
Az ingatlan per és tehermentes, az új 3%-os hitel és akár 3 gyerekes CSOK Plusz is igénybe vehető!
Figyelem!
Az ingatlantól 15. percre elérhetők boltok, iskolák, óvodák, orvosi rendelők, gyógyszertárak, bankok, a közkedvelt piac, az önkormányzati hivatal és számtalan üzlethelyiség.
Ha felkeltette érdeklődését, hívja irodánkat bizalommal!
Ha hitelre van szüksége éljen ingyenes, személyre szabott hitel ügyintézési szolgáltatásunkkal is.
belül: jó
gáz: utcában
villany: bekötve
víz: bekötve
Hajdú-Bihar megye, Hajdúböszörmény

+36 70 789 1998
p.petrovan@gdn-ingatlan.hu
KAPCSOLATFELVÉTEL
Ingatlan jellege
családi ház
Belső terület
124 m²
Telek terület
524 m²
Építési állapot
új
Építési mód
- nem meghatározott -
Szobák száma
3 szoba
Ingatlan állapot
kívül: jó
belül: jó
Fűtés
egyéb
Komfort
összkomfort
Közműállapot
csatorna: bekötve
gáz: utcában
villany: bekötve
víz: bekötve
Energetika