KAPCSOLATFELVÉTEL
Ingatlan jellege
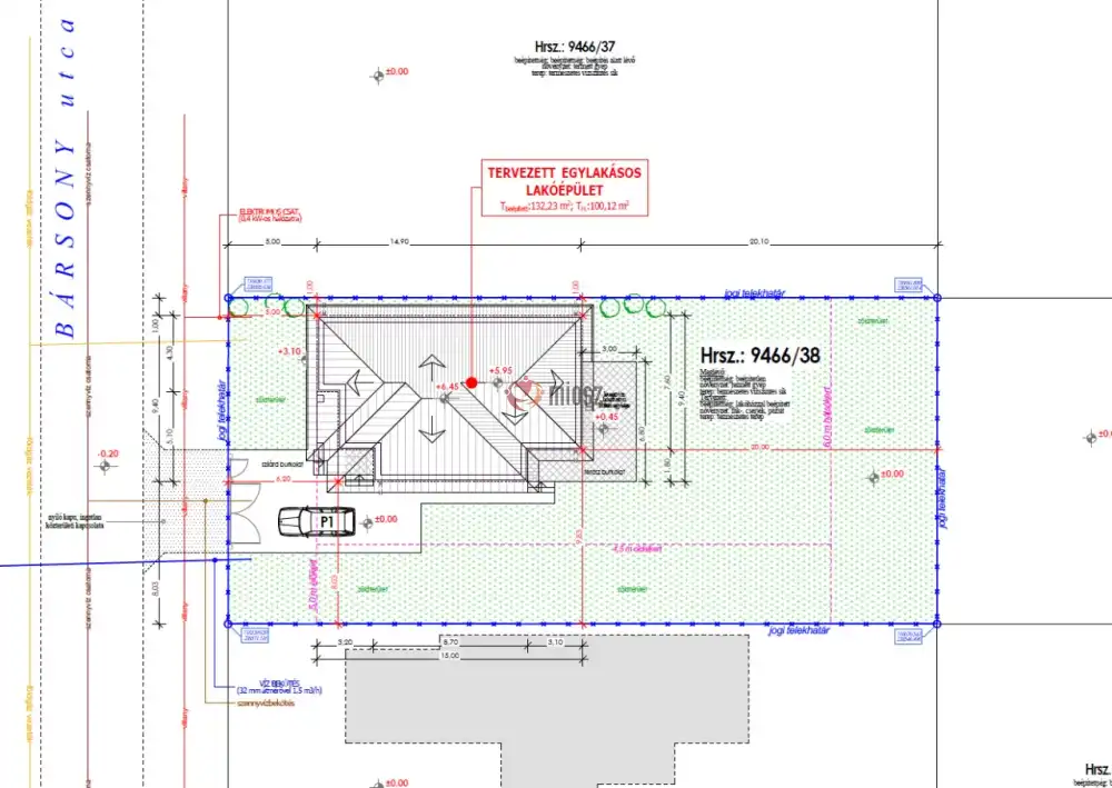
családi ház
Belső terület
100 m²
Telek terület
737 m²
Építési állapot
új
Építési mód
- nem meghatározott -
Szobák száma
5 szoba
Ingatlan állapot
kívül: jó
belül: jó
Fűtés
egyéb
Komfort
összkomfort
Közműállapot
csatorna: bekötve
gáz: utcában
villany: bekötve
víz: bekötve
Jász-Nagykun-Szolnok megye, Jászberény
Irányár
(629 E Ft/㎡)
Szobák
Emelet
Terület
Telek terület
Csok plusz, Otthon Start elérhető!
Az ingatlan 30-as Nútféderes tégla falazóelemből épül, fa födémmel.
A tető héjazata antracit betoncserép lesz, a homlokzatok 15cm EPS, a padló 10cm Austrotherm AT-N100-as, a vízszintes födém 25cm Ásványgyapot szigeteléssel lesz ellátva.
Hat légkamrás 3 rétegű evegekkel szerelt nyílászárók kerülnek beépítésre.
A fűtést 10kw-os monoblockos hőszivattyús rendszer fogja ellátni, padlófűtéssel.
A műszaki tartalom választható az alábbi költségkereten belül:
-hidegburkolat:3000.- Ft./m2-ig.
-melegburkolat:3000.- Ft./m2-ig
-csaptelepek:15.000.- Ft./db
-kád vagy zuhany: 40.000.- Ft.
-beltéri ajtók:35.000.- Ft./db
Elektromos kiépítés:
-Konnektorok szobákban: 3 db
-Konnektorok nappaliban 4db + internet és kábeltv kiállás
-Konnektorok konyhában: 6db
-Világítás helyiségenként 1-1 db
-Kábeltévé: Előkészítés
Magasabb árú tatalom is választható a különbség finanszírozásával.
Riasztó előkészítés és kapu mozgató elektronika előkészítés is készül.
Kérésre szívesen küldünk komplett tervdokumentációt, műszaki leírást.
A kivitelező korábban Sülysápon számos ingatlant épített,a már értékesített és birtokbaadott ingatlanokat komoly érdeklődés esetén szívesen megmutatjuk referenciaként.
Várható átadás 2026 második negyedév!
INGYENES hitel tanácsadás, CSOK Plusz ügyintézés!
BANKFÜGGETLEN hitelcentrumunk az összes elérhető bank és hitelintézet ajánlatát versenyezteti az Ön kedvéért, ráadásul DÍJMENTESEN.
- Egyedi, bankfiókban nem elérhető kamat- és díjkedvezmények
- Hitelképesség vizsgálat
- Idő, energia és pénz megtakarítás
- Teljes hivatali ügyintézés
Amennyiben hirdetésem felkeltette az érdeklődését vagy egyéb információra van szüksége hívjon bizalommal!
belül: jó
gáz: utcában
villany: bekötve
víz: bekötve
Jász-Nagykun-Szolnok megye, Jászberény

+36 70 606 2990
p.horvath@gdn-ingatlan.hu
KAPCSOLATFELVÉTEL
Ingatlan jellege
családi ház
Belső terület
100 m²
Telek terület
737 m²
Építési állapot
új
Építési mód
- nem meghatározott -
Szobák száma
5 szoba
Ingatlan állapot
kívül: jó
belül: jó
Fűtés
egyéb
Komfort
összkomfort
Közműállapot
csatorna: bekötve
gáz: utcában
villany: bekötve
víz: bekötve
Energetika