Eladó új építésű ház - Kispáli

KAPCSOLAT
Juhász Judit


+36 70 883

j.juhasz@

Az időpont kérés naptár ikonja
IDŐPONTOT KÉREK
A visszahívás kérés telefon ikonja egy azt körbe ölelő nyíllal
VISSZAHÍVÁST KÉREK
Ajánlom egy ismerősömnek ikon
AJÁNLOM EGY ISMERŐSÖMNEK
Facebook megosztás ikon
MEGOSZTÁS

KAPCSOLATFELVÉTEL

Küldés

Az üzenetet sikeresen elküldtük!
Hiba történt!
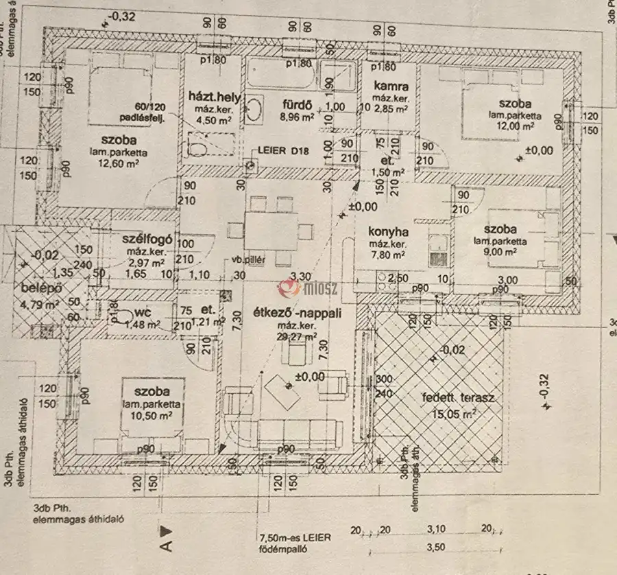
INGATLAN ADATAI

Ingatlan jellege

családi ház

Belső terület

123 m²

Telek terület

1079 m²

Építési állapot

új

Építési mód

- nem meghatározott -

Szobák száma

4 szoba

Épület szintje

1.

Ingatlan állapot

kívül: jó
belül: jó

Fűtés

cirko

Komfort

összkomfort

Közműállapot

csatorna: bekötve
gáz: bekötve
villany: bekötve
víz: bekötve

Az időpont kérés naptár ikonja
HTML
Az időpont kérés naptár ikonja
PDF
Eladó új építésű ház
Belső azonosító:
389358
Ingatlan azonosító:
35319_gimp

Zala megye, Kispáli

Irányár

99 M Ft
(804.88 E Ft/㎡)

Szobák

4 szoba

Emelet

Terület

123 m²

Telek terület

1079 m²
INGATLAN LEÍRÁSA
✨ ÚJ ÉPÍTÉSŰ MODERN OTTHON • PANORÁMA • ELEGANCIA • TERMÉSZETKÖZELI NYUGALOM ✨

Különleges lehetőség Nagypáliban – egy energiatudatos, jövőbe mutató településen
123 m²-es letisztult, világos családi ház • hatalmas saroktelken • 3 hálószoba + amerikai nappali

Ha egy olyan otthont keres, ahol a minőség, a tér, a fény és a természet találkozik, akkor ez a ház tökéletes választás.
Modern, elegáns, mégis otthonos – egyetlen szinten, logikus, élhető alaprajzzal, közvetlen kertkapcsolattal és zavartalan, zöld panorámával.

A HÁZ FŐBB ÉRTÉKEI

✅ Új építésű, modern családi ház – 123 m², földszintes, ideális elrendezés
✅ 1079 m²-es saroktelek – privát tér, rendezett környezet, panorámás kilátás
✅ Napfényben úszó nappali–konyha–étkező → közvetlen teraszkapcsolattal
✅ 3 kényelmes, különnyíló hálószoba
✅ Energiatakarékos fűtés: gázcirkó kazán padlófűtéssel + klíma
✅ Világos, nagy üvegfelületek, modern műszaki tartalom
✅ Halk, zöldövezeti környezet, de mégis könnyen megközelíthető
✅ Új építésű utcafront, igényes környezet, kulturált szomszédság

ELHELYEZKEDÉS – NAGYPÁLI
Az ország egyik leginnovatívabb, legzöldebb települése, amely példaként szerepel fenntartható és energiabarát működésével.
5 perc Zalaegerszegtől, mégis teljes vidéki nyugalom – kompromisszumok nélkül.

✔️ Fiatalodó lakosság, igényes, új házak
✔️ Napelemek, hibrid erőmű, megújuló energiára épülő településfejlesztés
✔️ 74-es főút közelében – tökéletes elérhetőség
✔️ Kiváló közösség, biztonságos, nyugodt lakókörnyezet

KINEK AJÁNLJUK?
• Családoknak, akik értékelik a teret és a minőséget
• Városi dolgozóknak, akik élhető, zajmentes otthonra vágynak
• Befektetőknek, akik értik, milyen ritka az új építésű + nagy telek + jó lokáció kombinációja
• Természetkedvelőknek, akik mégis 5 percre akarnak lenni a várostól

Irányár: 99 000 000.- Ft

Érdeklődés, megtekintés
Ha ez az otthon megszólította – hívjon, mielőtt más teszi meg!
Irodánk díjmentes hitel- és ügyintézési hátteret biztosít, teljes körű támogatással: hitel, energetika, ügyvéd, értékbecslés → minden egy helyen.

INGATLAN ADATAI

Ingatlan jellege
családi ház
Belső terület
123 m²
Telek terület
1079 m²
Építési állapot
új
Építési mód
- nem meghatározott -
Szobák száma
4 szoba
Épület szintje
1.
Ingatlan állapot
kívül: jó
belül: jó
Fűtés
cirko
Komfort
összkomfort
Közműállapot
csatorna: bekötve
gáz: bekötve
villany: bekötve
víz: bekötve
Energetika
TÉRKÉP

Zala megye, Kispáli

KAPCSOLAT
Juhász Judit
Juhász Judit


+36 70 883 0574

j.juhasz@gdn-ingatlan.hu

KAPCSOLAT
Juhász Judit

+36 70 883

j.juhasz@

Az időpont kérés naptár ikonja
IDŐPONTOT KÉREK
A visszahívás kérés telefon ikonja egy azt körbe ölelő nyíllal
VISSZAHÍVÁST KÉREK
Ajánlom egy ismerősömnek ikon
AJÁNLOM EGY ISMERŐSÖMNEK
Facebook megosztás ikon
MEGOSZTÁS

KAPCSOLATFELVÉTEL

Küldés

Az üzenetet sikeresen elküldtük!
Hiba történt!
INGATLAN ADATAI

Ingatlan jellege

családi ház

Belső terület

123 m²

Telek terület

1079 m²

Építési állapot

új

Építési mód

- nem meghatározott -

Szobák száma

4 szoba

Épület szintje

1.

Ingatlan állapot

kívül: jó
belül: jó

Fűtés

cirko

Komfort

összkomfort

Közműállapot

csatorna: bekötve
gáz: bekötve
villany: bekötve
víz: bekötve

Energetika

Az időpont kérés naptár ikonja
HTML
Az időpont kérés naptár ikonja
PDF
Zala megye - Kispáli
Zala megye - Kispáli
Zala megye - Kispáli
Zala megye - Kispáli
Zala megye - Kispáli
Zala megye - Kispáli
Zala megye - Kispáli
Zala megye - Kispáli
Zala megye - Kispáli
Zala megye - Kispáli
Zala megye - Kispáli
Zala megye - Kispáli
Zala megye - Kispáli
Zala megye - Kispáli
Zala megye - Kispáli
Zala megye - Kispáli