KAPCSOLATFELVÉTEL
Ingatlan jellege
családi ház
Belső terület
95 m²
Telek terület
1425 m²
Építési állapot
új
Építési mód
- nem meghatározott -
Szobák száma
4 szoba
Ingatlan állapot
kívül: jó
belül: jó
Fűtés
egyéb
Komfort
összkomfort
Közműállapot
csatorna: bekötve
gáz: utcában
villany: bekötve
víz: bekötve
Pest megye, Kóka
Irányár
(652.63 E Ft/㎡)
Szobák
Emelet
Terület
Telek terület
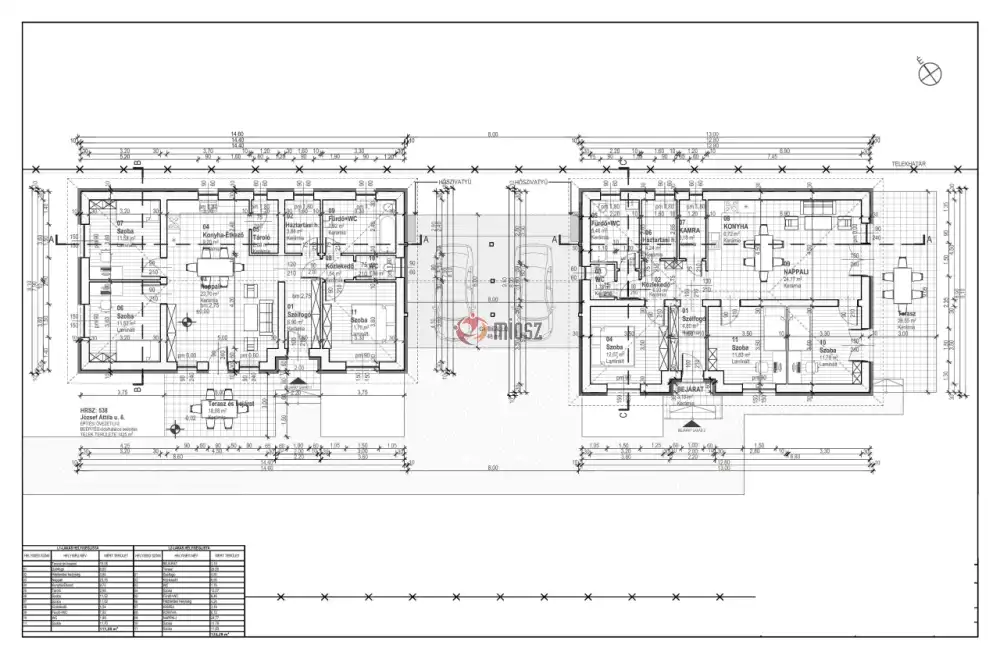
Az utcafronti ingatlan 406 m²-es telekrésszel 62.000.000 Ft.
A hátsó ingatlan 1019 m²-es telkerésszel 65.000.000. Ft.
Az ingatlanok csak a fedett kocsibeállókkal érintkeznek.
A tartószerkezeti falak Porotherm P30N+F téglából, betonkoszorúval, fa födémes tetőszerkezettel készülnek. A lábazat 10 cm polisztirol lépésálló, a homlokzatok 15cm-es EPS, a vízszintes födém 25 cm ásványgyapot szigeteléssel lesz ellátva.
Három rétegű üvegekkel szerelt, hat légkamrás műanyag thermo nyílászárók kerülnek beépítésre.
A minimális energiaigényt a megfelelő szigetelésen kívül a megújuló energiát használó gépészet is biztosítja. A fűtést levegő-víz hőszivattyús rendszer fogja végezni.
Burkolatok , szaniterek, belső ajtók, csaptelepek választhatóak a következő értékhatárig:
-Hidegburkolat: 3000 Ft.-/m2
-Melegburkolat: 3000 Ft.-/m2
-Beltéri ajtók: 30.000.Ft.-/db
-Fürdőkád: 40.000.- Ft.-
-Csaptelepek: 15000.- Ft.-/db
Magasabb árú választás is lehetséges, a különbség finanszírozásával.
A kivitelező korábban Sülysápon épített, már birtokbaadott ingatlanjait komoly érdeklődés esetén szívesen megmutatjuk referenciaként.
Csok plusz, Otthon Start igényelhető!
Tervezett átadás 2026 második negyedéve
Érdeklődő ügyfeleinknek a tervdokumetációt és a műszaki tartalmat készséggel rendelkezésre bocsájtjuk.
INGYENES hitel tanácsadás, CSOK Plusz ügyintézés!
BANKFÜGGETLEN hitelcentrumunk az összes elérhető bank és hitelintézet ajánlatát versenyezteti az Ön kedvéért, ráadásul DÍJMENTESEN.
- Egyedi, bankfiókban nem elérhető kamat- és díjkedvezmények
- Hitelképesség vizsgálat
- Idő, energia és pénz megtakarítás
- Teljes hivatali ügyintézés
Amennyiben hirdetésem felkeltette az érdeklődését vagy egyéb információra van szüksége hívjon bizalommal!
belül: jó
gáz: utcában
villany: bekötve
víz: bekötve
Pest megye, Kóka

+36 70 606 2990
p.horvath@gdn-ingatlan.hu
KAPCSOLATFELVÉTEL
Ingatlan jellege
családi ház
Belső terület
95 m²
Telek terület
1425 m²
Építési állapot
új
Építési mód
- nem meghatározott -
Szobák száma
4 szoba
Ingatlan állapot
kívül: jó
belül: jó
Fűtés
egyéb
Komfort
összkomfort
Közműállapot
csatorna: bekötve
gáz: utcában
villany: bekötve
víz: bekötve
Energetika