KAPCSOLATFELVÉTEL
Ingatlan jellege
családi ház
Belső terület
101 m²
Telek terület
901 m²
Építési állapot
új
Építési mód
- nem meghatározott -
Szobák száma
2 szoba
Ingatlan állapot
kívül: jó
belül: jó
Fűtés
cirko
Komfort
duplakomfort
Közműállapot
csatorna: bekötve
gáz: bekötve
villany: bekötve
víz: bekötve
Szabolcs-Szatmár-Bereg megye, Nyíregyháza, Nyírszőlős
Irányár
(890.1 E Ft/㎡)
Szobák
Emelet
Terület
Telek terület
Ára: 89.900.000 Ft.
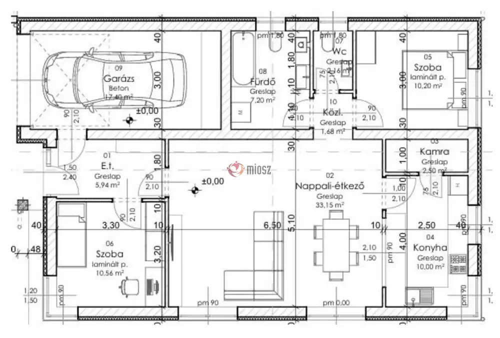
Az ingatlan alap méretei:
- a telek mérete: 901nm,
- a ház alapterülete: 101nm.
Az épület hasznos alapterülete 100,8nm melyben található:
- 2 szoba,
- amerikai konyhás nappali,
- kamra,
- fürdőszoba,
- WC,
- közlekedő,
- előtér,
- garázs (17nm).
Az amerikai stílusú új építésű családi ház várhatóan 8 hónapon belül kerül átadásra, mely korszerű hő takarékos építészeti megoldásokat alkalmazva készül el. A falazata 30-as téglából épül, mely 15 cm-es EPS homlokzati hőszigetelést kap. A födém szerkezete 15 cm-es ásványszálas hőszigetelésű lesz, így az egész épület energetikai szempontból A++ kategóriájú.
Az épületben áram, víz, gáz és csatorna bekötésre kerül. Az épület padlófűtéssel, radiátoros fűtéssel vagy kérés esetén a kettő kombinációjával készül el, mely gáz cirkó kazánról fog működni. Ezen kívül még 2 db hűtő-fűtő klíma is rendelkezésre fog állni. A melegvíz ellátásról szintén a gáz cirkó kazán gondoskodik.
Az ingatlan ideális választás lehet mindazok számára, akik új építésű, modern energiatakarékos otthont keresnek nyugodt kertvárosi környezetben.
Fontos!
Az ingatlan per és tehermentes, 2 gyerekes CSOK Plusz is igénybe vehető!
Figyelem!
Minőségi kivitelezés és választható belső burkolatok, szaniterek.
2025-ös energetikai szabványoknak megfelelő modern megoldások.
A belső elrendezés igény szerint módosítható.
Ha felkeltette érdeklődését, hívja irodánkat bizalommal!
Ha hitelre van szüksége éljen ingyenes, személyre szabott hitel ügyintézési szolgáltatásunkkal is.
belül: jó
gáz: bekötve
villany: bekötve
víz: bekötve
Szabolcs-Szatmár-Bereg megye, Nyíregyháza, Nyírszőlős

+36 70 789 1998
k.berki@gdn-ingatlan.hu
KAPCSOLATFELVÉTEL
Ingatlan jellege
családi ház
Belső terület
101 m²
Telek terület
901 m²
Építési állapot
új
Építési mód
- nem meghatározott -
Szobák száma
2 szoba
Ingatlan állapot
kívül: jó
belül: jó
Fűtés
cirko
Komfort
duplakomfort
Közműállapot
csatorna: bekötve
gáz: bekötve
villany: bekötve
víz: bekötve
Energetika