Eladó új építésű ház - Nyírtura

KAPCSOLAT
Leviczki Péter


+36 30 693

info@

Az időpont kérés naptár ikonja
IDŐPONTOT KÉREK
A visszahívás kérés telefon ikonja egy azt körbe ölelő nyíllal
VISSZAHÍVÁST KÉREK
Ajánlom egy ismerősömnek ikon
AJÁNLOM EGY ISMERŐSÖMNEK
Facebook megosztás ikon
MEGOSZTÁS

KAPCSOLATFELVÉTEL

Küldés

Az üzenetet sikeresen elküldtük!
Hiba történt!
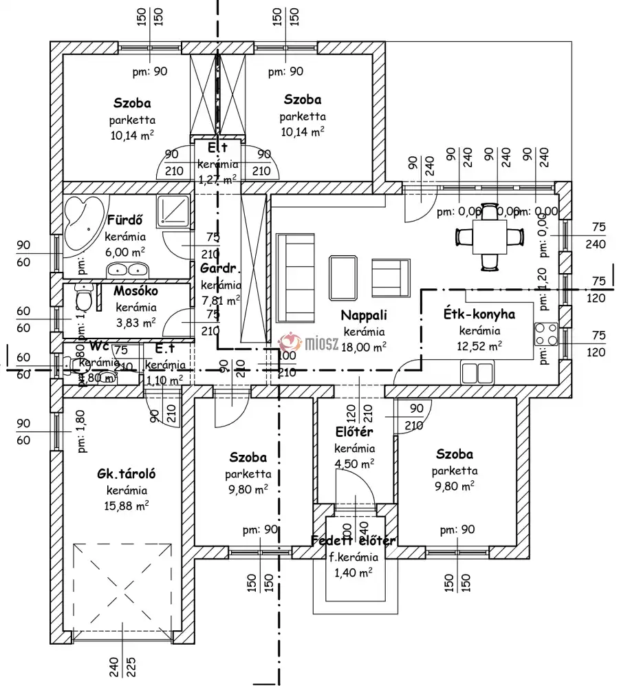
INGATLAN ADATAI

Ingatlan jellege

családi ház

Belső terület

113 m²

Telek terület

900 m²

Tájolás

dél, kelet, nyugat

Építési állapot

új

Építési mód

tégla

Szobák száma

5 szoba

Épület szintje

1.

Épült

2026

Ingatlan állapot

kívül: új
belül: új

Klíma

előkészítve

Szigetelés

15 cm

Ablak szerkezete

3 rétegű thermoplan

Fűtés

cirko

Komfort

összkomfort

Parkolás

van önálló garázs

Közműállapot

csatorna: bekötve
gáz: bekötve
villany: bekötve
víz: bekötve

Energetika

nincs megadva

Az időpont kérés naptár ikonja
HTML
Az időpont kérés naptár ikonja
PDF
Eladó új építésű ház
Ingatlan azonosító:
835_ahi

Szabolcs-Szatmár-Bereg megye, Nyírtura, Liliom utca

Irányár

67.9 M Ft
(600.88 E Ft/㎡)

Szobák

5 szoba

Terület

113 m²

Telek terület

900 m²
INGATLAN LEÍRÁSA
Nyíregyházától 10 km-re új építésű lakóparkban különálló családi ház megrendelhető.

Jellemzők:

tégla építésű, cseréptetővel
4 hálószoba + nappali
1 fürdő + 2 wc
mosókonyha

Természetesen egyedi elképzelések is megvalósíthatóak!

Egyedi lehetőségek:
Minden kedvezmény igénybe vehető ( CSOK, Otthon Start )!
A feltüntetett vételárból még 5 M Ft áfa visszaigényelhető!
Lakás beszámítás lehetséges!

Rendeteg referenciával rendelkező kivitelező!

További információkért keressen bizalommal!

INGATLAN ADATAI

Ingatlan jellege
családi ház
Belső terület
113 m²
Telek terület
900 m²
Tájolás
dél, kelet, nyugat
Építési állapot
új
Építési mód
tégla
Szobák száma
5 szoba
Épület szintje
1.
Épült
2026
Ingatlan állapot
kívül: új
belül: új
Klíma
előkészítve
Szigetelés
15 cm
Ablak szerkezete
3 rétegű thermoplan
Fűtés
cirko
Komfort
összkomfort
Parkolás
van önálló garázs
Közműállapot
csatorna: bekötve
gáz: bekötve
villany: bekötve
víz: bekötve
Energetika
nincs megadva
TÉRKÉP

Szabolcs-Szatmár-Bereg megye, Nyírtura, Liliom utca

KAPCSOLAT
Leviczki Péter
Leviczki Péter


+36 30 693 2699

info@almaimhaza.hu

KAPCSOLAT
Leviczki Péter

+36 30 693

info@

Az időpont kérés naptár ikonja
IDŐPONTOT KÉREK
A visszahívás kérés telefon ikonja egy azt körbe ölelő nyíllal
VISSZAHÍVÁST KÉREK
Ajánlom egy ismerősömnek ikon
AJÁNLOM EGY ISMERŐSÖMNEK
Facebook megosztás ikon
MEGOSZTÁS

KAPCSOLATFELVÉTEL

Küldés

Az üzenetet sikeresen elküldtük!
Hiba történt!
INGATLAN ADATAI

Ingatlan jellege

családi ház

Belső terület

113 m²

Telek terület

900 m²

Tájolás

dél, kelet, nyugat

Építési állapot

új

Építési mód

tégla

Szobák száma

5 szoba

Épület szintje

1.

Épült

2026

Ingatlan állapot

kívül: új
belül: új

Klíma

előkészítve

Szigetelés

15 cm

Ablak szerkezete

3 rétegű thermoplan

Fűtés

cirko

Komfort

összkomfort

Parkolás

van önálló garázs

Közműállapot

csatorna: bekötve
gáz: bekötve
villany: bekötve
víz: bekötve

Energetika

nincs megadva

Az időpont kérés naptár ikonja
HTML
Az időpont kérés naptár ikonja
PDF
Szabolcs-Szatmár-Bereg megye - Nyírtura
Szabolcs-Szatmár-Bereg megye - Nyírtura