KAPCSOLATFELVÉTEL
Ingatlan jellege
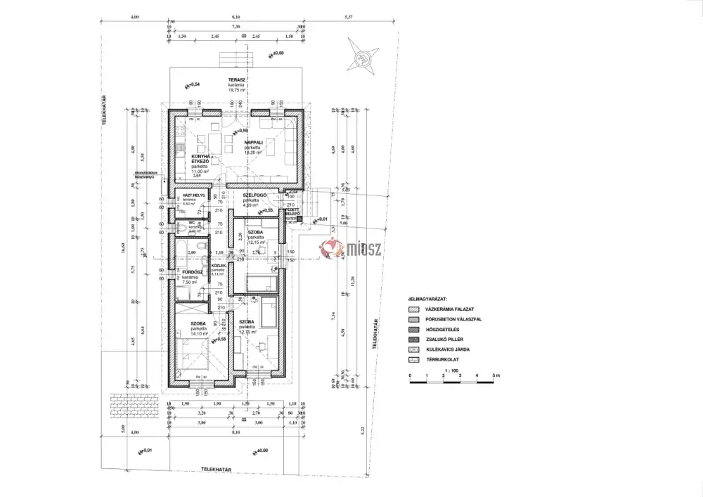
családi ház
Belső terület
93 m²
Telek terület
432 m²
Építési állapot
új
Építési mód
- nem meghatározott -
Szobák száma
4 szoba
Ingatlan állapot
kívül: jó
belül: jó
Fűtés
egyéb
Komfort
összkomfort
Közműállapot
csatorna: bekötve
gáz: utcában
villany: bekötve
víz: bekötve
Pest megye, Sülysáp
Irányár
(806.45 E Ft/㎡)
Szobák
Emelet
Terület
Telek terület
A Határ út Sülysáp Kóka felőli utolsó utcája, mégis közel van a központhoz. A telekről csodálataos panoráma nyílik a mögötte elhelyezkedő szántóra és az erdőre.
A tartószerkezeti falak Porotherm P30N+F téglából, betonkoszorúval, fa födémes tetőszerkezettel készülnek. A lábazat 10 cm polisztirol lépésálló, a homlokzatok 10cm-es Austrotherm Grafitos, a vízszintes födém 25 cm ásványgyapot szigeteléssel lesz ellátva.
Három rétegű üvegekkel szerelt, hat légkamrás műanyag thermo nyílászárók kerülnek beépítésre.
A minimális energiaigényt a megfelelő szigetelésen kívül a megújuló energiát használó gépészet is biztosítja. A fűtést levegő-víz hőszivattyús rendszer fogja végezni.
Burkolatok , szaniterek, belső ajtók, csaptelepek választhatóak a következő értékhatárig:
-Hidegburkolat: 3000 Ft.-/m2
-Melegburkolat: 3000 Ft.-/m2
-Beltéri ajtók: 30.000.Ft.-/db
-Fürdőkád: 40.000.- Ft.-
-Csaptelepek: 15000.- Ft.-/db
Magasabb árú választás is lehetséges, a különbség finanszírozásával.
A kivitelező korábban Sülysápon épített, már birtokbaadott ingatlanjait komoly érdeklődés esetén szívesen megmutatjuk referenciaként.
Központi elhelyezkedésének köszönhetően a közelben megtalálhatóak:
-óvoda 300m
-Móra Ferenc általános iskola 600m
-Tesco 700m
-Vasútállomás 450m
-Polgármesteri hivatal 650m
-Sülysáp 1-es Posta 650m
-Sülysáp Városi Piac 900m
Csok plusz és Otthon Start igényelhető!
Tervezett átadás 2026 második negyedéve
INGYENES hitel tanácsadás, CSOK Plusz ügyintézés!
BANKFÜGGETLEN hitelcentrumunk az összes elérhető bank és hitelintézet ajánlatát versenyezteti az Ön kedvéért, ráadásul DÍJMENTESEN.
- Egyedi, bankfiókban nem elérhető kamat- és díjkedvezmények
- Hitelképesség vizsgálat
- Idő, energia és pénz megtakarítás
- Teljes hivatali ügyintézés
Amennyiben hirdetésem felkeltette az érdeklődését vagy egyéb információra van szüksége hívjon bizalommal!
belül: jó
gáz: utcában
villany: bekötve
víz: bekötve
Pest megye, Sülysáp

+36 70 606 2990
p.horvath@gdn-ingatlan.hu
KAPCSOLATFELVÉTEL
Ingatlan jellege
családi ház
Belső terület
93 m²
Telek terület
432 m²
Építési állapot
új
Építési mód
- nem meghatározott -
Szobák száma
4 szoba
Ingatlan állapot
kívül: jó
belül: jó
Fűtés
egyéb
Komfort
összkomfort
Közműállapot
csatorna: bekötve
gáz: utcában
villany: bekötve
víz: bekötve
Energetika