Eladó új építésű ikerház - Nyírtura

garázzsal
Garázzsal
KAPCSOLAT
Leviczki Péter


+36 30 693

info@

Az időpont kérés naptár ikonja
IDŐPONTOT KÉREK
A visszahívás kérés telefon ikonja egy azt körbe ölelő nyíllal
VISSZAHÍVÁST KÉREK
Ajánlom egy ismerősömnek ikon
AJÁNLOM EGY ISMERŐSÖMNEK
Facebook megosztás ikon
MEGOSZTÁS

KAPCSOLATFELVÉTEL

Küldés

Az üzenetet sikeresen elküldtük!
Hiba történt!
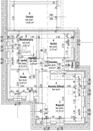
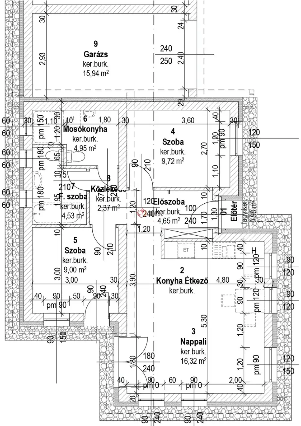
INGATLAN ADATAI

Ingatlan jellege

ikerház

Belső terület

68 m²

Telek terület

400 m²

Tájolás

dél, kelet, nyugat

Építési állapot

új

Építési mód

tégla

Szobák száma

3 szoba

Épület szintje

1.

Épült

2026

Ingatlan állapot

kívül: új
belül: új

Szigetelés

15 cm

Ablak szerkezete

3 rétegű thermoplan

Fűtés

cirko

Komfort

összkomfort

Parkolás

van önálló garázs

Közműállapot

csatorna: bekötve
gáz: bekötve
villany: bekötve
víz: bekötve

Energetika

nincs megadva

Az időpont kérés naptár ikonja
HTML
Az időpont kérés naptár ikonja
PDF
Eladó új építésű ikerház
Ingatlan azonosító:
839_ahi

Szabolcs-Szatmár-Bereg megye, Nyírtura

Irányár

44.5 M Ft
(654.41 E Ft/㎡)

Szobák

3 szoba

Terület

68 m²

Telek terület

400 m²
INGATLAN LEÍRÁSA
Nyíregyháza Tesco-tól 9 km-re új lakóparkban 2 szobás lakás áráért (garázs nélkül) új építésű ikerház eladó!

Jellemzői:

tégla építésű, cseréptetővel
teljes közművel
2 hálószoba + nappali elosztással
1 fürdő + 2 wc
mosókonyha
fedetlen terasszal
csak garázskapcsolat van a 2 ház között
gázfűtés padlófűtéssel
fehér műanyag nyílászárókkal 3 rétegű üvegezéssel
szekcionált hőszigetelt motoros garázskapuval

CSOK, Otthon start 3% hitel igénybe vehető rá!
A vételárból akár 5M Ft áfa visszaigényelhető
Lakásbeszámítás lehetséges!
Rengeteg referenciával rendelkező kivitelező, 15 éve dolgozunk együtt!

Kezdés 2026.tavasz. Bővebb információért keressen bizalommal, le ne maradjon róla!

INGATLAN ADATAI

Ingatlan jellege
ikerház
Belső terület
68 m²
Telek terület
400 m²
Tájolás
dél, kelet, nyugat
Építési állapot
új
Építési mód
tégla
Szobák száma
3 szoba
Épület szintje
1.
Épült
2026
Ingatlan állapot
kívül: új
belül: új
Szigetelés
15 cm
Ablak szerkezete
3 rétegű thermoplan
Fűtés
cirko
Komfort
összkomfort
Parkolás
van önálló garázs
Közműállapot
csatorna: bekötve
gáz: bekötve
villany: bekötve
víz: bekötve
Energetika
nincs megadva
TÉRKÉP

Szabolcs-Szatmár-Bereg megye, Nyírtura

KAPCSOLAT
Leviczki Péter
Leviczki Péter


+36 30 693 2699

info@almaimhaza.hu

KAPCSOLAT
Leviczki Péter

+36 30 693

info@

Az időpont kérés naptár ikonja
IDŐPONTOT KÉREK
A visszahívás kérés telefon ikonja egy azt körbe ölelő nyíllal
VISSZAHÍVÁST KÉREK
Ajánlom egy ismerősömnek ikon
AJÁNLOM EGY ISMERŐSÖMNEK
Facebook megosztás ikon
MEGOSZTÁS

KAPCSOLATFELVÉTEL

Küldés

Az üzenetet sikeresen elküldtük!
Hiba történt!
INGATLAN ADATAI

Ingatlan jellege

ikerház

Belső terület

68 m²

Telek terület

400 m²

Tájolás

dél, kelet, nyugat

Építési állapot

új

Építési mód

tégla

Szobák száma

3 szoba

Épület szintje

1.

Épült

2026

Ingatlan állapot

kívül: új
belül: új

Szigetelés

15 cm

Ablak szerkezete

3 rétegű thermoplan

Fűtés

cirko

Komfort

összkomfort

Parkolás

van önálló garázs

Közműállapot

csatorna: bekötve
gáz: bekötve
villany: bekötve
víz: bekötve

Energetika

nincs megadva

Az időpont kérés naptár ikonja
HTML
Az időpont kérés naptár ikonja
PDF
Szabolcs-Szatmár-Bereg megye - Nyírtura
Szabolcs-Szatmár-Bereg megye - Nyírtura
Szabolcs-Szatmár-Bereg megye - Nyírtura