KAPCSOLATFELVÉTEL
Ingatlan jellege
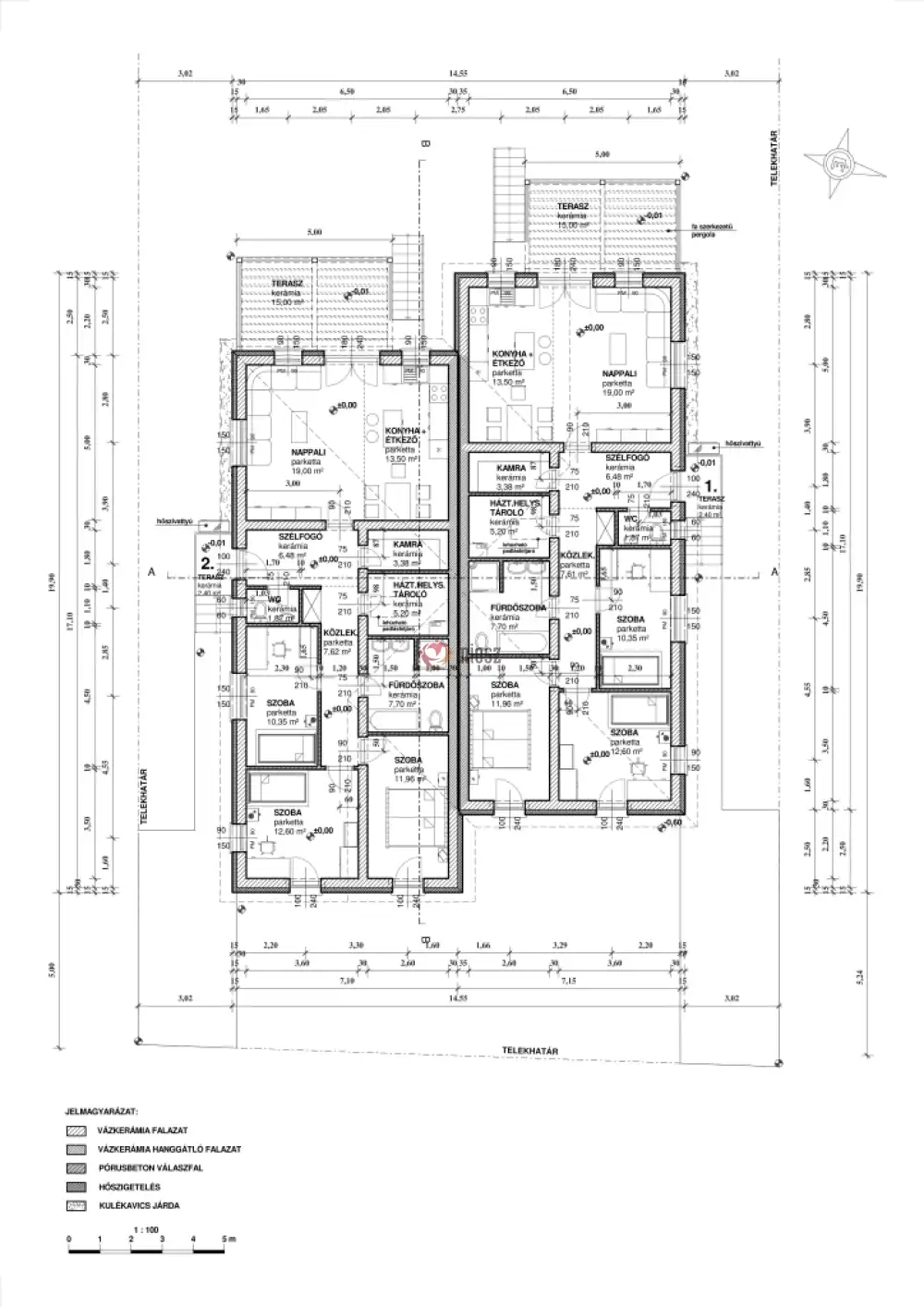
ikerház
Belső terület
100 m²
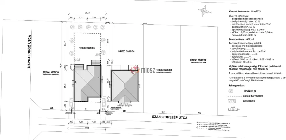
Telek terület
504 m²
Építési állapot
új
Építési mód
- nem meghatározott -
Szobák száma
4 szoba
Ingatlan állapot
kívül: jó
belül: jó
Fűtés
egyéb
Komfort
összkomfort
Közműállapot
csatorna: bekötve
gáz: nincs
villany: bekötve
víz: bekötve
Pest megye, Pécel
Irányár
(950 E Ft/㎡)
Szobák
Emelet
Terület
Telek terület
A bal oldali ikerfél elkelt!
Az ingatlanok 30-as Nútféderes tégla falazóelemből épülnek, fa födémmel. A tető héjazata antracit síkcserép lesz, a homlokzatok 15cm EPS, a padló 10cm lépésálló, a födém 25cm ásványgyapot szigeteléssel lesz ellátva.
A külső nyílászárók 6 légkamrás háromrétegű üveggel szerelt műanyag thermók lesznek.
A fűtést monoblockos hőszivattyús rendszer fogja ellátni, padlófűtéssel.
A teraszok alatt tároló kerül kialakításra.
Klíma előkészítés is készül.
Műszaki tartalom:
-Csempe, járólap 5000 ft/m²
-Meleg burkolat 5000 Ft/m²
-Fürdőkád vagy Zuhanyzó: 60.000.- Ft
-Beltéri ajtók br. 50.000.- Ft. /db
-Csaptelepek: 15.000.- Ft. /db
Magasabb árú választás is lehetséges a különbség finanszírozásával.
Elektromos kiépítés:
-60db szerelvény /konnektor, kapcsoló, tv, internet/
-Kábeltévé: Előkészítés
-Kapumozgató elektronika: előkészítés
-Riasztó: előkészítés
Az utcafronti kerítés színezett zsalukővel, fa lécezéssel készül.
Tervezett átadás 2026 második negyedév.
Érdeklődő ügyfeleinknek a tervdokumetációt és a műszaki tartalmat készséggel rendelkezésre bocsájtjuk.
A kivitelező korábban számos ingatlant épített Isaszegen, Sülysápon, Dányban. Komoly érdeklődés esetén szívesen mutatunk referenciát!
INGYENES hitel tanácsadás, CSOK Plusz és Otthon Start ügyintézés!
BANKFÜGGETLEN hitelcentrumunk az összes elérhető bank és hitelintézet ajánlatát versenyezteti az Ön kedvéért, ráadásul DÍJMENTESEN.
- Egyedi, bankfiókban nem elérhető kamat- és díjkedvezmények
- Hitelképesség vizsgálat
- Idő, energia és pénz megtakarítás
- Teljes hivatali ügyintézés
Amennyiben hirdetésem felkeltette az érdeklődését vagy egyéb információra van szüksége hívjon bizalommal!
belül: jó
gáz: nincs
villany: bekötve
víz: bekötve
Pest megye, Pécel

+36 70 606 2990
p.horvath@gdn-ingatlan.hu
KAPCSOLATFELVÉTEL
Ingatlan jellege
ikerház
Belső terület
100 m²
Telek terület
504 m²
Építési állapot
új
Építési mód
- nem meghatározott -
Szobák száma
4 szoba
Ingatlan állapot
kívül: jó
belül: jó
Fűtés
egyéb
Komfort
összkomfort
Közműállapot
csatorna: bekötve
gáz: nincs
villany: bekötve
víz: bekötve
Energetika