KAPCSOLAT
IDŐPONTOT KÉREK
VISSZAHÍVÁST KÉREK
AJÁNLOM EGY ISMERŐSÖMNEK
MEGOSZTÁS
KAPCSOLATFELVÉTEL
Az üzenetet sikeresen elküldtük!
Hiba történt!
INGATLAN ADATAI
Ingatlan jellege
téglalakás
Belső terület
36 m²
Építési állapot
új
Építési mód
- nem meghatározott -
Szobák száma
1 szoba
Emelet
1.
Épület szintje
2.
Ingatlan állapot
kívül: jó
belül: jó
Fűtés
egyéb
Komfort
összkomfort
Kilátás
udvarra
HTML
PDF
Eladó új építésű téglalakás
Belső azonosító:
379621
Ingatlan azonosító:
35159_gimp
Pest megye, Kiskunlacháza
Irányár
38.68 M Ft
(1.07 M Ft/㎡)
(1.07 M Ft/㎡)
Szobák
1 szoba
Emelet
1
Terület
36 m²
INGATLAN LEÍRÁSA
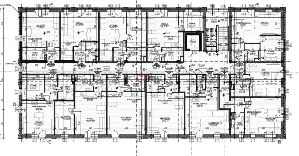
Kiskunlacháza központi részén, kínálom megvételre új-építésű 31 lakásos liftes társasház, első emeleti 35,16 nm-es lakását!
Kiskunlacházán most épülő társasház első emelet 21-es. lakása eladó!
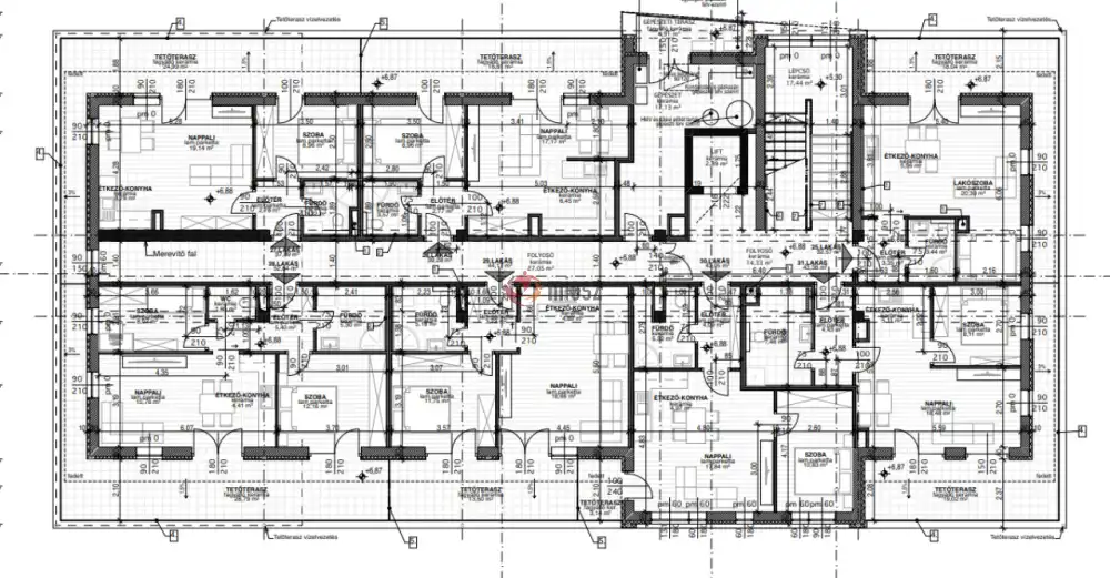
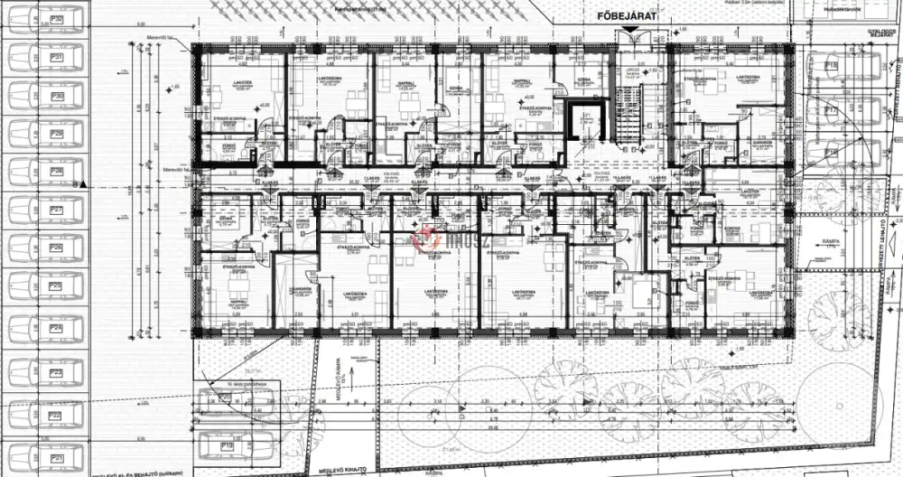
A társasházban 31 db lakás épül 27 és 54 nm között három szinten,
lakások 2025 második felében kerülnek átadásra.
Nézze meg a többi lakást is a hirdetésem között!
Műszaki tartalom:
-alap vasalt beton,
-falazat phorothetm tégla
-monolit beton födém
-nyílászáró 3rtg üvegezett műanyag szerkezetű
-tető fedése beton cserép
-fűtés hőszivattyú, padlófűtés hőleadással
-15 cm Dryvit rendszerű homlokzatszigetelés
-választható hideg és meleg burkolat.
A lakás 35,16 nm, helyiségei:előtér 3,78 nm, fürdőszoba 4,89 nm, étkező/konyha 10,17 nm, nappali/lakószoba 16,32 nm.
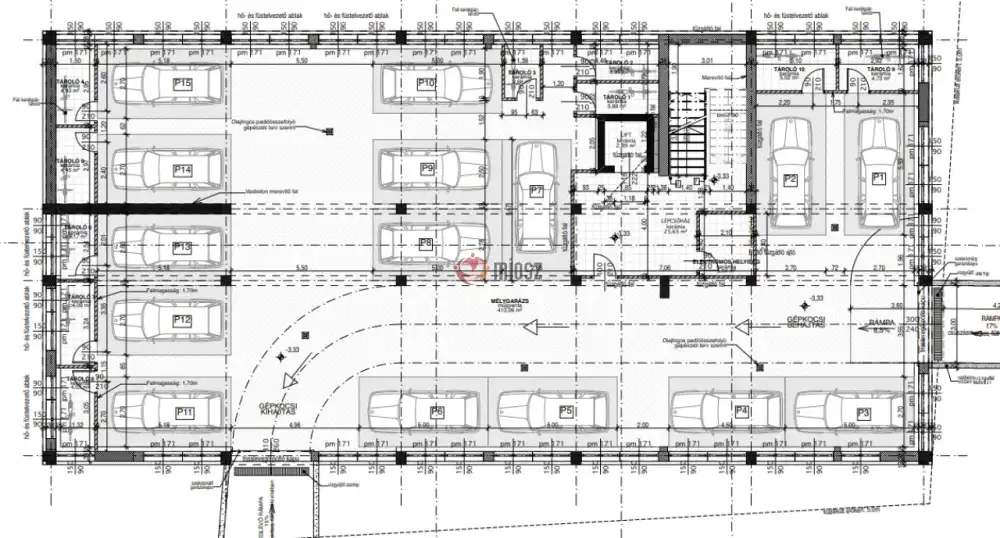
A lakáshoz vásárolható teremgarázshely melynek ára 3.500.000 ft, vagy földfelszíni parkolóhely melynek ára 1.500.000 ft, (megvásárlása nem kötelező), valamint tároló helyiség is vásárolható.
A társasházban 31 db lakás kerül megépítésre, a földszinti és első emeleti lakások erkély nélküliek, a 2 emeleti lakások terasz kapcsolattal rendelkeznek.
Amennyiben kérdése merül fel, vagy megtekintené a lakást keressen bizalommal!
FINANSZÍROZÁS:
Nálunk mindent egy helyen intézhet:
- hivatalos ingatlanközvetítés;
- szakszerű jogi képviselet;
- profi CSOK-PLUSZ, és hitelügyintézés: 16 Bank, több mint 100 konstrukció;
A részletes adatvédelmi tájékoztató folyamatosan elérhető a gdn-ingatlan adatvedelmi oldalon.
Kiskunlacházán most épülő társasház első emelet 21-es. lakása eladó!
A társasházban 31 db lakás épül 27 és 54 nm között három szinten,
lakások 2025 második felében kerülnek átadásra.
Nézze meg a többi lakást is a hirdetésem között!
Műszaki tartalom:
-alap vasalt beton,
-falazat phorothetm tégla
-monolit beton födém
-nyílászáró 3rtg üvegezett műanyag szerkezetű
-tető fedése beton cserép
-fűtés hőszivattyú, padlófűtés hőleadással
-15 cm Dryvit rendszerű homlokzatszigetelés
-választható hideg és meleg burkolat.
A lakás 35,16 nm, helyiségei:előtér 3,78 nm, fürdőszoba 4,89 nm, étkező/konyha 10,17 nm, nappali/lakószoba 16,32 nm.
A lakáshoz vásárolható teremgarázshely melynek ára 3.500.000 ft, vagy földfelszíni parkolóhely melynek ára 1.500.000 ft, (megvásárlása nem kötelező), valamint tároló helyiség is vásárolható.
A társasházban 31 db lakás kerül megépítésre, a földszinti és első emeleti lakások erkély nélküliek, a 2 emeleti lakások terasz kapcsolattal rendelkeznek.
Amennyiben kérdése merül fel, vagy megtekintené a lakást keressen bizalommal!
FINANSZÍROZÁS:
Nálunk mindent egy helyen intézhet:
- hivatalos ingatlanközvetítés;
- szakszerű jogi képviselet;
- profi CSOK-PLUSZ, és hitelügyintézés: 16 Bank, több mint 100 konstrukció;
A részletes adatvédelmi tájékoztató folyamatosan elérhető a gdn-ingatlan adatvedelmi oldalon.
INGATLAN ADATAI
Ingatlan jellege
téglalakás
Belső terület
36 m²
Építési állapot
új
Építési mód
- nem meghatározott -
Szobák száma
1 szoba
Emelet
1.
Épület szintje
2.
Ingatlan állapot
kívül: jó
belül: jó
belül: jó
Fűtés
egyéb
Komfort
összkomfort
Kilátás
udvarra
Energetika
TÉRKÉP
Pest megye, Kiskunlacháza
KAPCSOLAT

Csík Zsolt
+36 30 641 6167
zs.csik@gdn-ingatlan.hu
KAPCSOLAT
IDŐPONTOT KÉREK
VISSZAHÍVÁST KÉREK
AJÁNLOM EGY ISMERŐSÖMNEK
MEGOSZTÁS
KAPCSOLATFELVÉTEL
Az üzenetet sikeresen elküldtük!
Hiba történt!
INGATLAN ADATAI
Ingatlan jellege
téglalakás
Belső terület
36 m²
Építési állapot
új
Építési mód
- nem meghatározott -
Szobák száma
1 szoba
Emelet
1.
Épület szintje
2.
Lift
nincs megadva
Ingatlan állapot
kívül: jó
belül: jó
Fűtés
egyéb
Komfort
összkomfort
Kilátás
udvarra
Energetika
HTML
PDF