Eladó új építésű téglalakás - Mogyoród

KAPCSOLAT
Barsi Judit


+36 30 691

barsi.judit@

Az időpont kérés naptár ikonja
IDŐPONTOT KÉREK
A visszahívás kérés telefon ikonja egy azt körbe ölelő nyíllal
VISSZAHÍVÁST KÉREK
Ajánlom egy ismerősömnek ikon
AJÁNLOM EGY ISMERŐSÖMNEK
Facebook megosztás ikon
MEGOSZTÁS

KAPCSOLATFELVÉTEL

Küldés

Az üzenetet sikeresen elküldtük!
Hiba történt!
INGATLAN ADATAI

Ingatlan jellege

téglalakás

Belső terület

91 m²

Tájolás

délnyugat

Építési állapot

új

Építési mód

tégla

Szobák száma

6 szoba

Erkély

26 m²

Emelet

1.

Épület szintje

2.

Épült

kb. 2026

Lift

nincs

Ingatlan állapot

kívül: luxus
belül: luxus

Szigetelés

15 cm

Fűtés

hőszivattyús

Komfort

összkomfort

Parkolás

van fedetlen felszíni beálló

Energetika

A+:

Az időpont kérés naptár ikonja
HTML
Az időpont kérés naptár ikonja
PDF
Eladó új építésű téglalakás
Ingatlan azonosító:
1614_ujei

Pest megye, Mogyoród, HÉV állomás környéke

Irányár

111.8 M Ft
(1.23 M Ft/㎡)

Szobák

6 szoba

Emelet

1

Terület

91 m²
INGATLAN LEÍRÁSA
Ez az ÚJ ÉPÍTÉSŰ lakás Mogyoród egyik legnyugodtabb, legszebb részén található, ráadásul a HÉV megállótól 5-7 perc sétára!

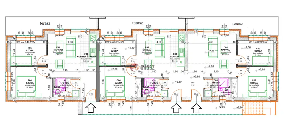
A település szélén gyönyörű természeti környezetben eladó egy 1. emeleti, 1+5 szobás, 91 m2-es + 26 m2 terasszal rendelkező, PANORÁMÁS, világos lakás, melybe 2026. JÚLIUSÁBAN BEKÖLTÖZHET. Ráadásul a zárt udvaron 2 DARAB térkővel burkolt FELSZÍNI PARKOLÓ is tartozik a lakáshoz. (Szükség esetén plusz parkolót is vásárolhat.)

A fűtést korszerű energiatakarékos HŐSZIVATTYÚS, PADLÓFŰTÉSES rendszer biztosítja, így a rezsi kedvező marad. (H tarifa) A 15 cm vastag szigetelés segít megtartani a hőt télen, és hűvösen tartani nyáron. Az épület energia besorolása A+

A BELSŐ TÉR AZ ÖN IGÉNYEINEK MEGFELELŐEN LESZ KIALAKÍTVA! 1 hálószobát szeretne vagy 2-t? Egyben legyen a fürdő a wc-vel, esetleg külön? Fürdőkádat szeretne vagy zuhanyzót? Milyen design tetszene önnek a saját otthonában? Milyen szanitereket, milyen burkolatokat, stb.?

A lakóparkban 5 db 6 lakásos (földszint + egy emeletes) ház épül. 2 db épület lakásai hamarosan átadásra kerül, de EZ A LEGJOBB ELHELYEZKEDÉSŰ ÉPÜLET a lakóparkban, aminek a lakásait ebben a hirdetésben kínáljuk megvételre, mivel ez önállóan áll. (A többi épület esetén közelebb vannak egymáshoz a házak.)
Több eladó lakás van még, ami 2026 júliusában költözhető, így akár többet is vásárolhat, ha a család külön generációi inkább külön lakásban élnének, de azért egymáshoz közel.
Az itt épülő lakások belső mérete 45 m2 (+ 13 m2 terasz), 68 m2 (+ 20 m2 terasz), ill. 91 m2 (+26 m2 terasz).
A nyárnál korábban költözhető lakások már elkeltek.

A nappali és a terasz a délnyugati tájolásnak köszönhetően napfényben fürdik egész nap. Igazán hangulatos a teraszon vagy a kertben egy étkezés ebben a fantasztikus környezetben, vagy csak egyszerűen kávézgatás közben is élvezheti a gyönyörű táj látványát és a friss levegőt. A többi ablakból szép új építésű másik házat láthat ebben a lakóparkban, vagy a hamarosan a szomszédos telkeken épülő lakóparkban. Mogyoródon itt egy új építésű övezet kerül kiépítésre.

A lakópark séta távolságra van a napi bevásárlási lehetőségektől és a HÉV-től, mellyel fél óra alatt Budapesten az Örs vezér téren lehet (vagy 10 perc alatt Gödöllő központjában).

A FALAK 30 cm-es Porotherm téglából épülnek és rajta 15 cm a szigetelés.
Az ABLAKOK 3 rétegűek.
FŰTÉS: Fischer monoblokkos levegő-víz hőszivattyú (Minden lakáshoz saját hőszivattyú tartozik. Ennek a rendszernek nincs beltéri egysége, így nem foglalja a helyet a lakásban. Ráadásul a radiátoroknak sem kell hely, mivel padlófűtés van minden helyiségben.)
HŰTÉS: a nappaliban klíma kiállás (Igény esetén kerülhet a hálószobákba is külön klíma. De úgy is kérheti a nappaliban a klíma elhelyezését, hogy nyitott szoba ajtók esetén a hálószobákat is behűti.)
Lakások közötti elválasztó fal: Silka HM300 NF-Gt (Azért, hogy semmilyen zajt ne hallhasson a szomszédból!)

A vételár továbbá a következőket foglalja magában:
- Burkolatok (hideg-meleg): br. 8.000 Ft/nm
- Beltéri ajtók: br. 80.000 Ft/db kilinccsel
- Csaptelepek: 30.000 Ft /db
- Beépített tartályos WC,
- Épített zuhanyzó (üvegfal nélkül),
- Melegvíz Ariston bojlerrel
- Elektromos redőnyhöz előkészítés
- 1db klíma becsövezése
- Erkély korlát és lépcsőkorlát vasból
- Szegélykővel, növénysorral a saját kertek közötti elválasztás
- Füvesített, növényekkel beültetett kert
- Kaputelefon, kapucsengő
- Új kerítés az utcafronton
- Elektromos kis-és nagykapu,
- Parkolóban elektromos tolókapu
- Parkolókhoz elektromos autótöltő kicsövezése lehetséges, felár ellenében.

A természet közelsége, a csend, a nyugalom, a modern, energiatakarékos, komfortos, az ön által vágyott módon kiépített lakás összességében egy ellenállhatatlan kombinációt ad!
Szívesen megmutatom élőben is.

Hívjon akár az esti órákban, akár hétvégén is!

INGATLAN ADATAI

Ingatlan jellege
téglalakás
Belső terület
91 m²
Tájolás
délnyugat
Építési állapot
új
Építési mód
tégla
Szobák száma
6 szoba
Erkély
26 m²
Emelet
1.
Épület szintje
2.
Épült
kb. 2026
Lift
nincs
Ingatlan állapot
kívül: luxus
belül: luxus
Szigetelés
15 cm
Fűtés
hőszivattyús
Komfort
összkomfort
Parkolás
van fedetlen felszíni beálló
Energetika
A+:
TÉRKÉP

Pest megye, Mogyoród, HÉV állomás környéke

KAPCSOLAT
Barsi Judit
Barsi Judit


+36 30 691 0408

barsi.judit@gmail.com

KAPCSOLAT
Barsi Judit

+36 30 691

barsi.judit@

Az időpont kérés naptár ikonja
IDŐPONTOT KÉREK
A visszahívás kérés telefon ikonja egy azt körbe ölelő nyíllal
VISSZAHÍVÁST KÉREK
Ajánlom egy ismerősömnek ikon
AJÁNLOM EGY ISMERŐSÖMNEK
Facebook megosztás ikon
MEGOSZTÁS

KAPCSOLATFELVÉTEL

Küldés

Az üzenetet sikeresen elküldtük!
Hiba történt!
INGATLAN ADATAI

Ingatlan jellege

téglalakás

Belső terület

91 m²

Tájolás

délnyugat

Építési állapot

új

Építési mód

tégla

Szobák száma

6 szoba

Erkély

26 m²

Emelet

1.

Épület szintje

2.

Épült

kb. 2026

Lift

nincs

Ingatlan állapot

kívül: luxus
belül: luxus

Szigetelés

15 cm

Fűtés

hőszivattyús

Komfort

összkomfort

Parkolás

van fedetlen felszíni beálló

Energetika

A+:

Az időpont kérés naptár ikonja
HTML
Az időpont kérés naptár ikonja
PDF
Pest megye - Mogyoród
Pest megye - Mogyoród
Pest megye - Mogyoród
Pest megye - Mogyoród
Pest megye - Mogyoród
Pest megye - Mogyoród
Pest megye - Mogyoród
Pest megye - Mogyoród
Pest megye - Mogyoród
Pest megye - Mogyoród
Pest megye - Mogyoród
Pest megye - Mogyoród
Pest megye - Mogyoród
Pest megye - Mogyoród
Pest megye - Mogyoród
Pest megye - Mogyoród
Pest megye - Mogyoród
Pest megye - Mogyoród
Pest megye - Mogyoród
Pest megye - Mogyoród
Pest megye - Mogyoród
Pest megye - Mogyoród
Pest megye - Mogyoród
Pest megye - Mogyoród