Kiadó iroda - Budapest, XI. kerület

KAPCSOLAT
Agatity Roland


+36 70 421

r.agatity@

Az időpont kérés naptár ikonja
IDŐPONTOT KÉREK
A visszahívás kérés telefon ikonja egy azt körbe ölelő nyíllal
VISSZAHÍVÁST KÉREK
Ajánlom egy ismerősömnek ikon
AJÁNLOM EGY ISMERŐSÖMNEK
Facebook megosztás ikon
MEGOSZTÁS

KAPCSOLATFELVÉTEL

Küldés

Az üzenetet sikeresen elküldtük!
Hiba történt!
INGATLAN ADATAI

Ingatlan jellege

iroda

Belső terület

96 m²

Építési állapot

használt

Építési mód

- nem meghatározott -

Bútorozottság

nem

Épület szintje

1.

Ingatlan állapot

kívül: jó
belül: jó

Fűtés

cirko

Komfort

komfort

Közműállapot

csatorna: nincs adat
gáz: nincs adat
villany: nincs adat
víz: nincs adat

Kilátás

udvarra

Az időpont kérés naptár ikonja
HTML
Az időpont kérés naptár ikonja
PDF
Kiadó iroda
Belső azonosító:
390952
Ingatlan azonosító:
35504_gimp

Budapest, XI. kerület, Albertfalva

Bérleti díj

350 E Ft/hó
(3.65 E Ft/㎡)

Szobák

4 szoba

Emelet

Terület

96 m²
INGATLAN LEÍRÁSA
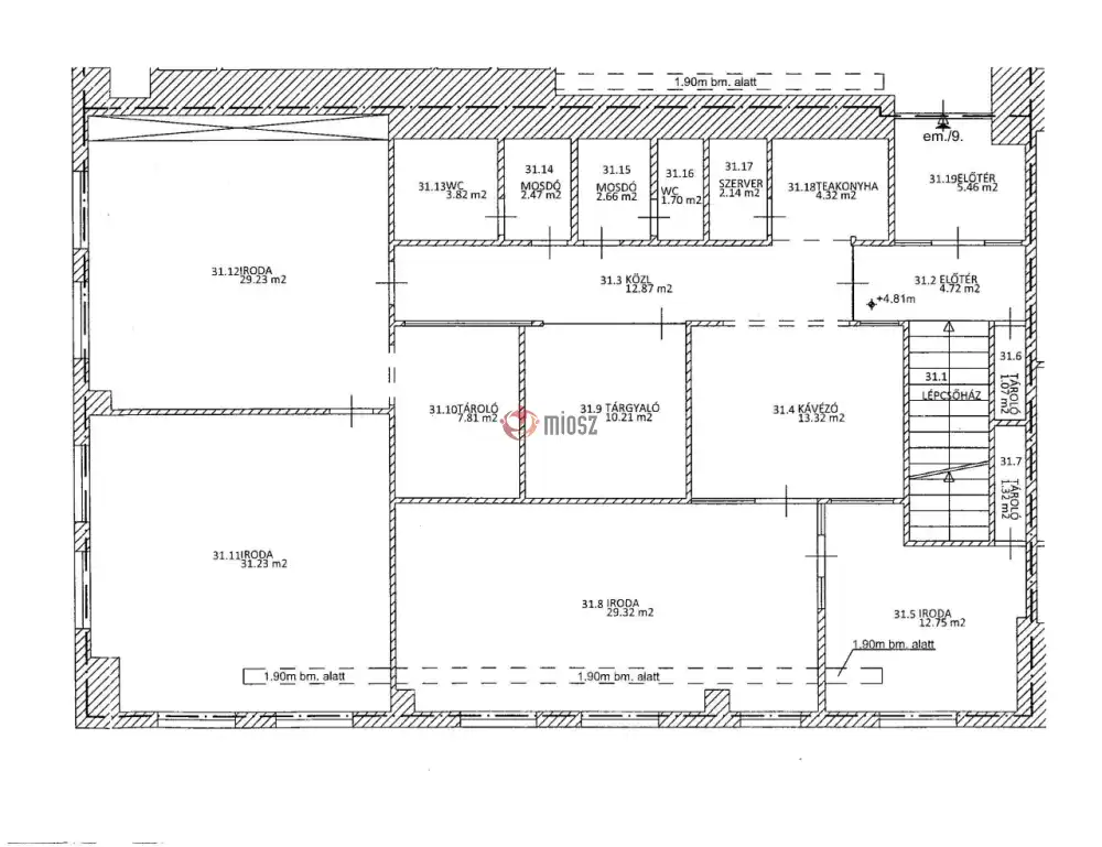
Budapest XI. kerület, Albertfalván, a budafoki út közelében, ipari területen lévő 96 m2-es felújított irodahelyiség kiadó!
Az ingatlan rendezett jogi háttérrel (társasház önálló helyrajzi számú irodákkal, saját mérők), délkeleti tájolással és saját parkolóval rendelkezik. Elsőrendű autós és teherautós közlekedési kapcsolat. 2020-ban felújításon esett át (vezetékek, burkolatok, nyílászárók, beépített konyha) riasztóval és valamennyi helyisége klímával van felszerelve. Közlekedési szempontból az iroda páratlan lehetőségeket nyújt. Az MO körgyűrű csomópontja mindössze 2 km-re, a 6-os főút 1000 méterre található, míg az M1 és M7 közös bevezető szakasza 5 km-re helyezkedik el. A Rákóczi híd budai hídfője 3 km-re van, és a repülőtér autóval 50 perc alatt elérhető. A közlekedés még egyszerűbbé válik, hiszen a 33,133E buszok az épület előtt állnak meg, míg további busz- és villamosjáratok mindössze 5-10 perces sétával elérhetők.

INGATLAN ADATAI

Ingatlan jellege
iroda
Belső terület
96 m²
Építési állapot
használt
Építési mód
- nem meghatározott -
Bútorozottság
nem
Épület szintje
1.
Ingatlan állapot
kívül: jó
belül: jó
Fűtés
cirko
Komfort
komfort
Közműállapot
csatorna: nincs adat
gáz: nincs adat
villany: nincs adat
víz: nincs adat
Kilátás
udvarra
Energetika
TÉRKÉP

Budapest, XI. kerület, Albertfalva

KAPCSOLAT
Agatity Roland
Agatity Roland


+36 70 421 3991

r.agatity@gdn-ingatlan.hu

KAPCSOLAT
Agatity Roland

+36 70 421

r.agatity@

Az időpont kérés naptár ikonja
IDŐPONTOT KÉREK
A visszahívás kérés telefon ikonja egy azt körbe ölelő nyíllal
VISSZAHÍVÁST KÉREK
Ajánlom egy ismerősömnek ikon
AJÁNLOM EGY ISMERŐSÖMNEK
Facebook megosztás ikon
MEGOSZTÁS

KAPCSOLATFELVÉTEL

Küldés

Az üzenetet sikeresen elküldtük!
Hiba történt!
INGATLAN ADATAI

Ingatlan jellege

iroda

Belső terület

96 m²

Építési állapot

használt

Építési mód

- nem meghatározott -

Bútorozottság

nem

Épület szintje

1.

Lift

nincs megadva

Ingatlan állapot

kívül: jó
belül: jó

Fűtés

cirko

Komfort

komfort

Közműállapot

csatorna: nincs adat
gáz: nincs adat
villany: nincs adat
víz: nincs adat

Kilátás

udvarra

Energetika

Az időpont kérés naptár ikonja
HTML
Az időpont kérés naptár ikonja
PDF
Budapest, XI. kerület - Albertfalva
Budapest, XI. kerület - Albertfalva
Budapest, XI. kerület - Albertfalva
Budapest, XI. kerület - Albertfalva
Budapest, XI. kerület - Albertfalva
Budapest, XI. kerület - Albertfalva
Budapest, XI. kerület - Albertfalva
Budapest, XI. kerület - Albertfalva
Budapest, XI. kerület - Albertfalva
Budapest, XI. kerület - Albertfalva
Budapest, XI. kerület - Albertfalva
Budapest, XI. kerület - Albertfalva
Budapest, XI. kerület - Albertfalva
Budapest, XI. kerület - Albertfalva